Frankfurt am Main:
Repräsentativer Altbau am Hauptbahnhof - Erstbezug nach Refurbishment
Property ID: 2719

Visualisierung außen

Visualisierung außen

Visualisierung Empfang

Visualisierung Open Space

Untergeschoss

Erdgeschoss

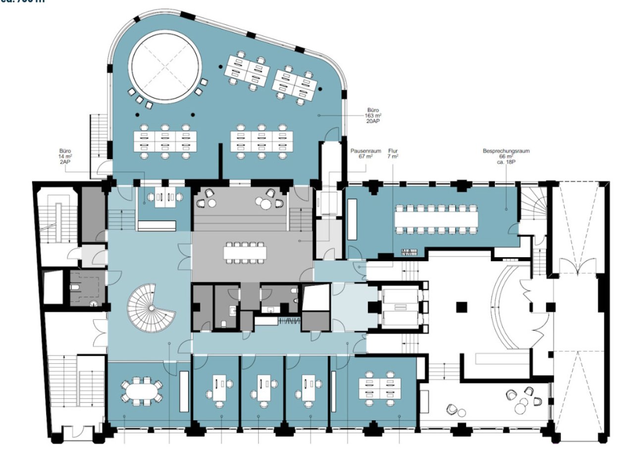
4.Obergeschoss







Rental price plus utilities:
Price on request
Office/practice area:
5.375 sq. m.
Es handelt sich um ein kernsaniertes Bürogebäude, das den historischen Charakter eines neorenaissance-inspirierten Altbaus mit modernster Architektur und Technik verbindet. Das Objekt vereint zeitlose Eleganz und zukunftsweisende Arbeitswelten auf rund ca. 5.375 m² Gesamtmietfläche.
Das Gebäude wurde sorgfältig modernisiert, um langfristigen Anforderungen an Flexibilität und Effizienz gerecht zu werden. Verschiedene, unabhängig nutzbare Eingangsbereiche ermöglichen individuelle Nutzungskonzepte – ideal für unterschiedliche Unternehmensgrößen und modulare Flächenkonzepte.
Ein herausragendes architektonisches Element ist das großzügige Atrium „Townhall“, das als kommunikatives Herz des Hauses fungiert und Begegnungen, Austausch und Kreativität fördert. Zudem bieten grüne Innenhöfe und exklusive Dachterrassen Aufenthaltsqualität in zentraler Lage.
Last renovation/ refurbishment: 2026
Quality of fittings: Superior
Year of construction: 1898
Number of floors: 7
Number of parking spaces: 4 x Outside parking space
Kitchen: Fitted kitchen
Listed building: yes
Lift: yes
Basement: yes
Air condition: yes
Suitable for disabled people: yes
Floor covering: As desired
Condition: fully renovated
Walking distance to public transport: 1 Minute(s)
Drive to nearest rail station: 1 Minute(s)
Drive to nearest motorway: 8 Minute(s)
Drive to nearest airport: 14 Minute(s)
Type of energy certificate: Energy pass is available for inspection
Die Mietpreise sowie auch die Angaben der Nebenkostenvorauszahlungen verstehen sich monatlich pro Quadratmeter zuzüglich der gesetzlichen Mehrwertsteuer.
Irrtum und Zwischenvermietung bzw. -verkauf sind vorbehalten. Für die Richtigkeit und Vollständigkeit der Angaben übernehmen wir keine Haftung.
Bei weiteren Fragen oder zur Vereinbarung eines individuellen Besichtigungstermins können Sie uns gerne telefonisch unter 069 - 173 269 390 oder per E-Mail unter info@vvimmobilien.com kontaktieren.
Wir weisen auf unsere Allgemeinen Geschäftsbedingungen hin. Durch weitere Inanspruchnahme unserer Leistungen erklären Sie die Kenntnis und Ihr Einverständnis.
You might also like
Moderne Büroflächen mit Skylineblick
Büroflächen in exklusiver Lage
Exklusive Büroflächen im Bankenviertel

V&V Immobilien GmbH
Mr. Dean Vukovic
Lange Strasse 59
60311 Frankfurt am Main
Phone: +49 69 173 269 390
Mobile phone: +49 172 66 99 799
Fax: +49 69 173 269 399




















