Offenbach am Main:
Moderne Büroflächen direkt in der Fußgängerzone
Property ID: 2745

Außenansicht

Büroflur

Meetingraum

Dachgarten

Teeküche

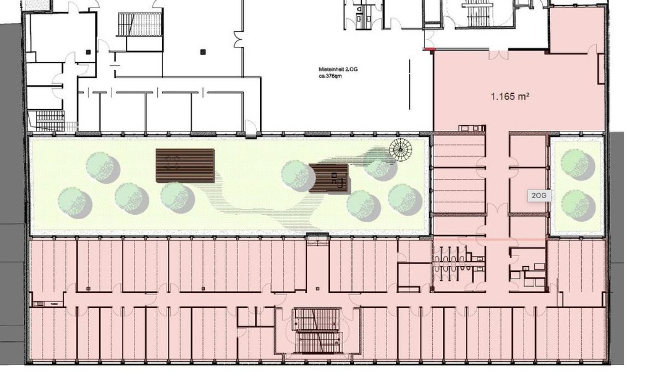
2.Obergeschoss

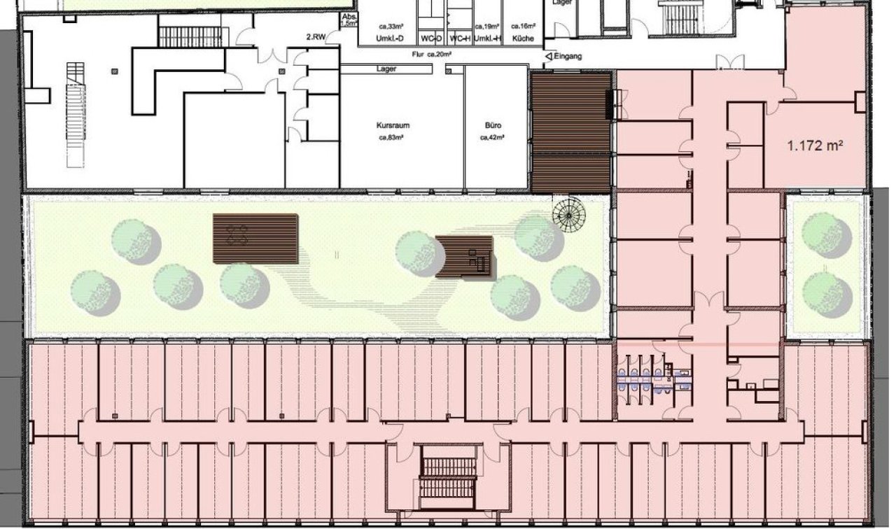
3.Obergeschoss







Rental price plus utilities:
15 € per sq.m.
Office/practice area:
2.338 sq. m.
Die Büroflächen befinden sich in exponierter innerstädtischer Lage und überzeugen durch ihre moderne Ausstattung sowie eine exklusive Dachterrasse, die den Flächen eine besondere Qualität verleiht.
Das Gebäude ist über zwei Treppenhäuser sowie einen Personenaufzug erschlossen und verfügt über zwei Eingänge – einen zur belebten Fußgängerzone und einen weiteren zum Stadthof auf der Nordseite. Im Untergeschoss steht ein öffentliches Parkhaus zur Verfügung; zusätzliche Parkmöglichkeiten sind in der direkten Umgebung vorhanden.
Die Flächen sind modern ausgebaut mit strapazierfähigem Teppichboden, Heizkühldecke, Klimaanlage sowie vorhandener DV-Verkabelung. Mietfläche und Ausbaustandard können individuell mit dem Mieter abgestimmt werden – sowohl auf einer als auch auf beiden Etagen sind verschiedene Konfigurationen realisierbar.
Insgesamt stehen bis zu 2.338 m² Mietfläche zur Verfügung, aufgeteilt auf das 2. Obergeschoss (ca. 1.165 m²) und das 3. Obergeschoss (ca. 1.172 m²). Eine Anmietung ab 1.165 m² ist möglich.
Additional expenses: 6 € per sq.m.
Subject to commission: no
Quality of fittings: Superior
Year of construction: 2020
Kitchen: Fitted kitchen
Lift: yes
Air condition: yes
Suitable for disabled people: yes
DV cabling available: yes
Floor covering: Carpet
Condition: As new
Walking distance to public transport: 2 Minute(s)
Drive to nearest rail station: 3 Minute(s)
Drive to nearest motorway: 5 Minute(s)
Drive to nearest airport: 24 Minute(s)
Die Mietpreise sowie auch die Angaben der Nebenkostenvorauszahlungen verstehen sich monatlich pro Quadratmeter zuzüglich der gesetzlichen Mehrwertsteuer.
Irrtum und Zwischenvermietung bzw. -verkauf sind vorbehalten. Für die Richtigkeit und Vollständigkeit der Angaben übernehmen wir keine Haftung.
Bei weiteren Fragen oder zur Vereinbarung eines individuellen Besichtigungstermins können Sie uns gerne telefonisch unter 069 - 173 269 390 oder per E-Mail unter info@vvimmobilien.com kontaktieren.
Wir weisen auf unsere Allgemeinen Geschäftsbedingungen hin. Durch weitere Inanspruchnahme unserer Leistungen erklären Sie die Kenntnis und Ihr Einverständnis.
You might also like
Die Welle - Moderne Büroflächen in Bestlage
Bürofläche direkt am Main
Landmark Building - Ihr neues Büro am Tor zu Frankfurt

V&V Immobilien GmbH
Mr. Dean Vukovic
Lange Strasse 59
60311 Frankfurt am Main
Phone: +49 69 173 269 390
Mobile phone: +49 172 66 99 799
Fax: +49 69 173 269 399


















