Frankfurt am Main:
Gepflegte Bürofläche in Bockenheim | Nähe Westend & Bockenheimer Warte
Property ID: 2754

Außenansicht

Meetingraum

Büroflur

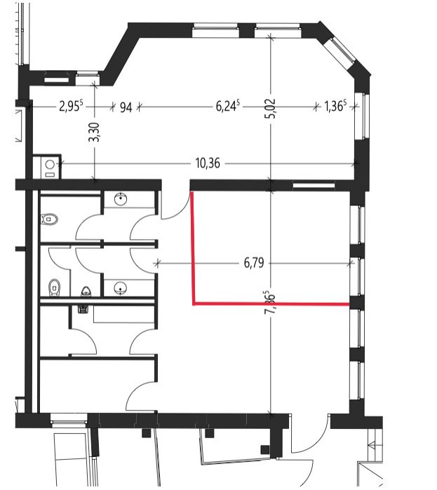
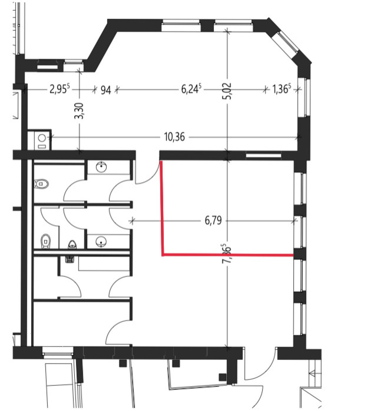
1.Obergeschoss




Rental price plus utilities:
21,50 € per sq.m.
Office/practice area:
147 sq. m.
Das Objekt ist Teil eines zwischen 1997 und 2002 vollständig revitalisierten und neu errichteten Büroensembles – konzipiert nach modernen Anforderungen an zeitgemäße Arbeitsflächen. Das Gebäude befindet sich in gepflegtem Zustand und wurde zuletzt 2015 modernisiert.
Im 1. Obergeschoss steht eine kompakte, funktionale Bürofläche zur Verfügung – ideal für kleine Unternehmen, Kanzleien, Beratungsbüros oder Praxen, die eine repräsentative Adresse in zentraler Frankfurter Lage suchen.
Additional expenses: 3,50 € per sq.m.
Subject to commission: no
Last renovation/ refurbishment: 2015
Quality of fittings: Superior
Year of construction: 1999
Storey: 1
Number of floors: 4
Kitchen: Fitted kitchen
Lift: yes
Air condition: yes
Suitable for disabled people: yes
DV cabling available: yes
Floor covering: As desired
Condition: Well kept
Final energy consumption for heat: 69,10 kWh/(m²*a)
Final energy consumption for electricity: 29 kWh/(m²*a)
Walking distance to public transport: 2 Minute(s)
Drive to nearest rail station: 6 Minute(s)
Drive to nearest motorway: 3 Minute(s)
Drive to nearest airport: 20 Minute(s)
Type of heating system: Gas
Type of energy certificate: consumption certificate
Die Mietpreise sowie auch die Angaben der Nebenkostenvorauszahlungen verstehen sich monatlich pro Quadratmeter zuzüglich der gesetzlichen Mehrwertsteuer.
Irrtum und Zwischenvermietung bzw. -verkauf sind vorbehalten. Für die Richtigkeit und Vollständigkeit der Angaben übernehmen wir keine Haftung.
Bei weiteren Fragen oder zur Vereinbarung eines individuellen Besichtigungstermins können Sie uns gerne telefonisch unter 069 - 173 269 390 oder per E-Mail unter info@vvimmobilien.com kontaktieren.
Wir weisen auf unsere Allgemeinen Geschäftsbedingungen hin. Durch weitere Inanspruchnahme unserer Leistungen erklären Sie die Kenntnis und Ihr Einverständnis.
You might also like
Moderne Büroflächen in Raunheim
Hochwertige Büro- und-Praxisflächen in zentraler Lage
Modernes Büro- und Lagergebäude in DA-Arheiligen

V&V Immobilien GmbH
Mr. Dean Vukovic
Lange Strasse 59
60311 Frankfurt am Main
Phone: +49 69 173 269 390
Mobile phone: +49 172 66 99 799
Fax: +49 69 173 269 399

















