Frankfurt am Main:
Landmark Building - Ihr neues Büro in bester Lage
Objekt-Nr.: 1698

Außenansicht

Foyer

Ausbaubeispiel

Ausbaubeispiel

Ausbaubeispiel

Ausblick

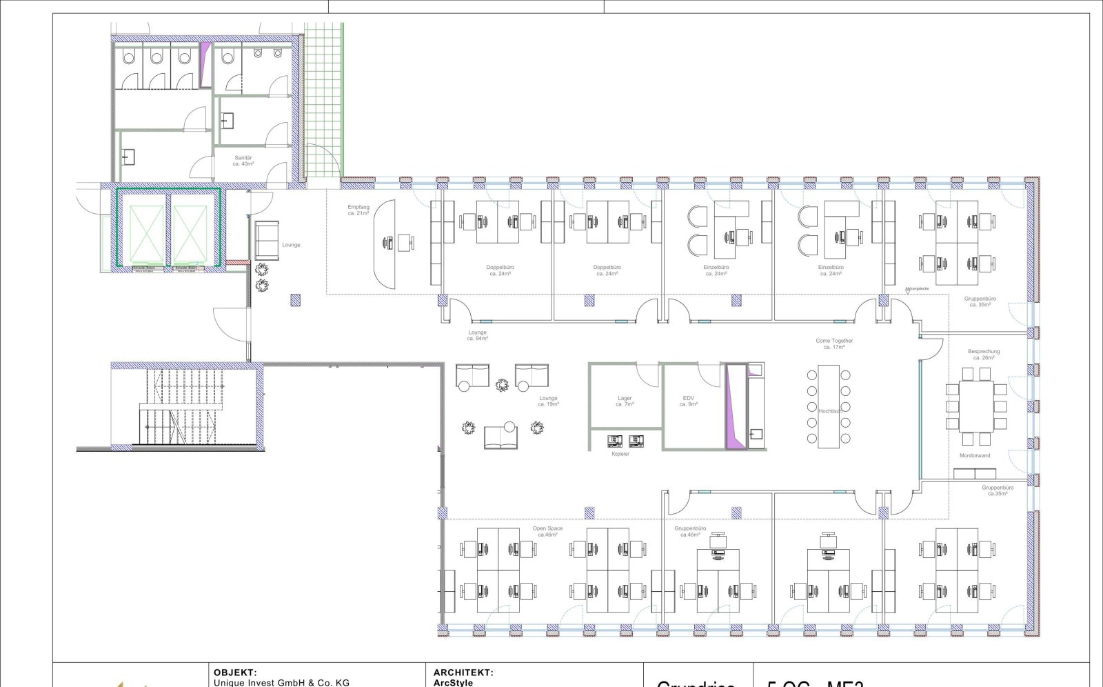
11.Obergeschoss

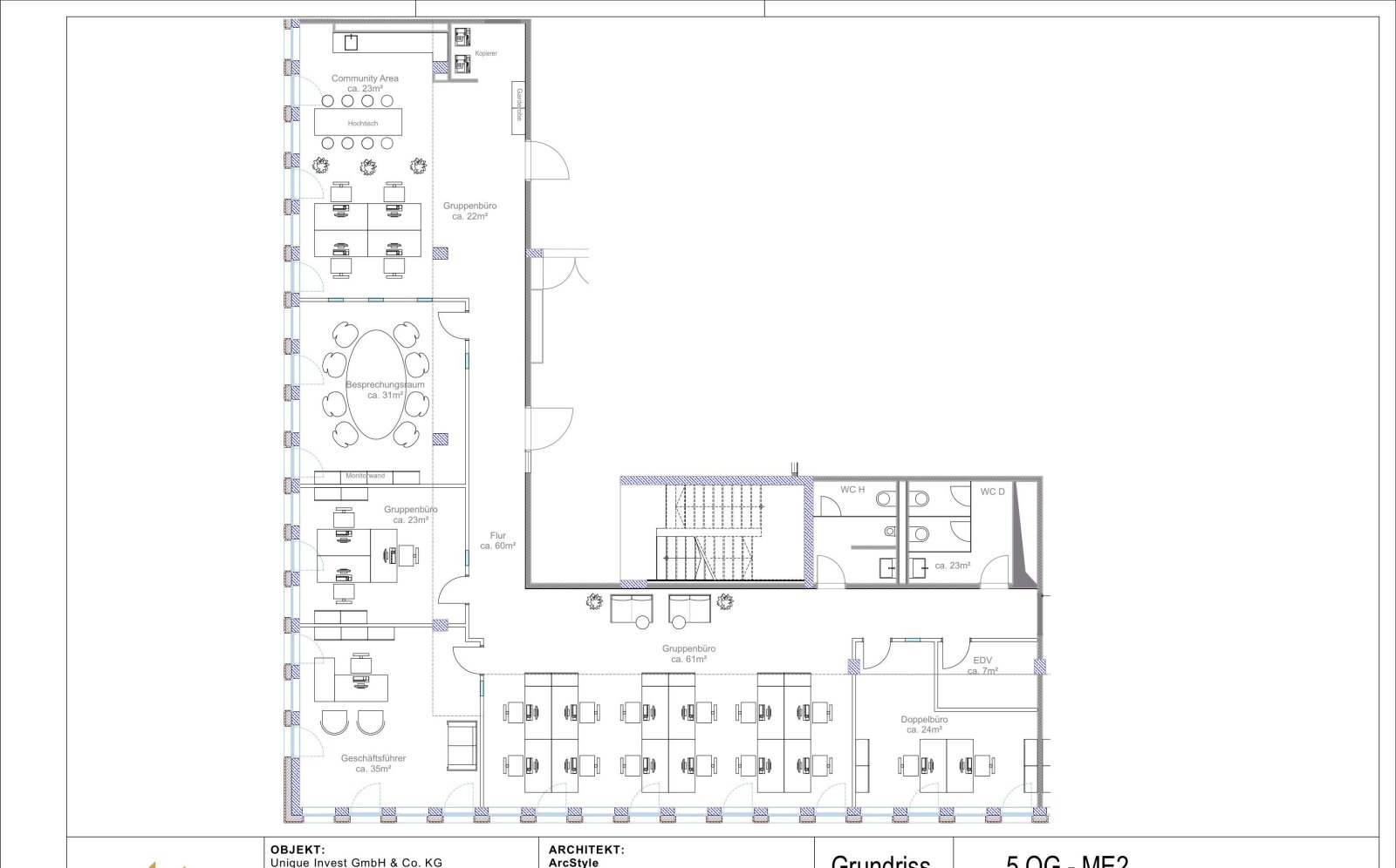
45.Obergeschoss








Mietpreis zzgl. NK:
32 € pro m²
Büro-/Praxisfläche ca.:
26.173 m²
Das Gebäudeensemble besteht aus einem Hochhaus mit 50 Geschossen und einem vorgelagerten Sockelgebäude. Durch den hufeisenförmigen Grundriss des Sockelgebäudes entsteht eine zentrale, elegante Plaza, die in die 19 Meter hohe Lobby führt. Der Turm besteht aus zwei Hochhaushälften mit Aluminium-Glas-Fassade, die einen gläsernen Mittelteil umschließen.
Durch intelligente Energiekonzepte und die Nutzung natürlicher Ressourcen werden die aktuellen Vorgaben der Energiesparverordnung um 20% unterschritten.
Im Sockelgebäude befinden sich sowohl Büros als auch ein Konferenzzentrum und ein Mitarbeiterrestaurant. Im Erdgeschoss des Sockels stehen Flächen für Einzelhandel und Gastronomie zur Verfügung. Die Obergeschosse werden über mehrere Aufzugsgruppen erschlossen. Die Raumaufteilung innerhalb der Mieteinheiten kann nach den Wünschen der zukünftigen Mieter gestaltet werden. Für ein angenehmes Raumklima sorgt die Außenluftzufuhr über die Fassade, unterstützt durch kombinierte Heiz-/Kühldecken, und das Sonnen-/Wärmeschutzglas sowie zusätzlich öffenbare Fenster.
Nebenkosten: 6,50 € pro m²
Provisionspflichtig: nein
Qualität der Ausstattung: gehoben
Baujahr-Gebäude: 2011
Etagenanzahl: 50
Küche: Einbauküche
Kantine/Cafeteria: ja
Fahrstuhl: ja
Lastenaufzug: ja
Keller: ja
Klimaanlage: ja
Barrierefrei: ja
DV-Verkabelung vorhanden: ja
Bodenbelag: nach Wunsch
Zustand: neuwertig
Fußweg zu Öffentl. Verkehrsmitteln: 1 Minute(n)
Fahrzeit zum nächsten Hauptbahnhof: 2 Minute(n)
Fahrzeit zur nächsten BAB: 3 Minute(n)
Fahrzeit zum nächsten Flughafen: 13 Minute(n)
Die Mietpreise sowie auch die Angaben der Nebenkostenvorauszahlungen verstehen sich monatlich pro Quadratmeter zuzüglich der gesetzlichen Mehrwertsteuer. Irrtum und Zwischenvermietung bzw. -verkauf sind vorbehalten. Für die Richtigkeit und Vollständigkeit der Angaben übernehmen wir keine Haftung. Bei weiteren Fragen oder zur Vereinbarung eines individuellen Besichtigungstermins können Sie uns gerne telefonisch unter 069 - 173 269 390 oder per E-Mail unter info@vvimmobilien.com kontaktieren.
Wir weisen auf unsere Allgemeinen Geschäftsbedingungen hin. Durch weitere Inanspruchnahme unserer Leistungen erklären Sie die Kenntnis und Ihr Einverständnis.
Das könnte Ihnen auch gefallen
Moderne Büroflächen mit effizienten Grundrissen
Repräsentative Büroflächen in Messenähe
The Unique – Moderne Büroflächen direkt am Flughafen BER - 5 OG

V&V Immobilien GmbH
Herr Dean Vukovic
Lange Strasse 59
60311 Frankfurt am Main
Telefon: +49 69 173 269 390
Mobil: +49 172 66 99 799
Fax: +49 69 173 269 399


























