Frankfurt am Main:
Das perfekte Umfeld für kreative Köpfe
Objekt-Nr.: 1787

Außenansicht

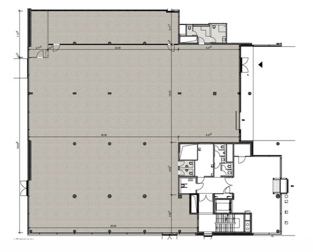
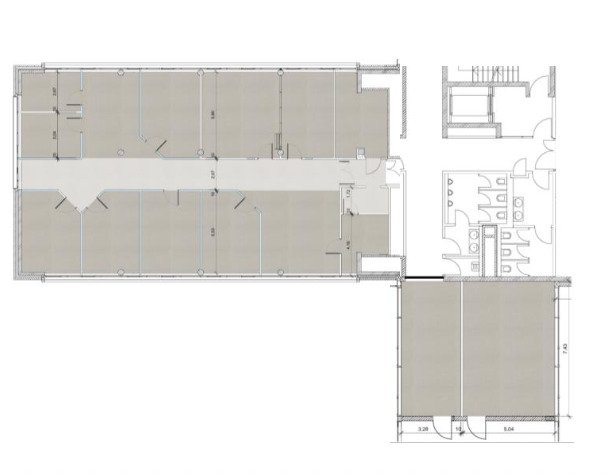
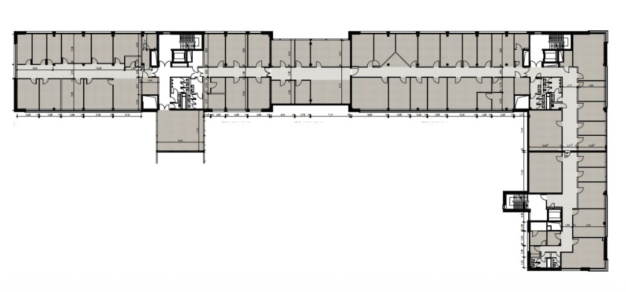
Bauteil A Erdgeschoss

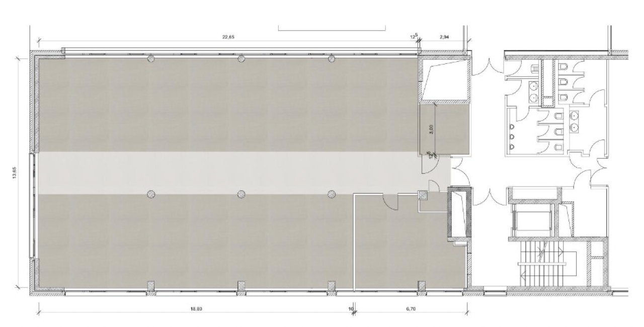
5.Obergeschoss

Meetingraum

1.Obergeschoss

Bürobereich

Teeküche

EG Bauteil C

Bauteil C Erdgeschoss

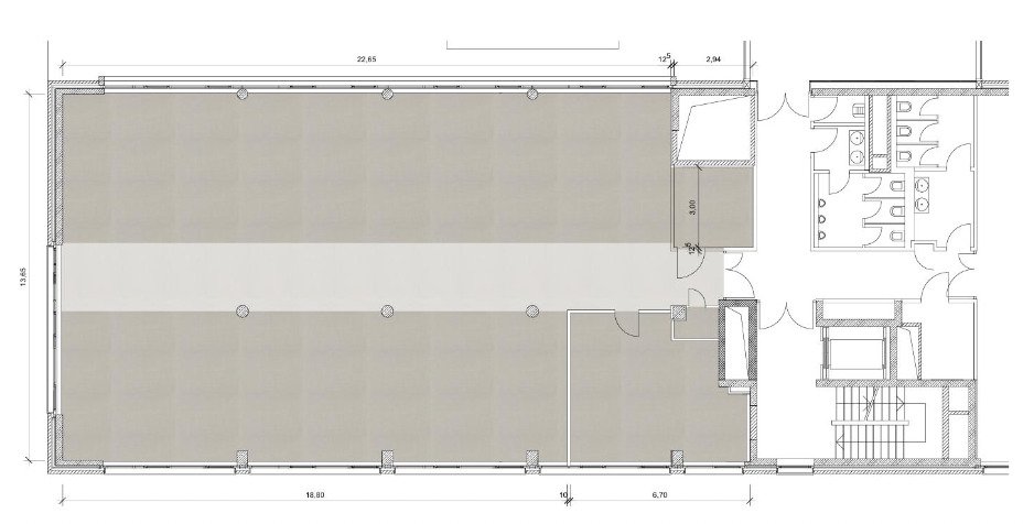
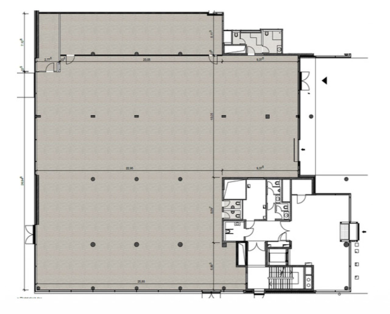
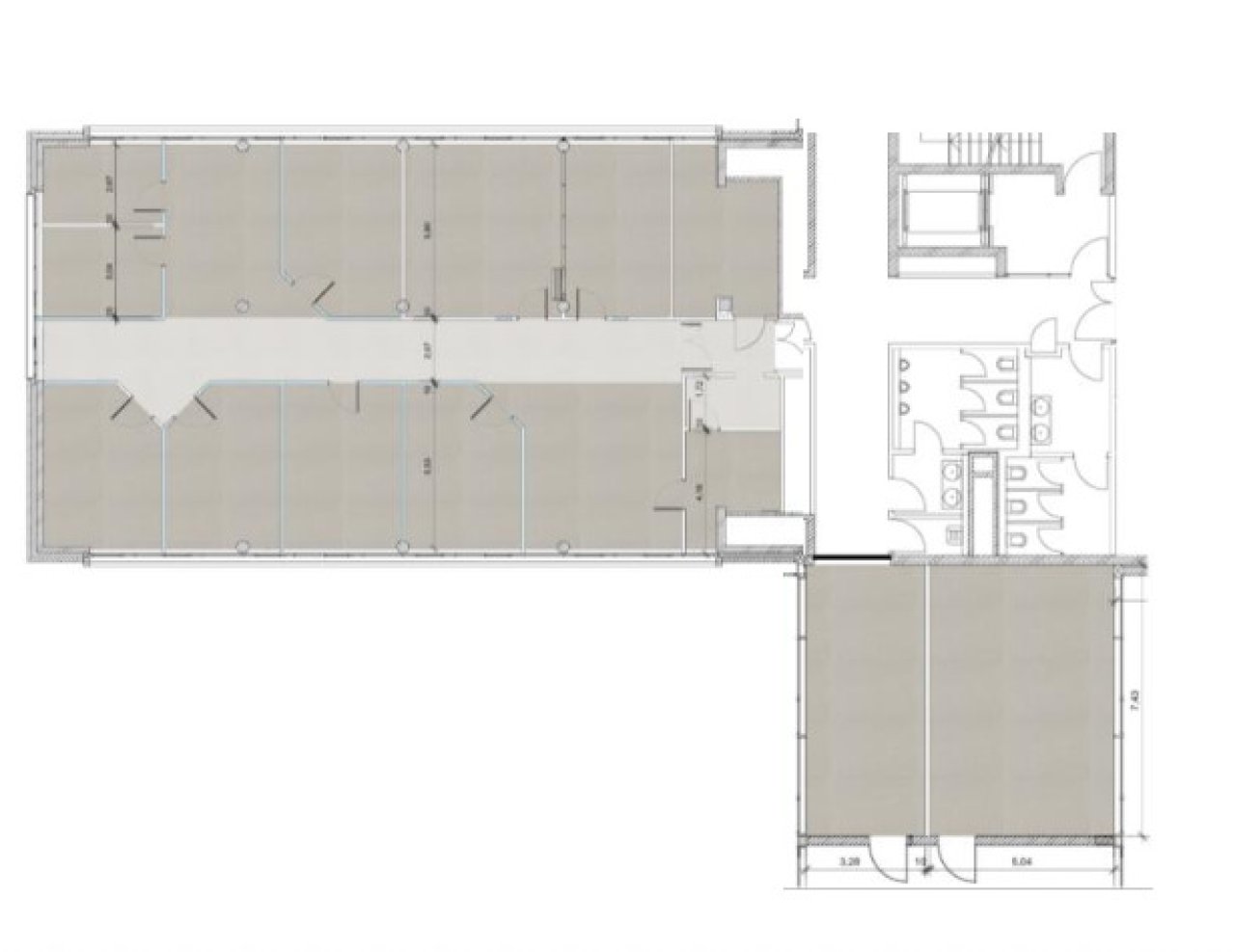
Bauteil A 4.OG ca. 367 m²

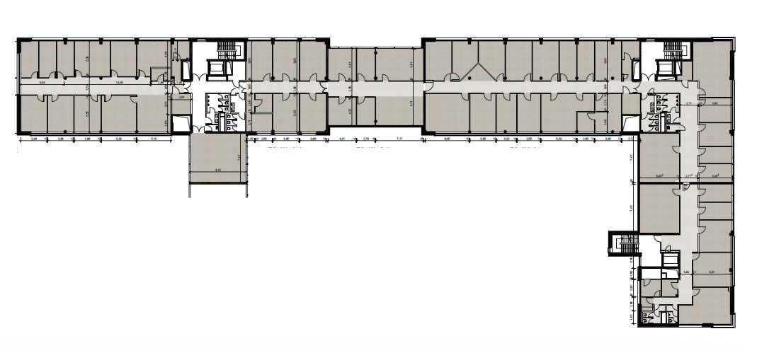
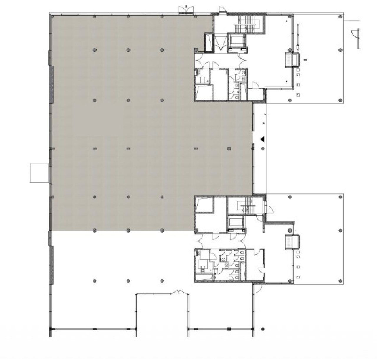
Bauteil D,E,F 5.OG

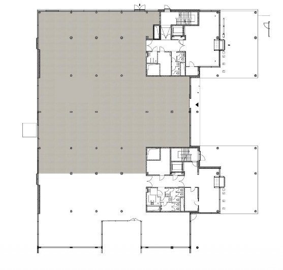
Bauteil B 5.OG ca. 438 m²












Mietpreis zzgl. NK:
18 € pro m²
Büro-/Praxisfläche ca.:
6.417 m²
Die charakteristische Klinkerfassade des Gebäudes wirkt modern und greift dabei die Historie des Ostends auf.
Die loftartigen und lichtdurchfluteten Räume mit über drei Metern Höhe machen aus Arbeitsflächen eine Wohlfühl-Atmosphäre. Das überaus flexible und durchdachte Raumkonzept bietet auch für Ihren Bedarf die optimale Lösung.
Neben den Park-Möglichkeiten im Hofbereich steht Ihnen und Ihren Kunden eine Tiefgarage zur Verfügung.
Nebenkosten: 5 € pro m²
Provisionspflichtig: nein
Qualität der Ausstattung: gehoben
Baujahr-Gebäude: 2003
Etagenanzahl: 6
Anzahl der Parkflächen: 18 x Außenstellplatz; 397 x Tiefgarage
Küche: Einbauküche
Kantine/Cafeteria: ja
Fahrstuhl: ja
Keller: ja
Klimaanlage: ja
DV-Verkabelung vorhanden: ja
Bodenbelag: nach Wunsch
Zustand: gepflegt
Endenergieverbrauch Wärme: 100 kWh/(m²*a)
Endenergieverbrauch Strom: 44 kWh/(m²*a)
Fußweg zu Öffentl. Verkehrsmitteln: 2 Minute(n)
Fahrzeit zum nächsten Hauptbahnhof: 7 Minute(n)
Fahrzeit zur nächsten BAB: 2 Minute(n)
Fahrzeit zum nächsten Flughafen: 15 Minute(n)
Befeuerungsart: Gas
Energieausweistyp: Verbrauchsausweis
Die Mietpreise sowie auch die Angaben der Nebenkostenvorauszahlungen verstehen sich monatlich pro Quadratmeter zuzüglich der gesetzlichen Mehrwertsteuer.
Die Vermietung erfolgt für den Mieter provisionsfrei.
Irrtum und Zwischenvermietung bzw. -verkauf sind vorbehalten. Für die Richtigkeit und Vollständigkeit der Angaben übernehmen wir keine Haftung.
Bei weiteren Fragen oder zur Vereinbarung eines individuellen Besichtigungstermins können Sie uns gerne telefonisch unter 069 - 173 269 390 oder per E-Mail unter info@vvimmobilien.com kontaktieren.
Wir weisen auf unsere Allgemeinen Geschäftsbedingungen hin. Durch weitere Inanspruchnahme unserer Leistungen erklären Sie die Kenntnis und Ihr Einverständnis.
Das könnte Ihnen auch gefallen
Bürofläche in direkter Citylage
Repräsentatives Bürogebäude in zentraler Lage Darmstadts

V&V Immobilien GmbH
Herr Dean Vukovic
Lange Strasse 59
60311 Frankfurt am Main
Telefon: +49 69 173 269 390
Mobil: +49 172 66 99 799
Fax: +49 69 173 269 399
















