Mörfelden-Walldorf:
Mörfelden- Bürofläche in verkehrsgünstiger Lage
Objekt-Nr.: 1852

Außenansicht

Innenansicht

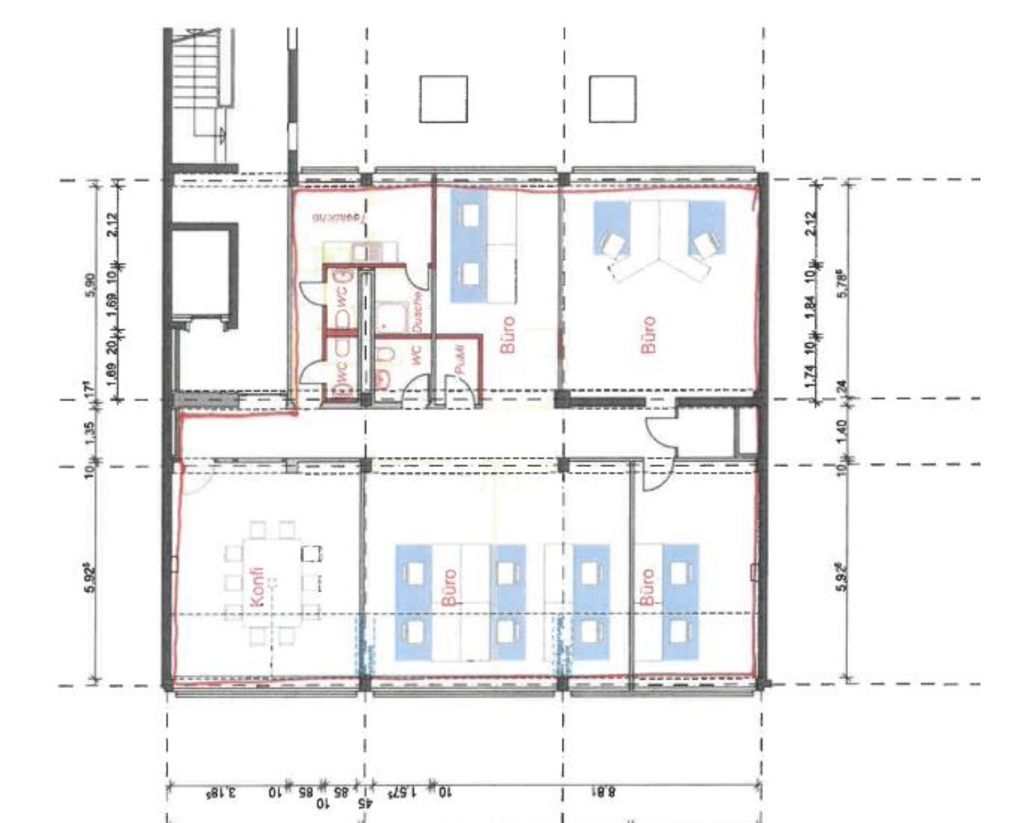
Bürobereich

Bürobereich 2




Mietpreis zzgl. NK:
8 € pro m²
Büro-/Praxisfläche ca.:
1.535 m²
Die Mietfläche verfügt über eine CAT5 Verkabelung, Server- und Archivraum, getrennte WC-Einheiten, wie auch über eine kleine Teeküche. Die Büros sind klimatisiert und verfügen über einen neuwertigen Fußbodenbelag.
Durch die vorhandenen Leichtbauwände ist die Raumaufteilung flexibel gestaltbar.Somit ist die Nutzung als Großraumbüro, wie auch mit klassisches Einzelbüros möglich.
In Innenhof des Gebäudes befindet sich ein überdachtes und begrüntes Atrium, welches von den Büroflächen aus begehbar ist.
Nebenkosten: 3,50 € pro m²
Provisionspflichtig: nein
Letzte Modernisierung/ Sanierung: 2010
Qualität der Ausstattung: gehoben
Baujahr-Gebäude: 1995
Etagenanzahl: 4
Anzahl der Parkflächen: 27 x Tiefgarage, pro Stück 50 €
Küche: Einbauküche
Fahrstuhl: ja
Keller: ja
Klimaanlage: ja
Barrierefrei: ja
DV-Verkabelung vorhanden: ja
Bodenbelag: nach Wunsch
Zustand: gepflegt
Endenergieverbrauch Wärme: 63 kWh/(m²*a)
Endenergieverbrauch Strom: 6 kWh/(m²*a)
Fußweg zu Öffentl. Verkehrsmitteln: 3 Minute(n)
Fahrzeit zur nächsten BAB: 5 Minute(n)
Fahrzeit zum nächsten Flughafen: 17 Minute(n)
Heizung: Zentralheizung
Befeuerungsart: Gas
Energieausweistyp: Verbrauchsausweis
Die Mietpreise sowie auch die Angaben der Nebenkostenvorauszahlungen verstehen sich monatlich pro Quadratmeter zuzüglich der gesetzlichen Mehrwertsteuer. Irrtum und Zwischenvermietung bzw. -verkauf sind vorbehalten. Für die Richtigkeit und Vollständigkeit der Angaben übernehmen wir keine Haftung. Bei weiteren Fragen oder zur Vereinbarung eines individuellen Besichtigungstermins können Sie uns gerne telefonisch unter 069 - 173 269 390 oder per E-Mail unter info@vvimmobilien.com kontaktieren.
Wir weisen auf unsere Allgemeinen Geschäftsbedingungen hin. Durch weitere Inanspruchnahme unserer Leistungen erklären Sie die Kenntnis und Ihr Einverständnis.
Das könnte Ihnen auch gefallen
Flächen ab 224 m² verfügbar - Moderne Ausstattung
Flexible Büroflächen im Zentrum von Wiesbaden
Ihr Büro im Herzen der Stadt

V&V Immobilien GmbH
Herr Dean Vukovic
Lange Strasse 59
60311 Frankfurt am Main
Telefon: +49 69 173 269 390
Mobil: +49 172 66 99 799
Fax: +49 69 173 269 399














