Darmstadt:
Büro- und Schulungsflächen in zentraler Lage Darmstadts
Objekt-Nr.: 2489

Außenansicht

Innenansicht

Innenansicht

Innenansicht

Innenansicht

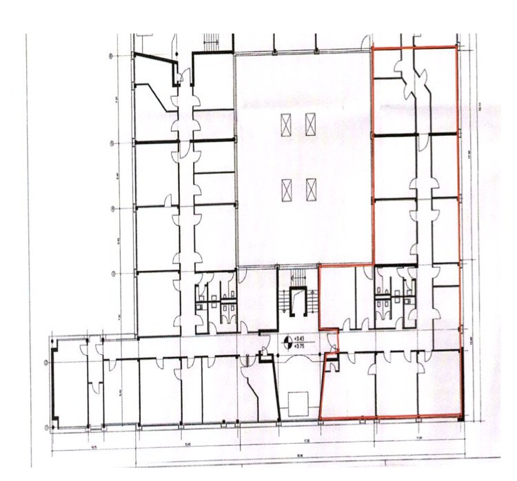
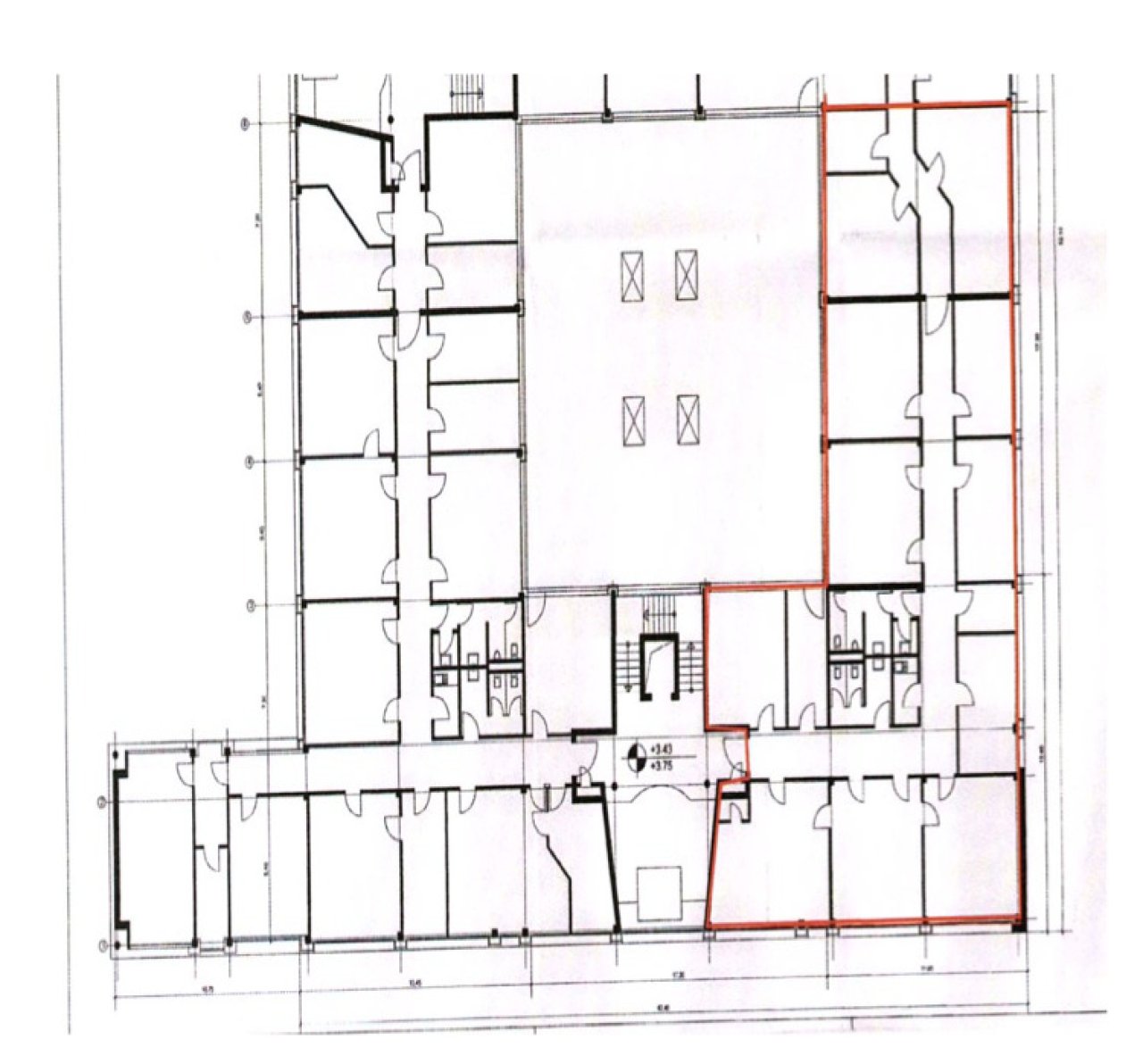
1.Obergeschoss rechts ca. 312 m²






Mietpreis zzgl. NK:
5,75 € pro m²
Büro-/Praxisfläche ca.:
3.836 m²
Nebenkosten: 3 € pro m²
Provisionspflichtig: nein
Qualität der Ausstattung: normal
Baujahr-Gebäude: 1991
Anzahl der Parkflächen: 138 x Außenstellplatz, pro Stück 50 €
Küche: Einbauküche
Bodenbelag: nach Wunsch
Zustand: gepflegt
Endenergieverbrauch Wärme: 84,70 kWh/(m²*a)
Endenergieverbrauch Strom: 11,80 kWh/(m²*a)
Fußweg zu Öffentl. Verkehrsmitteln: 2 Minute(n)
Fahrzeit zum nächsten Hauptbahnhof: 5 Minute(n)
Fahrzeit zur nächsten BAB: 6 Minute(n)
Fahrzeit zum nächsten Flughafen: 20 Minute(n)
Befeuerungsart: Gas
Energieausweistyp: Verbrauchsausweis
Die Mietpreise sowie auch die Angaben der Nebenkostenvorauszahlungen verstehen sich monatlich pro Quadratmeter zuzüglich der gesetzlichen Mehrwertsteuer.
Irrtum und Zwischenvermietung bzw. -verkauf sind vorbehalten. Für die Richtigkeit und Vollständigkeit der Angaben übernehmen wir keine Haftung.
Bei weiteren Fragen oder zur Vereinbarung eines individuellen Besichtigungstermins können Sie uns gerne telefonisch unter 069 - 173 269 390 oder per E-Mail unter info@vvimmobilien.com kontaktieren.
Wir weisen auf unsere Allgemeinen Geschäftsbedingungen hin. Durch weitere Inanspruchnahme unserer Leistungen erklären Sie die Kenntnis und Ihr Einverständnis.
Das könnte Ihnen auch gefallen
Modernisiertes Bürogebäude mit hoher Visibilität
Moderne Büroflächen in zentraler Lage
Exklusive Büroflächen im Bankenviertel

V&V Immobilien GmbH
Herr Dean Vukovic
Lange Strasse 59
60311 Frankfurt am Main
Telefon: +49 69 173 269 390
Mobil: +49 172 66 99 799
Fax: +49 69 173 269 399
























