Frankfurt am Main:
Moderne Bürofläche in verkehrsgünstiger Lage
Objekt-Nr.: 2539

Außenansicht

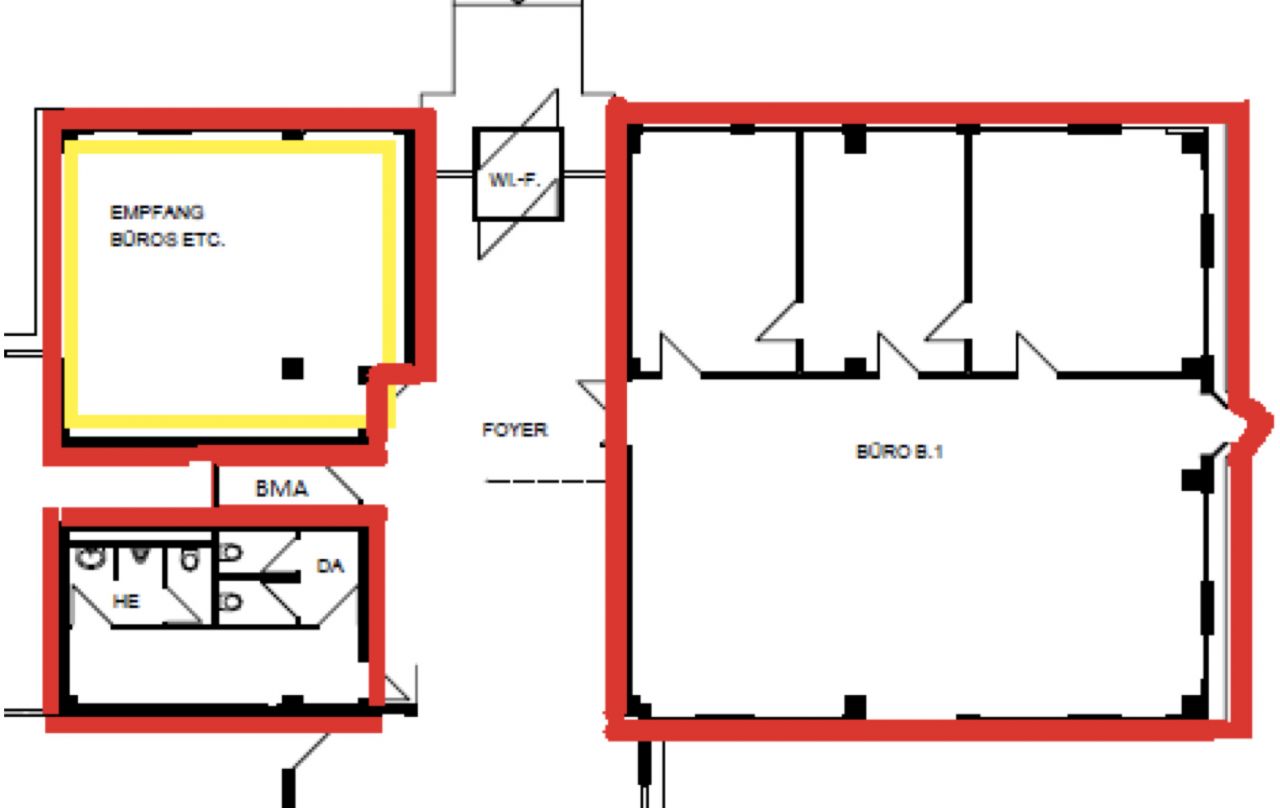
Foyer

Büro mit Beispielmöbilierung

Küche

Büro 2

Konferenzraum

2.Obergeschoss







Mietpreis zzgl. NK:
12 € pro m²
Büro-/Praxisfläche ca.:
534 m²
Nebenkosten: 4,60 € pro m²
Provisionspflichtig: nein
Letzte Modernisierung/ Sanierung: 2002
Baujahr-Gebäude: 1970
Etage: 2
Etagenanzahl: 15
Anzahl der Parkflächen: 129 x Außenstellplatz, pro Stück 40 €
Fahrstuhl: ja
Lastenaufzug: ja
Klimaanlage: ja
DV-Verkabelung vorhanden: ja
Bodenbelag: nach Wunsch
Zustand: nach Vereinbarung
Endenergieverbrauch Wärme: 84 kWh/(m²*a)
Endenergieverbrauch Strom: 67,50 kWh/(m²*a)
Fußweg zu Öffentl. Verkehrsmitteln: 2 Minute(n)
Heizung: Zentralheizung
Befeuerungsart: Gas
Energieausweistyp: Verbrauchsausweis
Die Mietpreise sowie auch die Angaben der Nebenkostenvorauszahlungen verstehen sich monatlich pro Quadratmeter zuzüglich der gesetzlichen Mehrwertsteuer. Irrtum und Zwischenvermietung bzw. -verkauf sind vorbehalten. Für die Richtigkeit und Vollständigkeit der Angaben übernehmen wir keine Haftung. Bei weiteren Fragen oder zur Vereinbarung eines individuellen Besichtigungstermins können Sie uns gerne telefonisch unter 069 - 173 269 390 oder per E-Mail unter info@vvimmobilien.com kontaktieren.
Wir weisen auf unsere Allgemeinen Geschäftsbedingungen hin. Durch weitere Inanspruchnahme unserer Leistungen erklären Sie die Kenntnis und Ihr Einverständnis.
Das könnte Ihnen auch gefallen
Bürofläche im Waldpark Dietzenbach

V&V Immobilien GmbH
Herr Dean Vukovic
Lange Strasse 59
60311 Frankfurt am Main
Telefon: +49 69 173 269 390
Mobil: +49 172 66 99 799
Fax: +49 69 173 269 399












