Frankfurt am Main:
Gepflegte Bürofläche in Bockenheim | Nähe Westend & Bockenheimer Warte
Objekt-Nr.: 2754

Außenansicht

Meetingraum

Büroflur

1.Obergeschoss




Mietpreis zzgl. NK:
21,50 € pro m²
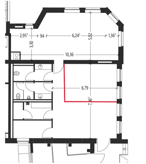
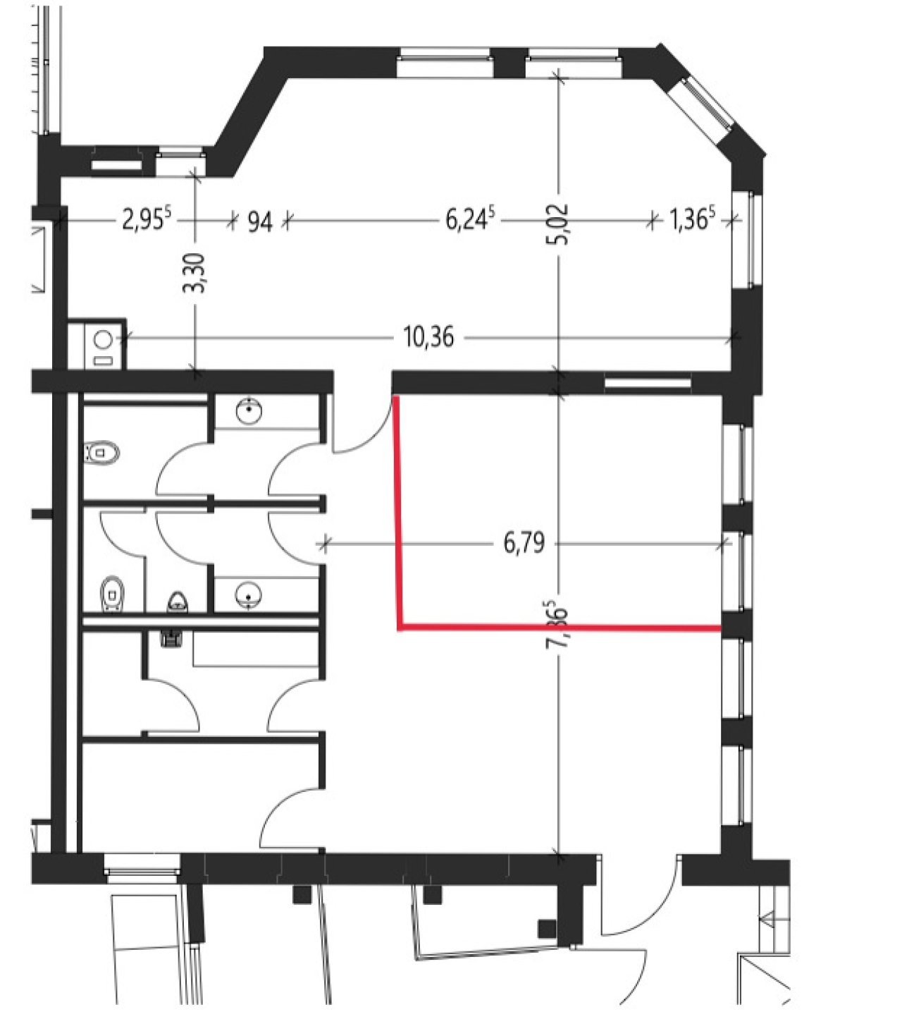
Büro-/Praxisfläche ca.:
147 m²
Das Objekt ist Teil eines zwischen 1997 und 2002 vollständig revitalisierten und neu errichteten Büroensembles – konzipiert nach modernen Anforderungen an zeitgemäße Arbeitsflächen. Das Gebäude befindet sich in gepflegtem Zustand und wurde zuletzt 2015 modernisiert.
Im 1. Obergeschoss steht eine kompakte, funktionale Bürofläche zur Verfügung – ideal für kleine Unternehmen, Kanzleien, Beratungsbüros oder Praxen, die eine repräsentative Adresse in zentraler Frankfurter Lage suchen.
Nebenkosten: 3,50 € pro m²
Provisionspflichtig: nein
Letzte Modernisierung/ Sanierung: 2015
Qualität der Ausstattung: gehoben
Baujahr-Gebäude: 1999
Etage: 1
Etagenanzahl: 4
Küche: Einbauküche
Fahrstuhl: ja
Klimaanlage: ja
Barrierefrei: ja
DV-Verkabelung vorhanden: ja
Bodenbelag: nach Wunsch
Zustand: gepflegt
Endenergieverbrauch Wärme: 69,10 kWh/(m²*a)
Endenergieverbrauch Strom: 29 kWh/(m²*a)
Fußweg zu Öffentl. Verkehrsmitteln: 2 Minute(n)
Fahrzeit zum nächsten Hauptbahnhof: 6 Minute(n)
Fahrzeit zur nächsten BAB: 3 Minute(n)
Fahrzeit zum nächsten Flughafen: 20 Minute(n)
Befeuerungsart: Gas
Energieausweistyp: Verbrauchsausweis
Die Mietpreise sowie auch die Angaben der Nebenkostenvorauszahlungen verstehen sich monatlich pro Quadratmeter zuzüglich der gesetzlichen Mehrwertsteuer.
Irrtum und Zwischenvermietung bzw. -verkauf sind vorbehalten. Für die Richtigkeit und Vollständigkeit der Angaben übernehmen wir keine Haftung.
Bei weiteren Fragen oder zur Vereinbarung eines individuellen Besichtigungstermins können Sie uns gerne telefonisch unter 069 - 173 269 390 oder per E-Mail unter info@vvimmobilien.com kontaktieren.
Wir weisen auf unsere Allgemeinen Geschäftsbedingungen hin. Durch weitere Inanspruchnahme unserer Leistungen erklären Sie die Kenntnis und Ihr Einverständnis.
Das könnte Ihnen auch gefallen
Modernes Bürogebäude in Eschborn
Klimatisierte Büroflächen im Gallusviertel
Flexible Büroflächen in gepflegtem Gebäude

V&V Immobilien GmbH
Herr Dean Vukovic
Lange Strasse 59
60311 Frankfurt am Main
Telefon: +49 69 173 269 390
Mobil: +49 172 66 99 799
Fax: +49 69 173 269 399



















