Pfungstadt:
Moderne Büroflächen in verkehrsgünstiger Lage
Property ID: 2438

Bürobereich

Treppenhaus

Innenansicht Büro

Büro

Innenansicht

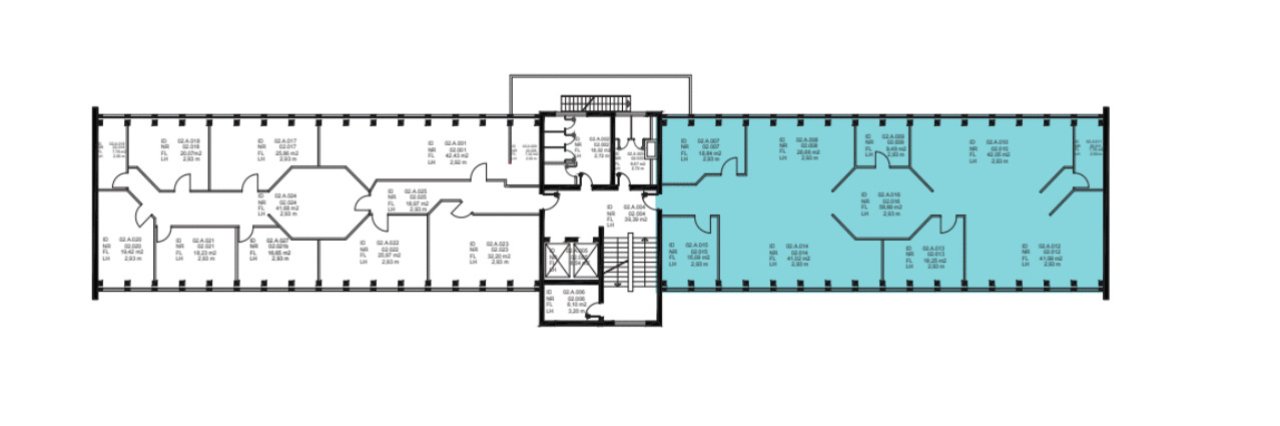
2.Obergeschoss

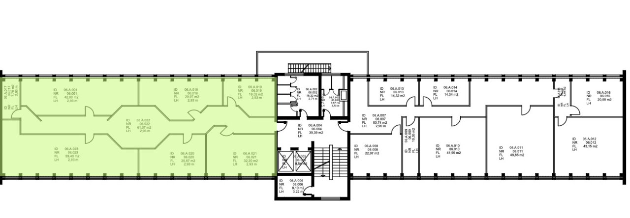
6.Obergeschoss







Rental price plus utilities:
7 € per sq.m.
Office/practice area:
745 sq. m.
Das Bürogebäude ist am Haupteingang des Business Parks gelegen und bildet mit seinen gut ausgestatteten Flächen das Herzstück. Das Gebäude verfügt über moderne Gemeinschaftsteeküchen sowie einen Personenaufzug. Die Büros besitzen eine gute und sichere EDV-Verkabelung.
Additional expenses: 4,12 € per sq.m.
Subject to commission: no
Quality of fittings: Regular
Number of floors: 7
Kitchen: Fitted kitchen
Lift: yes
DV cabling available: yes
Floor covering: Laminate, As desired, Carpet
Condition: Fully renovated
Drive to nearest motorway: 3 Minute(s)
Drive to nearest airport: 23 Minute(s)
Die Mietpreise sowie auch die Angaben der Nebenkostenvorauszahlungen verstehen sich monatlich pro Quadratmeter zuzüglich der gesetzlichen Mehrwertsteuer.
Irrtum und Zwischenvermietung bzw. -verkauf sind vorbehalten. Für die Richtigkeit und Vollständigkeit der Angaben übernehmen wir keine Haftung.
Bei weiteren Fragen oder zur Vereinbarung eines individuellen Besichtigungstermins können Sie uns gerne telefonisch unter 069 - 173 269 390 oder per E-Mail unter info@vvimmobilien.com kontaktieren.
Wir weisen auf unsere Allgemeinen Geschäftsbedingungen hin. Durch weitere Inanspruchnahme unserer Leistungen erklären Sie die Kenntnis und Ihr Einverständnis.
You might also like
Modernisiertes Bürogebäude - Nachhaltig und effizient
Das perfekte Umfeld für kreative Köpfe
Moderner Bürokomplex direkt am Kaiserlei

V&V Immobilien GmbH
Mr. Dean Vukovic
Lange Strasse 59
60311 Frankfurt am Main
Phone: +49 69 173 269 390
Mobile phone: +49 172 66 99 799
Fax: +49 69 173 269 399






























