Frankfurt am Main:
Sanierte Büro- / Praxisfläche in 1A-Lage – direkt auf der Zeil
Property ID: 2724

Außenansicht

Innenansicht

Innenansicht

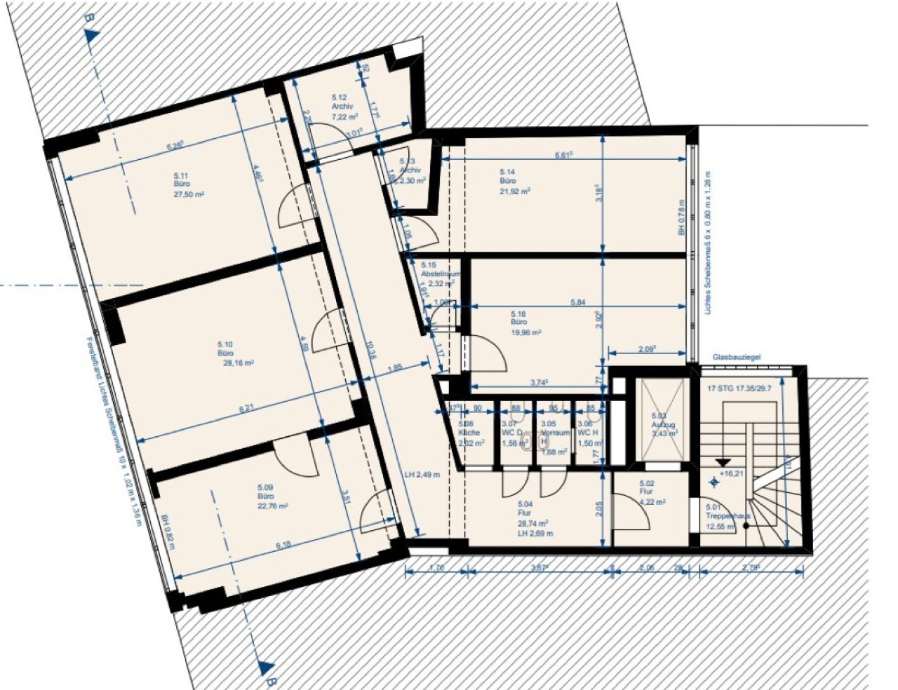
5.Obergeschoss




Rental price plus utilities:
20,95 € per sq.m.
Office/practice area:
200 sq. m.
Die Liegenschaft bietet moderne Büro- und Praxisflächen in einem klassizistischen Gebäudeensemble in absoluter Innenstadtlage – direkt gegenüber der MyZeil. Die Einheit verbindet repräsentativen Charakter mit zeitgemäßem Standard.
Die bestehende Raumstruktur kann bei Bedarf zurückgebaut und flexibel an die individuellen Anforderungen des Mieters angepasst werden. Das Umfeld ist geprägt von einer hervorragenden Infrastruktur mit zahlreichen Hotels, Gastronomie- und Einkaufsmöglichkeiten in fußläufiger Distanz.
Stellplätze stehen in den umliegenden Parkhäusern zur Anmietung zur Verfügung; zusätzlich befinden sich öffentliche Parkmöglichkeiten entlang der Hochstraße.
Die Immobilie zeichnet sich durch eine außergewöhnlich hohe Sichtbarkeit sowohl von der Zeil als auch von der Hauptwache aus und stellt einen markanten Standort in der Frankfurter Innenstadt dar.
In unmittelbarer Umgebung befinden sich die Zeil, Goethestraße und die Freßgass, die ein vielfältiges Angebot an Einzelhandel und Gastronomie bieten. Die Hauptwache ist in wenigen Gehminuten erreichbar und gewährleistet eine exzellente Anbindung an den öffentlichen Nahverkehr.
Über die Autobahnen A648, A66 und A5 sind der Flughafen Frankfurt, das Frankfurter Kreuz sowie das Westkreuz schnell und bequem erreichbar.
Additional expenses: 4 € per sq.m.
Subject to commission: no
Last renovation/ refurbishment: 2025
Quality of fittings: Regular
Year of construction: 1958
Storey: 5
Kitchen: Fitted kitchen
Lift: yes
Floor covering: As desired
Condition: Fully renovated
Walking distance to public transport: 2 Minute(s)
Drive to nearest rail station: 6 Minute(s)
Drive to nearest motorway: 8 Minute(s)
Drive to nearest airport: 17 Minute(s)
Die Mietpreise sowie auch die Angaben der Nebenkostenvorauszahlungen verstehen sich monatlich pro Quadratmeter zuzüglich der gesetzlichen Mehrwertsteuer.
Irrtum und Zwischenvermietung bzw. -verkauf sind vorbehalten. Für die Richtigkeit und Vollständigkeit der Angaben übernehmen wir keine Haftung.
Bei weiteren Fragen oder zur Vereinbarung eines individuellen Besichtigungstermins können Sie uns gerne telefonisch unter 069 - 173 269 390 oder per E-Mail unter info@vvimmobilien.com kontaktieren.
Wir weisen auf unsere Allgemeinen Geschäftsbedingungen hin. Durch weitere Inanspruchnahme unserer Leistungen erklären Sie die Kenntnis und Ihr Einverständnis.
You might also like
Ihr repräsentativer Firmensitz in der Stadtmitte
Modernes Bürogebäude in Eschborn - Hochwertiger Ausbau nach Mieterwunsch
The Unique – Moderne Büroflächen direkt am Flughafen BER - 2 OG

V&V Immobilien GmbH
Mr. Dean Vukovic
Lange Strasse 59
60311 Frankfurt am Main
Phone: +49 69 173 269 390
Mobile phone: +49 172 66 99 799
Fax: +49 69 173 269 399

































