Groß Gerau:
MFH mit 4 Wohnungen | ca. 396 m² | Groß-Gerau
Property ID: 2728

Representative old building villa with timeless charm and elaborate facade design – your prestigious property with potential for historical preservation!

Practical multi-bed room with comfort: roller shutter-protected window front and spacious storage guarantee quality of living!

Brightly lit kitchen with dining area - modern living comfort on 12 m²!

Spacious multi-bed room with optimal layout and bright wooden parquet – perfect for students or worker accommodations!

Brightly lit corridor with elegant parquet flooring - your entrance to comfort!

Comfortable shower bath with towel radiator and natural daylight - Practical equipment in a small space!

Modern fitted kitchen with thoughtful layout and high-quality equipment – cooking and living combined in an elegant way!

Timeless elegance: Heritage-listed wooden staircase with intricately turned balustrade invites dreaming

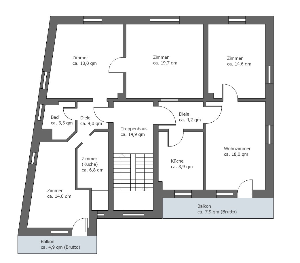
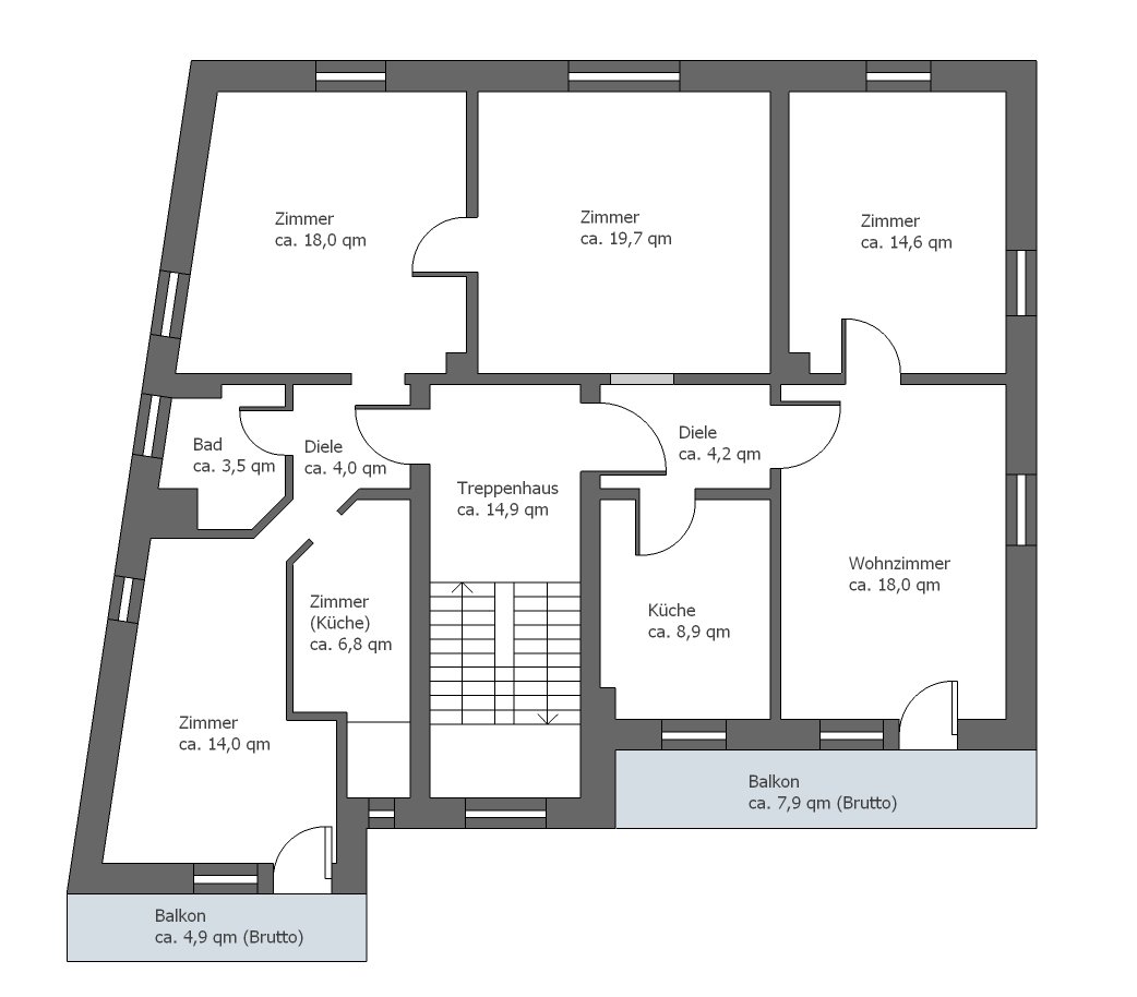
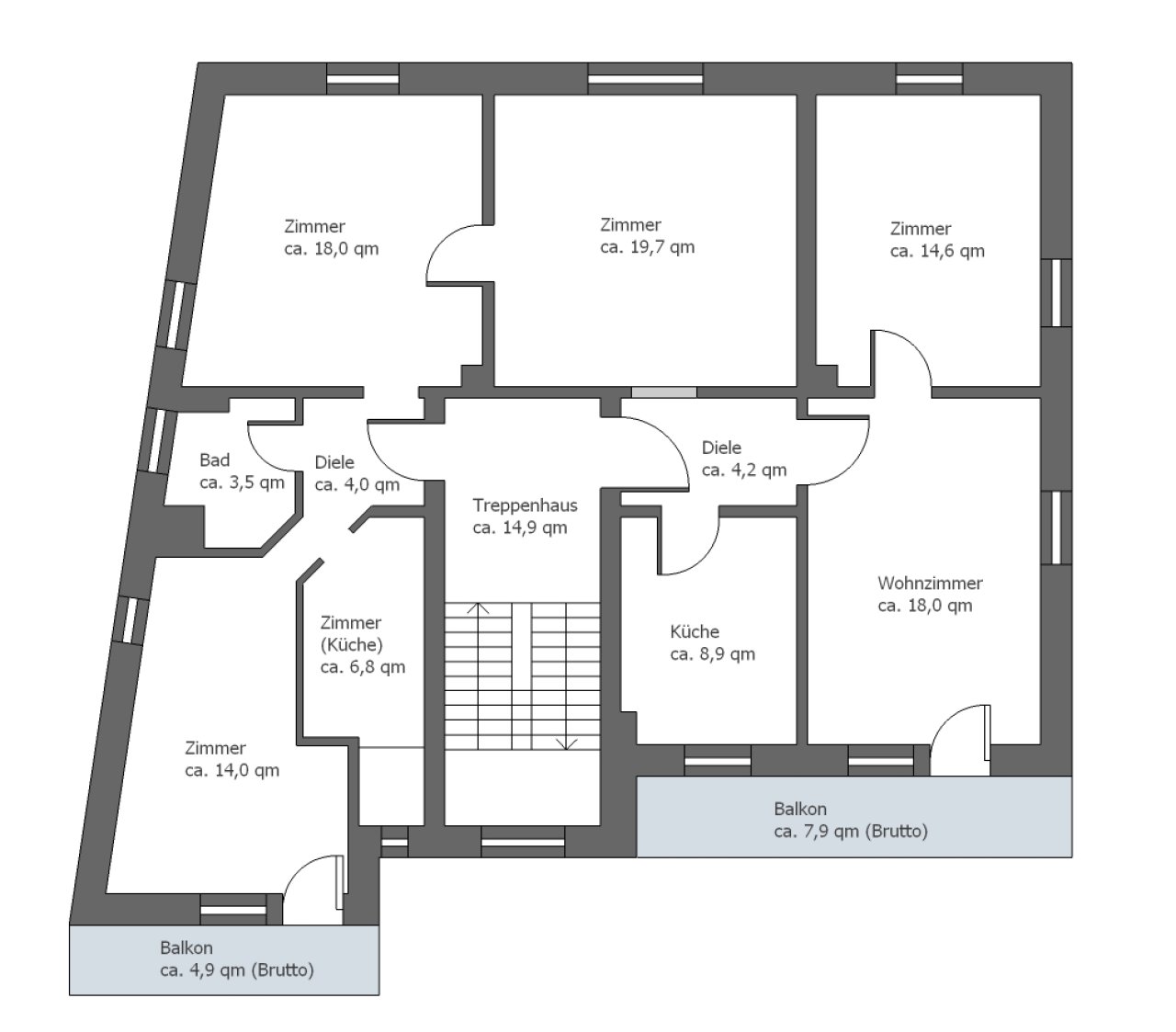
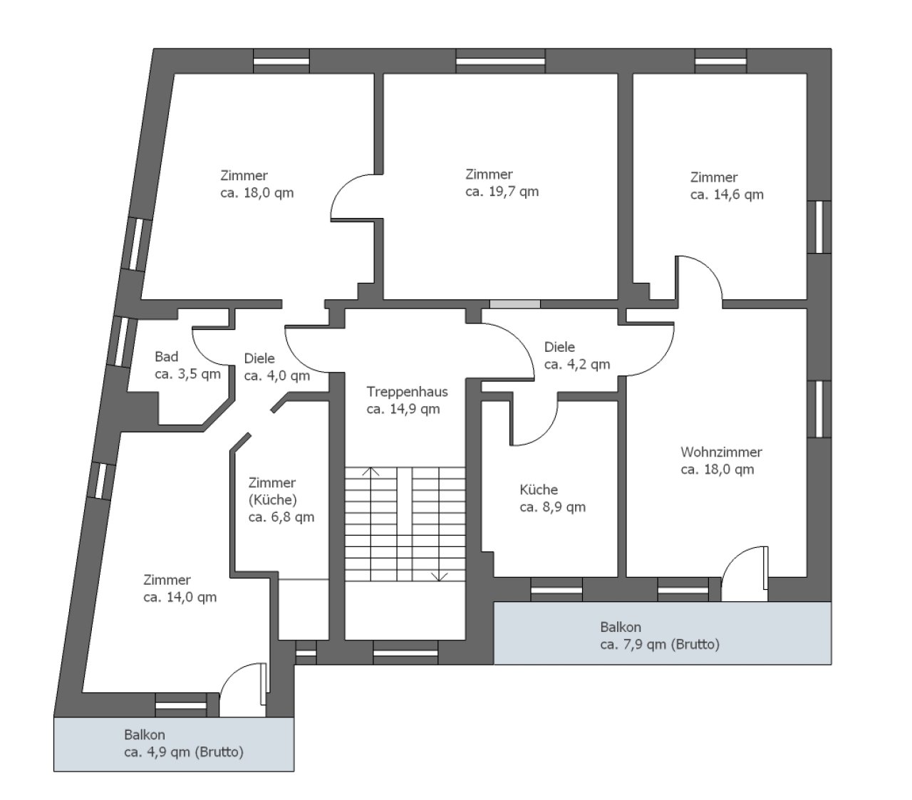
Thoughtful layout: Spacious 4-room apartment with two balconies and optimal room distribution

Thoughtfully designed 4-room apartment with two balconies and optimal layout

Optimally cut 4-room apartment with two balconies and well-thought-out layout











Price:
850.000 €
Living space:
396 sq. m.
Plot size:
221 sq. m.
No. of rooms:
15
Zum Verkauf steht ein Mehrfamilienhaus mit 3 Etagen und insgesamt 4 Wohnungen, Baujahr ca. 1900, auf einem 221 m² großen Grundstück.
Die vermietbare Wohnfläche beträgt ca. 396 m².
Stellplätze sind auf dem Hauptgrundstück nicht vorhanden.
Kulturdenkmal
• Sehr gute steuerliche Abschreibungsmöglichkeiten gemäß Denkmalschutz
• Kein Energieausweis erforderlich aufgrund des Denkmalsta
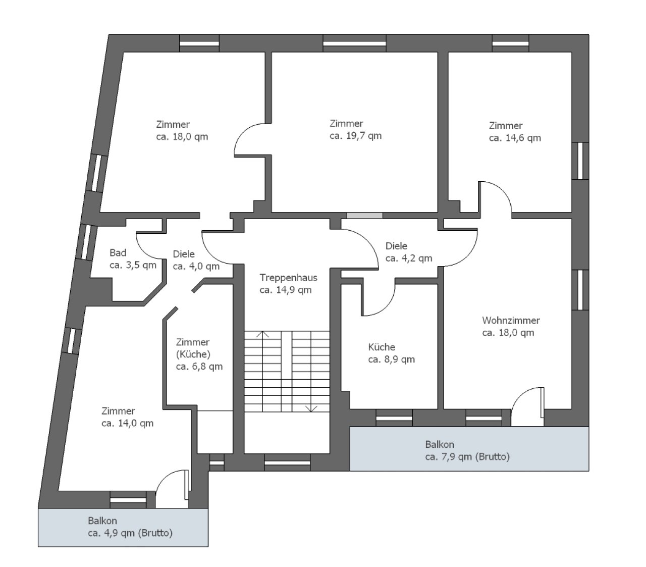
Flächenaufstellung (ca.-Angaben)
Erdgeschoss
• Wohnung EG links: ca. 69,0 m²
• Wohnung EG rechts: ca. 55,9 m²
Obergeschoss
• 1 Wohnung: ca. 127,8 m² (inkl. Balkonanteil)
Dachgeschoss
• 1 Wohnung: ca. 132,0 m² (inkl. Balkonanteile)
Zusätzlich
• Abstellflächen im Treppenhaus: ca. 4,5 m²
Gesamtwohnfläche: ca. 396,0 m²
Optional kann ein separates Grundstück mit ca. 153 m² zusätzlich erworben werden. Auf diesem befinden sich 3 Garagen.…
Type of house: Apartment building
Number of floors: 3
Subject to commission: yes
Commission Rate: 5,95 % ink. MwSt.
Useable area: 120 sq. m.
Number of bedrooms: 11
Number of bathrooms: 4
Balcony: 3
Basement: Full cellar
Alarm system: yes
Furnished: no
Quality of fittings: Regular
Year of construction: 1890
Construction phase: House complete
Available from: 1.3.2026
Condition: Well kept
Bei Abschluss eines notariellen Kaufvertrages ist vom Käufer eine Provision in Höhe von 5,00 % des beurkundeten Kaufpreises zzgl. gesetzlicher Umsatzsteuer zu zahlen.
Dies entspricht derzeit 5,95 % inkl. MwSt.
Die Provision ist mit Abschluss des notariellen Kaufvertrages verdient und fällig.
Haftungsausschluss / Haftungsbegrenzung
Die in diesem Exposé enthaltenen Angaben, Beschreibungen, Flächen- und Maßangaben sowie sonstige Informationen beruhen auf den vom Eigentümer bzw. von Dritten zur Verfügung gestellten Unterlagen und Auskünften.
Eine Gewähr für die Vollständigkeit, Richtigkeit und Aktualität dieser Angaben wird nicht übernommen.
Irrtum und Zwischenverkauf bleiben vorbehalten.
Eine Haftung des Maklers für unrichtige oder unvollständige Angaben ist ausgeschlossen, sofern diese nicht auf vorsätzlichem oder grob fahrlässigem Verhalten beruhen.
Bei weiteren Fragen oder zur Vereinbarung eines individuellen Besichtigungstermins können Sie uns gerne telefonisch unter 069 - 173 269 390 oder per E-Mail unter info@vvimmobilien.com kontaktieren.
Wir weisen ausdrücklich auf unsere Allgemeinen Geschäftsbedingungen (AGB) hin.
Durch die weitere Inanspruchnahme unserer Leistungen erklären Sie, von diesen Kenntnis genommen zu haben und mit deren Geltung einverstanden zu sein.
You might also like
Westend Sky - Ihr neuer Firmensitz in Bestlage
Individuelle Bürofläche in direkter Citylage - Ausbau nach Mieterwunsch
The Unique – Moderne Büroflächen direkt am Flughafen BER - 6 OG

V&V Immobilien GmbH
Mr. Dean Vukovic
Lange Strasse 59
60311 Frankfurt am Main
Phone: +49 69 173 269 390
Mobile phone: +49 172 66 99 799
Fax: +49 69 173 269 399
































