Frankfurt am Main:
Moderne Büroflächen in der City West
Objekt-Nr.: 1300

Außenansicht

Büroflur

Flur

Teeküche

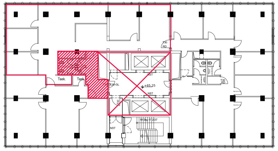
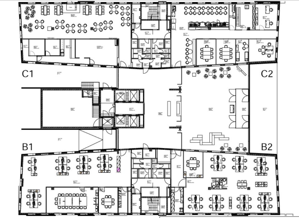
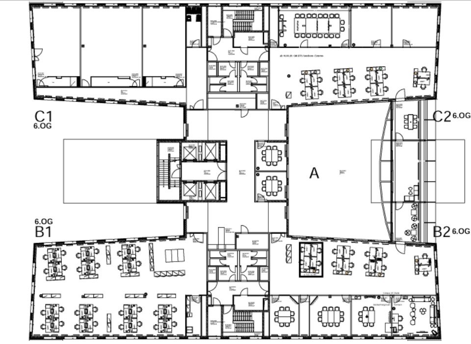
Raumplanung Regelgeschoss





Mietpreis zzgl. NK:
16,50 € pro m²
Büro-/Praxisfläche ca.:
4.362 m²
Nebenkosten: 4,20 € pro m²
Provisionspflichtig: nein
Letzte Modernisierung/ Sanierung: 2013
Baujahr-Gebäude: 1998
Etagenanzahl: 7
Anzahl der Parkflächen: 162 x Tiefgarage, pro Stück 130 €
Kantine/Cafeteria: ja
Fahrstuhl: ja
Lastenaufzug: ja
Klimaanlage: ja
DV-Verkabelung vorhanden: ja
Bodenbelag: Teppichboden
Zustand: gepflegt
Endenergieverbrauch Wärme: 71 kWh/(m²*a)
Endenergieverbrauch Strom: 75 kWh/(m²*a)
Fußweg zu Öffentl. Verkehrsmitteln: 2 Minute(n)
Fahrzeit zum nächsten Hauptbahnhof: 7 Minute(n)
Fahrzeit zur nächsten BAB: 4 Minute(n)
Fahrzeit zum nächsten Flughafen: 15 Minute(n)
Energieausweistyp: Verbrauchsausweis
Die Mietpreise sowie auch die Angaben der Nebenkostenvorauszahlungen verstehen sich monatlich pro Quadratmeter zuzüglich der gesetzlichen Mehrwertsteuer. Irrtum und Zwischenvermietung bzw. -verkauf sind vorbehalten. Für die Richtigkeit und Vollständigkeit der Angaben übernehmen wir keine Haftung. Bei weiteren Fragen oder zur Vereinbarung eines individuellen Besichtigungstermins können Sie uns gerne telefonisch unter 069 - 173 269 390 oder per E-Mail unter info@vvimmobilien.com kontaktieren.
Wir weisen auf unsere Allgemeinen Geschäftsbedingungen hin. Durch weitere Inanspruchnahme unserer Leistungen erklären Sie die Kenntnis und Ihr Einverständnis.
Das könnte Ihnen auch gefallen
Top Lage und Top Ausblick!
Repräsentatives Bürogebäude mit beeindruckendem Foyer
Praxis-/Büroflächen in der Nähe des Hauptbahnhofs

V&V Immobilien GmbH
Herr Dean Vukovic
Lange Strasse 59
60311 Frankfurt am Main
Telefon: +49 69 173 269 390
Mobil: +49 172 66 99 799
Fax: +49 69 173 269 399


























