Frankfurt am Main:
City Gate - Das Tor zur Frankfurter Innenstadt
Objekt-Nr.: 1583

Ausbaubeispiel

Ausbaubeispiel

Ausbaubeispiel

Lobby

Ausbaubeispiel

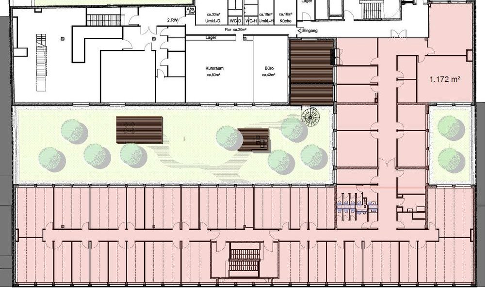
Raumplanung Regelgeschoss






Mietpreis zzgl. NK:
21,50 € pro m²
Büro-/Praxisfläche ca.:
630 m²
Nebenkosten: 7 € pro m²
Provisionspflichtig: nein
Letzte Modernisierung/ Sanierung: 2017
Qualität der Ausstattung: gehoben
Baujahr-Gebäude: 1964
Etagenanzahl: 28
Anzahl der Parkflächen: 139 x Tiefgarage, pro Stück 120 €
Küche: Einbauküche
Kantine/Cafeteria: ja
Fahrstuhl: ja
Keller: ja
Klimaanlage: ja
Barrierefrei: ja
DV-Verkabelung vorhanden: ja
Bodenbelag: nach Wunsch
Zustand: gepflegt
Endenergieverbrauch Wärme: 191 kWh/(m²*a)
Endenergieverbrauch Strom: 67 kWh/(m²*a)
Fußweg zu Öffentl. Verkehrsmitteln: 1 Minute(n)
Fahrzeit zum nächsten Hauptbahnhof: 7 Minute(n)
Fahrzeit zur nächsten BAB: 6 Minute(n)
Fahrzeit zum nächsten Flughafen: 20 Minute(n)
Befeuerungsart: Gas
Energieausweistyp: Verbrauchsausweis
Die Mietpreise sowie auch die Angaben der Nebenkostenvorauszahlungen verstehen sich monatlich pro Quadratmeter zuzüglich der gesetzlichen Mehrwertsteuer.
Irrtum und Zwischenvermietung bzw. -verkauf sind vorbehalten. Für die Richtigkeit und Vollständigkeit der Angaben übernehmen wir keine Haftung.
Bei weiteren Fragen oder zur Vereinbarung eines individuellen Besichtigungstermins können Sie uns gerne telefonisch unter 069 - 173 269 390 oder per E-Mail unter info@vvimmobilien.com kontaktieren.
Wir weisen auf unsere Allgemeinen Geschäftsbedingungen hin. Durch weitere Inanspruchnahme unserer Leistungen erklären Sie die Kenntnis und Ihr Einverständnis.
Das könnte Ihnen auch gefallen
Modernes Bürohaus mit repräsentativen Außenflächen
Moderne Büroflächen in direkter Mainlage
Moderne Büroflächen direkt in der Fußgängerzone

V&V Immobilien GmbH
Herr Dean Vukovic
Lange Strasse 59
60311 Frankfurt am Main
Telefon: +49 69 173 269 390
Mobil: +49 172 66 99 799
Fax: +49 69 173 269 399




















