Frankfurt am Main:
Zentrale Bürofläche mit tollem Blick über Frankfurt
Objekt-Nr.: 1703

Außenansicht

Ausbaubeispiel

Eingangsbereich

Ausbaubeispiel

Ausbauvariante

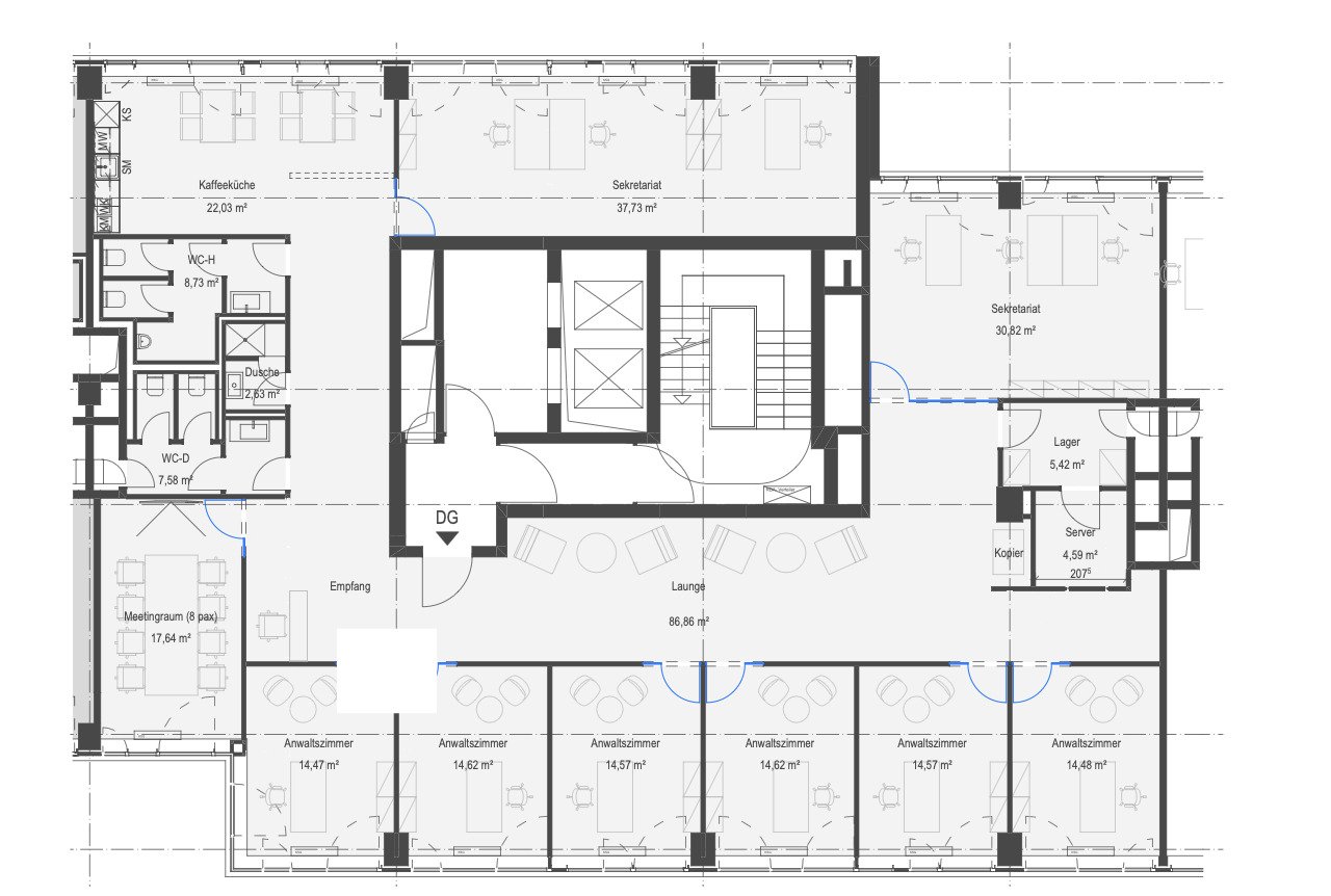
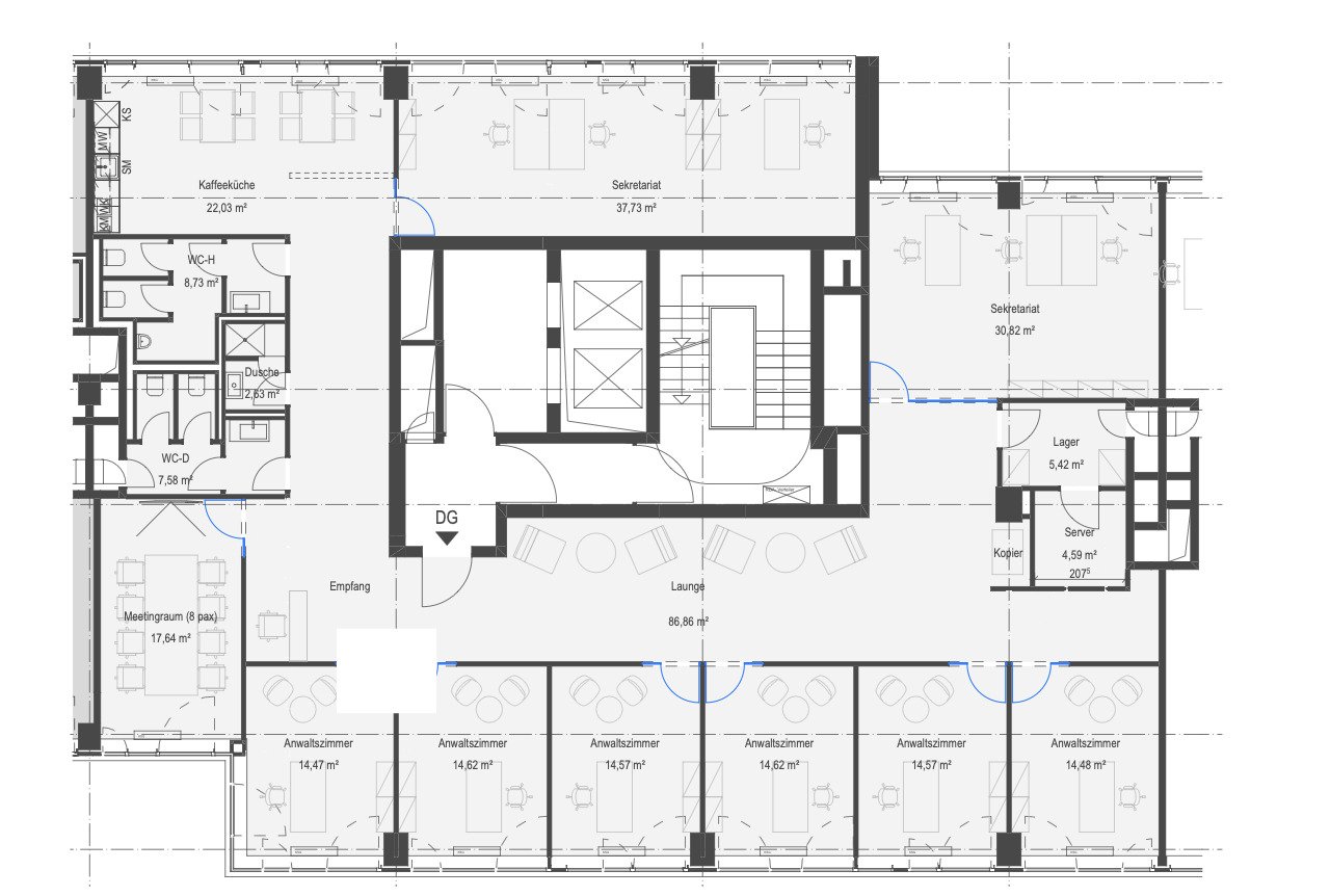
2.Obergeschoss

3.Obergeschoss

6.Obergeschoss

5.Obergeschoss









Mietpreis zzgl. NK:
25 € pro m²
Büro-/Praxisfläche ca.:
3.572 m²
Die Büroflächen werden über 3 verschiedene Zugänge erschlossen.
Heizung sowie Kühlung erfolgen über ein Wärmepumpensystem. Ebenfalls verfügen die Flächen über einen Hohlraumboden.
Der loftartige Charakter wird durch tief gezogene Brüstungen, große Fensterflächen sowie durch strukturierte Sichtbetondecken betont.
Nebenkosten: 4,50 € pro m²
Provisionspflichtig: nein
Letzte Modernisierung/ Sanierung: 2013
Qualität der Ausstattung: gehoben
Etagenanzahl: 10
Küche: Einbauküche
Fahrstuhl: ja
Keller: nein
Klimaanlage: ja
Barrierefrei: ja
DV-Verkabelung vorhanden: ja
Bodenbelag: nach Wunsch
Zustand: neuwertig
Fußweg zu Öffentl. Verkehrsmitteln: 2 Minute(n)
Fahrzeit zum nächsten Hauptbahnhof: 7 Minute(n)
Fahrzeit zur nächsten BAB: 8 Minute(n)
Fahrzeit zum nächsten Flughafen: 20 Minute(n)
Heizung: Zentralheizung
Befeuerungsart: Gas
Energieausweistyp: Bedarfsausweis
Die Mietpreise sowie auch die Angaben der Nebenkostenvorauszahlungen verstehen sich monatlich pro Quadratmeter zuzüglich der gesetzlichen Mehrwertsteuer.
Irrtum und Zwischenvermietung bzw. -verkauf sind vorbehalten. Für die Richtigkeit und Vollständigkeit der Angaben übernehmen wir keine Haftung.
Bei weiteren Fragen oder zur Vereinbarung eines individuellen Besichtigungstermins können Sie uns gerne telefonisch unter 069 - 173 269 390 oder per E-Mail unter info@vvimmobilien.com kontaktieren.
Wir weisen auf unsere Allgemeinen Geschäftsbedingungen hin. Durch weitere Inanspruchnahme unserer Leistungen erklären Sie die Kenntnis und Ihr Einverständnis.
Das könnte Ihnen auch gefallen
Moderne Büroflächen in verkehrsgünstiger Lage
Moderne Büroflächen in Neu-Isenburg
Repräsentatives Bürogebäude in zentraler Lage Darmstadts

V&V Immobilien GmbH
Herr Dean Vukovic
Lange Strasse 59
60311 Frankfurt am Main
Telefon: +49 69 173 269 390
Mobil: +49 172 66 99 799
Fax: +49 69 173 269 399





















