Frankfurt am Main:
Repräsentative Büroflächen in Messenähe
Objekt-Nr.: 1731

Außenansicht

Empfang

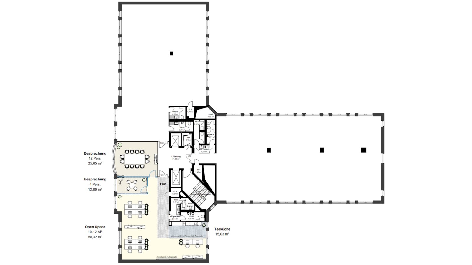
Bürobereich

Umfeld

Außengelände

Meetingraum

2.Obergeschoss







Mietpreis zzgl. NK:
22,50 € pro m²
Büro-/Praxisfläche ca.:
1.768 m²
Der St Martin Tower in Frankfurt ist mit seinem zeitgemäßen Konzept für ein DGNB-Zertifikat in Silber vorgesehen. Seine konsequente Auslegung als »Green Building« schont wertvolle Ressourcen und senkt die Energiekosten.
Durch intelligente Aufteilung und kreative Auslegung von Stockwerksflächen wurde eine optimale Flächennutzung für Ihr neues Büro erreicht. Ihnen als Mieter stehen zudem viele unterschiedliche Nutzungsmöglichkeiten offen.
Im Wing des St Martin Tower lassen sich die Fenster öffnen. Die Büros im Tower verfügen über Balkone und Belüftungsvorrichtungen in den Büros für eine natürliche und individuell regelbare Frischluftzufuhr.
Das im St Martin Tower erstmals eingesetzte LED-Licht »Sequence« von Zumtobel eröffnet neue Möglichkeiten der Lichtsteuerung. Die energieeffiziente Gebäudekühlung durch Betonkernaktivierung sorgt für ein angenehmes Klima.
In den 18 Bürogeschossen im Tower können bis zu zwei separate Mieteinheiten eingerichtet werden. Durch den innovativen Grundriss des Gebäudes lässt sich Ihr Büro mit einem Höchstmaß an Flexibilität planen.
Nebenkosten: 4,90 € pro m²
Provisionspflichtig: nein
Qualität der Ausstattung: gehoben
Baujahr-Gebäude: 2015
Etagenanzahl: 18
Umgebung: Bus, Fitness, Kindergarten, Metro, Nähe Schnellstrasse
Anzahl der Parkflächen: 20 x Tiefgarage, pro Stück 175 €
Küche: Einbauküche
Kantine/Cafeteria: ja
Starkstrom: ja
Fahrstuhl: ja
Keller: ja
Klimaanlage: ja
Barrierefrei: ja
DV-Verkabelung vorhanden: ja
Bodenbelag: nach Wunsch
Zustand: neuwertig
Fußweg zu Öffentl. Verkehrsmitteln: 2 Minute(n)
Fahrzeit zum nächsten Hauptbahnhof: 7 Minute(n)
Fahrzeit zur nächsten BAB: 2 Minute(n)
Fahrzeit zum nächsten Flughafen: 11 Minute(n)
Heizung: Fernwärme
Energieausweistyp: Bedarfsausweis
Die Mietpreise sowie auch die Angaben der Nebenkostenvorauszahlungen verstehen sich monatlich pro Quadratmeter zuzüglich der gesetzlichen Mehrwertsteuer. Irrtum und Zwischenvermietung bzw. -verkauf sind vorbehalten. Für die Richtigkeit und Vollständigkeit der Angaben übernehmen wir keine Haftung. Bei weiteren Fragen oder zur Vereinbarung eines individuellen Besichtigungstermins können Sie uns gerne telefonisch unter 069 - 173 269 390 oder per E-Mail unter info@vvimmobilien.com kontaktieren.
Wir weisen auf unsere Allgemeinen Geschäftsbedingungen hin. Durch weitere Inanspruchnahme unserer Leistungen erklären Sie die Kenntnis und Ihr Einverständnis.
Das könnte Ihnen auch gefallen
Moderne Loftflächen mit hohem Ausbaustandard
Repräsentative Büroflächen zu attraktiven Konditionen
Exklusive Bürofläche im Bankenviertel

V&V Immobilien GmbH
Herr Dean Vukovic
Lange Strasse 59
60311 Frankfurt am Main
Telefon: +49 69 173 269 390
Mobil: +49 172 66 99 799
Fax: +49 69 173 269 399



































