Frankfurt am Main:
Modernisiertes Bürogebäude in der City West
Objekt-Nr.: 2507

Außenansicht

Außenansicht

Fassade

Ausbaubeispiel Büro

Ausbaubeispiel

Ausbaubeispiel Open Space

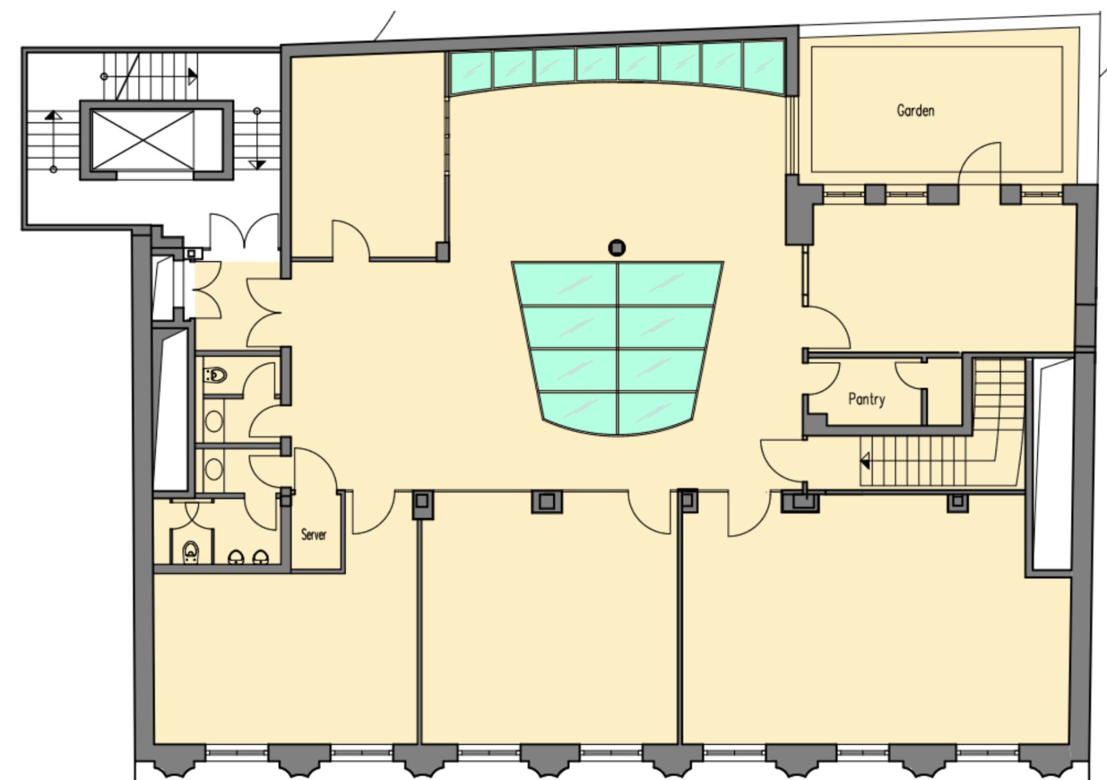
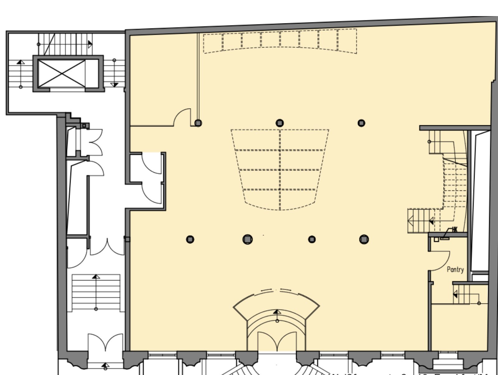
Regelgeschoss Kombi

Regelgeschoss Open Space

Regelgeschoss verzimmert









Mietpreis zzgl. NK:
16,90 € pro m²
Büro-/Praxisfläche ca.:
2.710 m²
Nebenkosten: 3,90 € pro m²
Provisionspflichtig: nein
Letzte Modernisierung/ Sanierung: 2023
Qualität der Ausstattung: gehoben
Baujahr-Gebäude: 2003
Etagenanzahl: 7
Anzahl der Parkflächen: 35 x Tiefgarage, pro Stück 110 €
Küche: Einbauküche
Fahrstuhl: ja
Keller: ja
Klimaanlage: ja
DV-Verkabelung vorhanden: ja
Bodenbelag: nach Wunsch
Zustand: modernisiert
Endenergieverbrauch Wärme: 87 kWh/(m²*a)
Endenergieverbrauch Strom: 74 kWh/(m²*a)
Fußweg zu Öffentl. Verkehrsmitteln: 3 Minute(n)
Fahrzeit zum nächsten Hauptbahnhof: 7 Minute(n)
Fahrzeit zur nächsten BAB: 2 Minute(n)
Fahrzeit zum nächsten Flughafen: 16 Minute(n)
Befeuerungsart: Fernwärme
Energieausweistyp: Verbrauchsausweis
Die Mietpreise sowie auch die Angaben der Nebenkostenvorauszahlungen verstehen sich monatlich pro Quadratmeter zuzüglich der gesetzlichen Mehrwertsteuer. Irrtum und Zwischenvermietung bzw. -verkauf sind vorbehalten. Für die Richtigkeit und Vollständigkeit der Angaben übernehmen wir keine Haftung. Bei weiteren Fragen oder zur Vereinbarung eines individuellen Besichtigungstermins können Sie uns gerne telefonisch unter 069 - 173 269 390 oder per E-Mail unter info@vvimmobilien.com kontaktieren.
Wir weisen auf unsere Allgemeinen Geschäftsbedingungen hin. Durch weitere Inanspruchnahme unserer Leistungen erklären Sie die Kenntnis und Ihr Einverständnis.
Das könnte Ihnen auch gefallen
Green Office - Nachhaltig und Repräsentativ

V&V Immobilien GmbH
Herr Dean Vukovic
Lange Strasse 59
60311 Frankfurt am Main
Telefon: +49 69 173 269 390
Mobil: +49 172 66 99 799
Fax: +49 69 173 269 399

















