Frankfurt am Main:
Moderne Büroflächen in historischem Fabrikgebäude
Objekt-Nr.: 2525

Außenansicht

Teambüro

Empfangsbereich

Flurbereich

Eingangsbereich

Einzelbüro

Ausblick

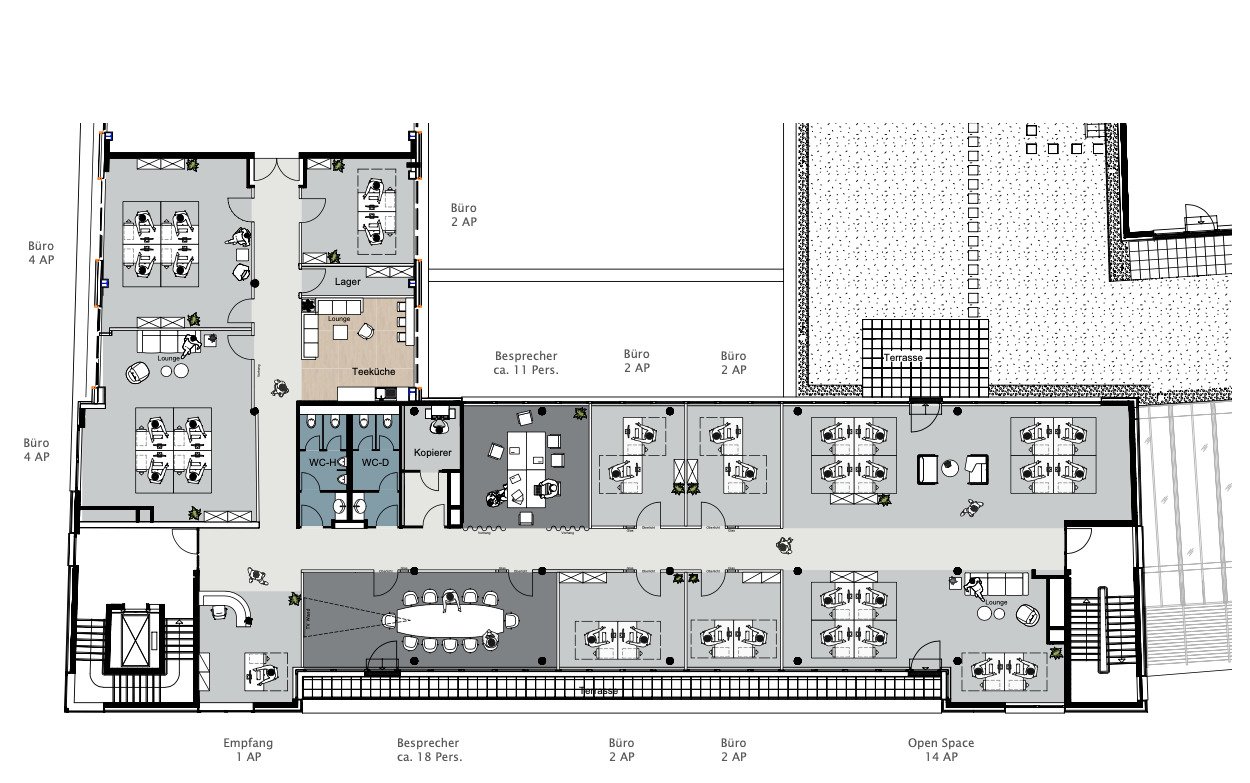
1.Obergeschoss

4.Obergeschoss









Mietpreis zzgl. NK:
13,35 € pro m²
Büro-/Praxisfläche ca.:
575 m²
Errichtet im Jahre 1905, fungierte dieses Bauwerk bis zum Ende der 1980er Jahre als Produktionsstätte für Bettfedern. Zu Beginn der 1990er Jahre wurde eine umfassende Renovierung durchgeführt, die sich an den originalen Bauplänen von 1905 orientierte. Heute präsentiert sich das Gebäude als ein charakteristisches Beispiel für industrielle Büroarchitektur im Klinkerstil.
Im Inneren verbindet es moderne Gestaltungselemente mit großzügigen, lichtdurchfluteten Büroräumen, die durch ihre Höhe und großflächige Fenster bestechen.
Nebenkosten: 3,95 € pro m²
Provisionspflichtig: nein
Letzte Modernisierung/ Sanierung: 2022
Qualität der Ausstattung: gehoben
Baujahr-Gebäude: 1908
Anzahl der Parkflächen: 4 x Tiefgarage, pro Stück 120 €
Küche: Einbauküche
Denkmalschutzobjekt: ja
Fahrstuhl: ja
Klimaanlage: ja
DV-Verkabelung vorhanden: ja
Bodenbelag: nach Wunsch
Zustand: vollständig renoviert
Endenergieverbrauch Wärme: 104 kWh/(m²*a)
Endenergieverbrauch Strom: 15 kWh/(m²*a)
Fußweg zu Öffentl. Verkehrsmitteln: 3 Minute(n)
Fahrzeit zum nächsten Hauptbahnhof: 10 Minute(n)
Fahrzeit zur nächsten BAB: 4 Minute(n)
Fahrzeit zum nächsten Flughafen: 22 Minute(n)
Heizung: Zentralheizung
Befeuerungsart: Gas
Energieausweistyp: Verbrauchsausweis
Die Mietpreise sowie auch die Angaben der Nebenkostenvorauszahlungen verstehen sich monatlich pro Quadratmeter zuzüglich der gesetzlichen Mehrwertsteuer. Irrtum und Zwischenvermietung bzw. -verkauf sind vorbehalten. Für die Richtigkeit und Vollständigkeit der Angaben übernehmen wir keine Haftung. Bei weiteren Fragen oder zur Vereinbarung eines individuellen Besichtigungstermins können Sie uns gerne telefonisch unter 069 - 173 269 390 oder per E-Mail unter info@vvimmobilien.com kontaktieren.
Wir weisen auf unsere Allgemeinen Geschäftsbedingungen hin. Durch weitere Inanspruchnahme unserer Leistungen erklären Sie die Kenntnis und Ihr Einverständnis.
Das könnte Ihnen auch gefallen
Repräsentative Büroflächen mit moderner Ausstattung
Moderne Büroflächen in verkehrsgünstiger Lage
Business Triangle Hanau

V&V Immobilien GmbH
Herr Dean Vukovic
Lange Strasse 59
60311 Frankfurt am Main
Telefon: +49 69 173 269 390
Mobil: +49 172 66 99 799
Fax: +49 69 173 269 399



























