Frankfurt am Main:
Loftfläche in ehemaligem Industriekomplex
Objekt-Nr.: 2609

Außenansicht

Innenhof

Dachgarten

Eingangsbereich

Erdgeschoss

Galerie

Open Space

1

Meetingraum

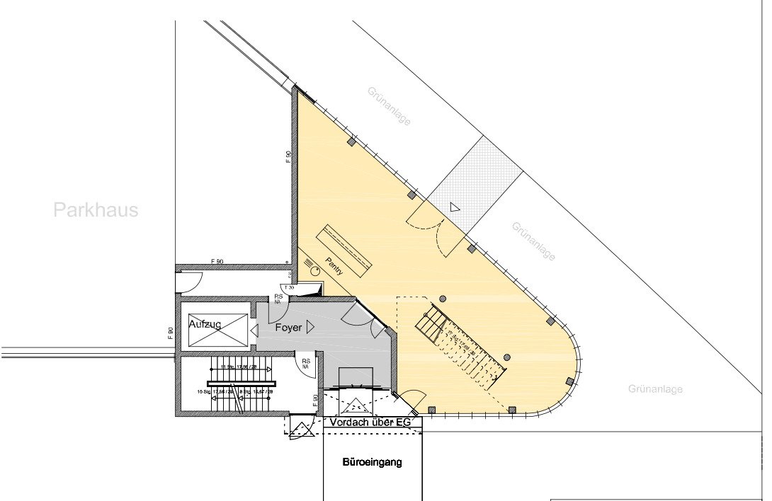
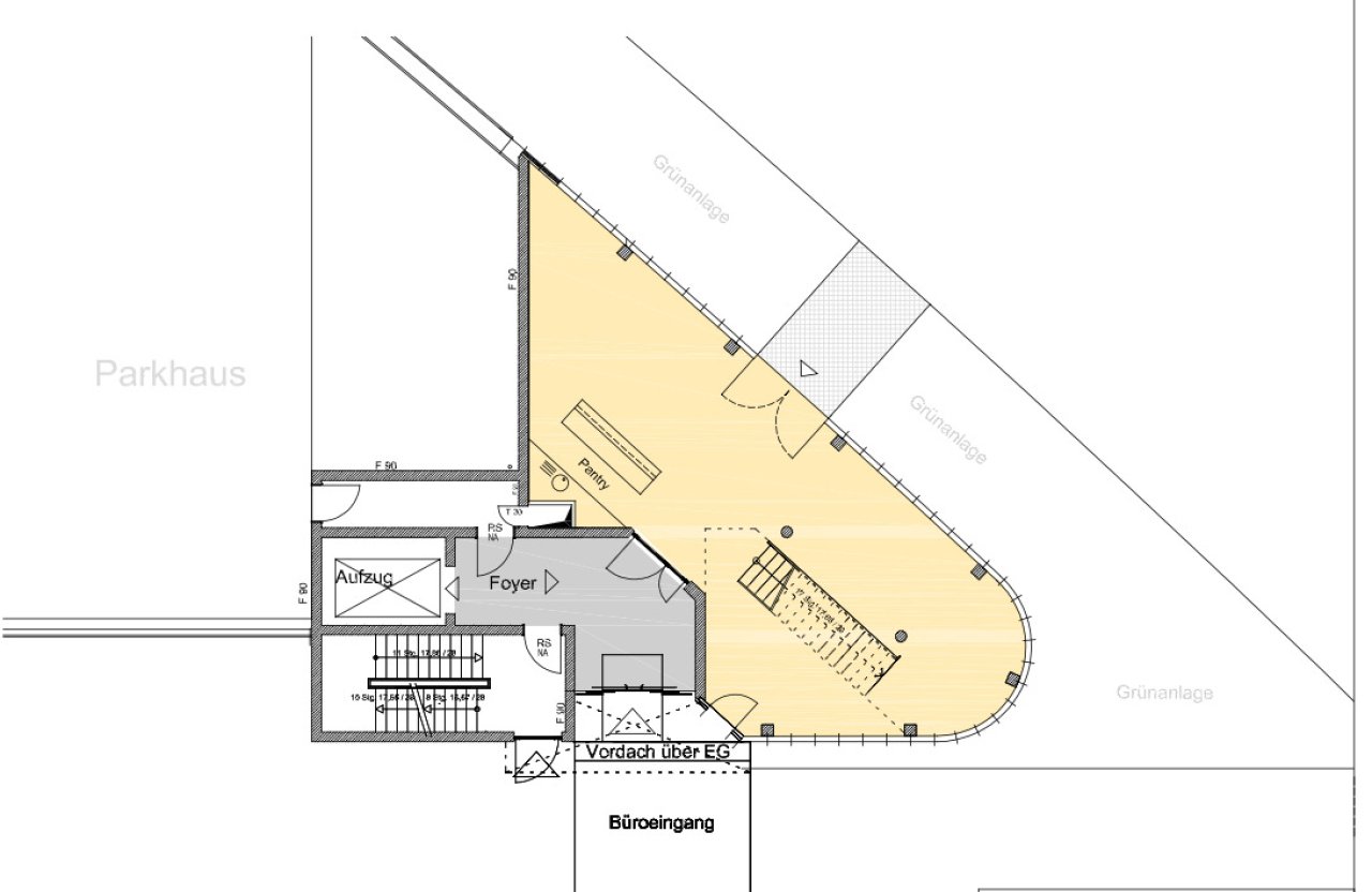
Gebäude G Erdgeschoss

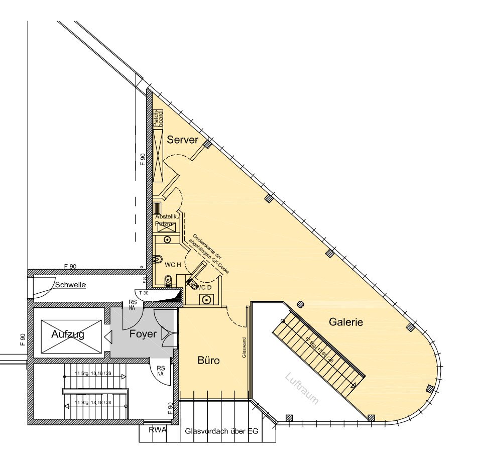
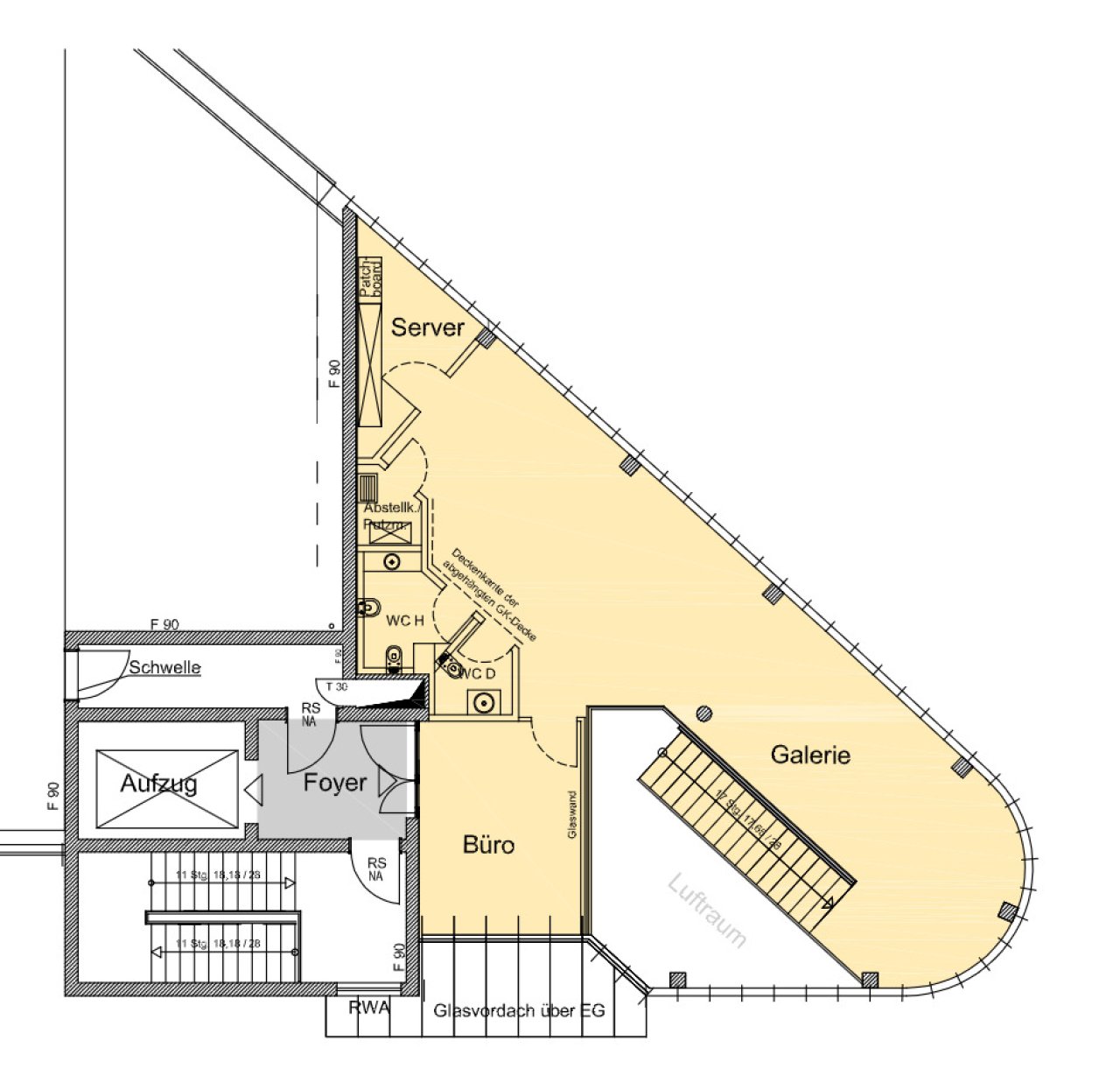
Gebäude G Zwischengeschoss











Mietpreis zzgl. NK:
18 € pro m²
Büro-/Praxisfläche ca.:
2.782 m²
Bei den meisten Gebäuden dieser Liegenschaft handelt es sich um ehemalige Industriebauten, die durch unterschiedliche Ausbauvarianten ihren typischen Loftcharakter erhalten konnten. Hierdurch entstand ein ganz besonderes Architekturerlebnis.
Nebenkosten: 4,50 € pro m²
Provisionspflichtig: nein
Qualität der Ausstattung: gehoben
Baujahr-Gebäude: 1950
Etagenanzahl: 8
Küche: Einbauküche
Kantine/Cafeteria: ja
Fahrstuhl: ja
Klimaanlage: ja
DV-Verkabelung vorhanden: ja
Bodenbelag: nach Wunsch
Zustand: modernisiert
Endenergieverbrauch Wärme: 140 kWh/(m²*a)
Endenergieverbrauch Strom: 99 kWh/(m²*a)
Energieverb. Warmwasser enthalten: ja
Fußweg zu Öffentl. Verkehrsmitteln: 2 Minute(n)
Fahrzeit zum nächsten Hauptbahnhof: 7 Minute(n)
Fahrzeit zur nächsten BAB: 6 Minute(n)
Fahrzeit zum nächsten Flughafen: 15 Minute(n)
Heizung: Zentralheizung
Energieausweistyp: Verbrauchsausweis
Die Mietpreise sowie auch die Angaben der Nebenkostenvorauszahlungen verstehen sich monatlich pro Quadratmeter zuzüglich der gesetzlichen Mehrwertsteuer.
Irrtum und Zwischenvermietung bzw. -verkauf sind vorbehalten. Für die Richtigkeit und Vollständigkeit der Angaben übernehmen wir keine Haftung.
Bei weiteren Fragen oder zur Vereinbarung eines individuellen Besichtigungstermins können Sie uns gerne telefonisch unter 069 - 173 269 390 oder per E-Mail unter info@vvimmobilien.com kontaktieren.
Wir weisen auf unsere Allgemeinen Geschäftsbedingungen hin. Durch weitere Inanspruchnahme unserer Leistungen erklären Sie die Kenntnis und Ihr Einverständnis.
Das könnte Ihnen auch gefallen
Modernes Bürogebäude mit Skylineblick
Bürofläche direkt am Hauptbahnhof
Hochwertig ausgebaute Büroflächen zu fairen Konditionen

V&V Immobilien GmbH
Herr Dean Vukovic
Lange Strasse 59
60311 Frankfurt am Main
Telefon: +49 69 173 269 390
Mobil: +49 172 66 99 799
Fax: +49 69 173 269 399



























