Frankfurt am Main:
Moderne Loftflächen mit hohem Ausbaustandard
Objekt-Nr.: 2626

Dachterrasse

Eingangsbereich

Ausbaubeispiel

Ausbaubeispiel

Ausbaubeispiel

Ausbaubeispiel

Ausbaubeispiel

Ausbauvariante

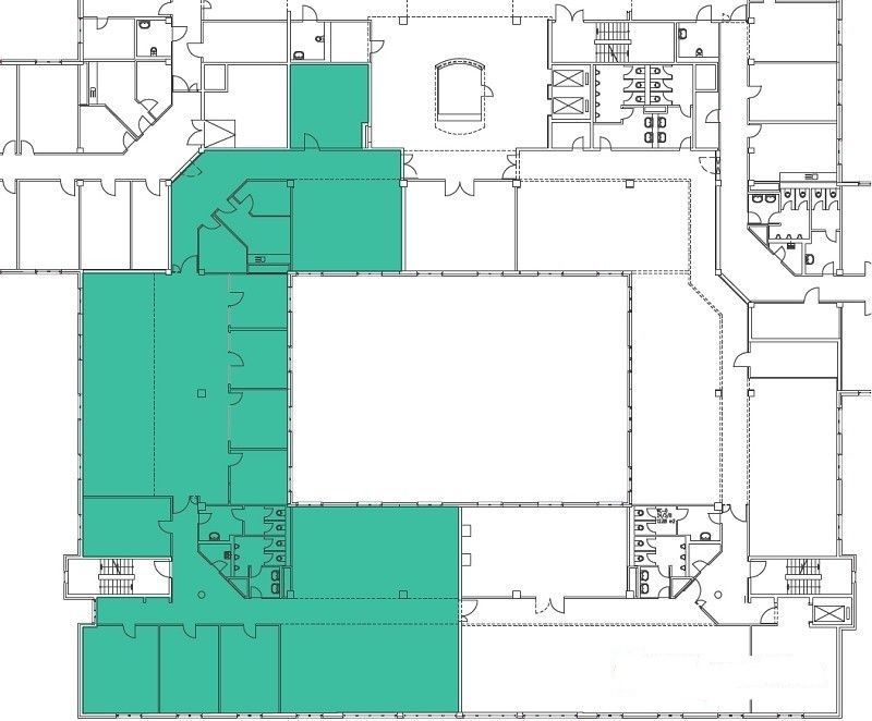
Erdgeschoss mit ca. 277 m²

1. Obergeschoss mit ca. 396 m²

3. Obergeschoss mit ca. 401 m²

4. Obergeschoss mit ca. 401 m²












Mietpreis zzgl. NK:
22,50 € pro m²
Büro-/Praxisfläche ca.:
1.475 m²
Das 1994 errichtete Kontorhaus besticht durch sein Entrée, das von einem frei stehenden Eingangstor markiert wird. Dahinter befindet sich die großzügige Eingangslobby mit Akzenten in italienischer Keramik und Edelstahl – neben der zeitlos schönen Klinkerfassade ein weiterer Hinweis auf die stilvolle und hochwertige Ausstattung des Hauses.
Nebenkosten: 4,20 € pro m²
Provisionspflichtig: nein
Letzte Modernisierung/ Sanierung: 2022
Qualität der Ausstattung: gehoben
Baujahr-Gebäude: 1994
Etagenanzahl: 7
Anzahl der Parkflächen: 8 x Tiefgarage, pro Stück 200 €
Fahrstuhl: ja
Lastenaufzug: ja
Keller: ja
Bodenbelag: nach Wunsch
Zustand: gepflegt
Endenergieverbrauch Wärme: 124 kWh/(m²*a)
Endenergieverbrauch Strom: 51 kWh/(m²*a)
Fußweg zu Öffentl. Verkehrsmitteln: 1 Minute(n)
Fahrzeit zum nächsten Hauptbahnhof: 5 Minute(n)
Fahrzeit zum nächsten Flughafen: 18 Minute(n)
Heizung: Zentralheizung
Befeuerungsart: Gas
Energieausweistyp: Verbrauchsausweis
Die Mietpreise sowie auch die Angaben der Nebenkostenvorauszahlungen verstehen sich monatlich pro Quadratmeter zuzüglich der gesetzlichen Mehrwertsteuer.
Irrtum und Zwischenvermietung bzw. -verkauf sind vorbehalten. Für die Richtigkeit und Vollständigkeit der Angaben übernehmen wir keine Haftung.
Bei weiteren Fragen oder zur Vereinbarung eines individuellen Besichtigungstermins können Sie uns gerne telefonisch unter 069 - 173 269 390 oder per E-Mail unter info@vvimmobilien.com kontaktieren.
Wir weisen auf unsere Allgemeinen Geschäftsbedingungen hin. Durch weitere Inanspruchnahme unserer Leistungen erklären Sie die Kenntnis und Ihr Einverständnis.
Das könnte Ihnen auch gefallen
Repräsentative Büroflächen in Schwalbach
Moderne Büroflächen in zentraler Citylage
Modern und Nachhaltig - Bürostadt Niederrad

V&V Immobilien GmbH
Herr Dean Vukovic
Lange Strasse 59
60311 Frankfurt am Main
Telefon: +49 69 173 269 390
Mobil: +49 172 66 99 799
Fax: +49 69 173 269 399


















