Frankfurt am Main:
Plug&Play - Hochwertig ausgebaute Untermietfläche - Laufzeit ab 3 Jahre
Objekt-Nr.: 2631

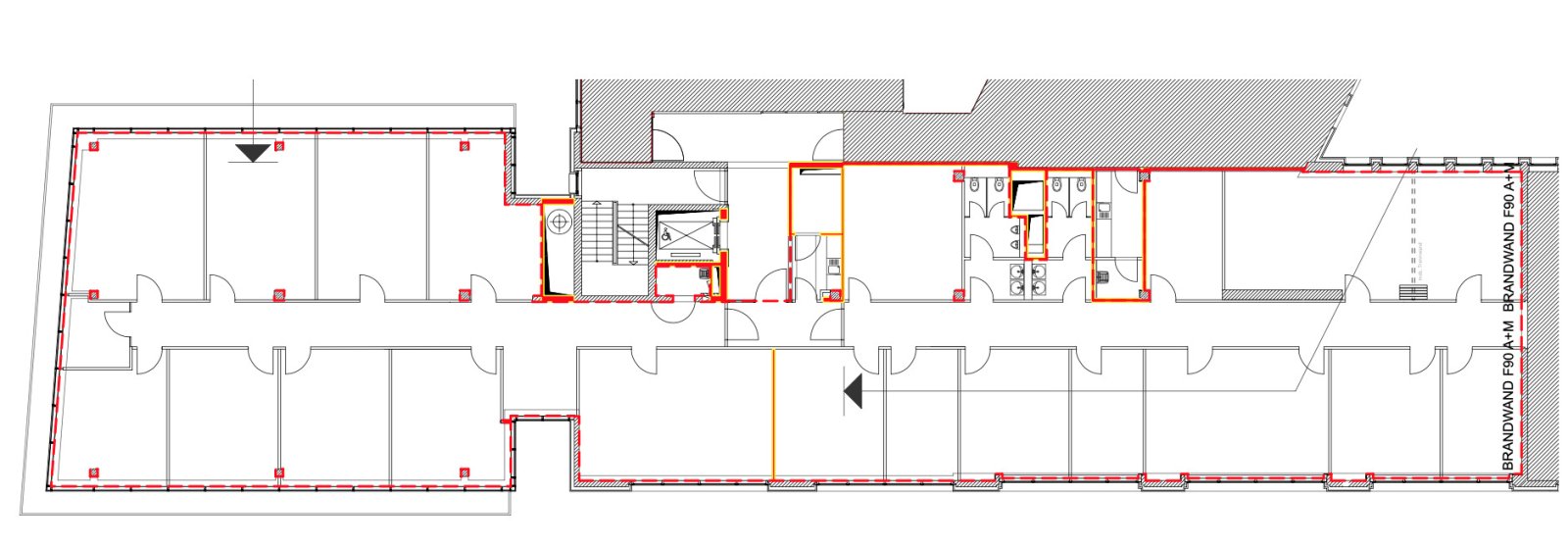
Ausbaubeispiel

Ausbaubeispiel

Ausbaubeispiel

Foyer

Ausbaubeispiel

Sanitäreinheiten

Außenansicht

5.Obergeschoss








Mietpreis zzgl. NK:
33,60 € pro m²
Büro-/Praxisfläche ca.:
484 m²
Nebenkosten: 6,20 € pro m²
Provisionspflichtig: nein
Letzte Modernisierung/ Sanierung: 2023
Qualität der Ausstattung: gehoben
Baujahr-Gebäude: 1974
Etage: 5
Etagenanzahl: 30
Anzahl der Parkflächen: 75 x Tiefgarage, pro Stück 320 €
Küche: Einbauküche
Denkmalschutzobjekt: ja
Fahrstuhl: ja
Lastenaufzug: ja
Keller: ja
Klimaanlage: ja
Barrierefrei: ja
DV-Verkabelung vorhanden: ja
Bodenbelag: nach Wunsch
Zustand: Erstbezug nach Sanierung
Fußweg zu Öffentl. Verkehrsmitteln: 1 Minute(n)
Fahrzeit zum nächsten Hauptbahnhof: 4 Minute(n)
Fahrzeit zur nächsten BAB: 6 Minute(n)
Fahrzeit zum nächsten Flughafen: 18 Minute(n)
Die Mietpreise sowie auch die Angaben der Nebenkostenvorauszahlungen verstehen sich monatlich pro Quadratmeter zuzüglich der gesetzlichen Mehrwertsteuer. Irrtum und Zwischenvermietung bzw. -verkauf sind vorbehalten. Für die Richtigkeit und Vollständigkeit der Angaben übernehmen wir keine Haftung. Bei weiteren Fragen oder zur Vereinbarung eines individuellen Besichtigungstermins können Sie uns gerne telefonisch unter 069 - 173 269 390 oder per E-Mail unter info@vvimmobilien.com kontaktieren.
Wir weisen auf unsere Allgemeinen Geschäftsbedingungen hin. Durch weitere Inanspruchnahme unserer Leistungen erklären Sie die Kenntnis und Ihr Einverständnis.
Das könnte Ihnen auch gefallen
Skylight - Ihr neuer Firmensitz im Herzen der City
Hochwertige Büro- und-Praxisflächen in zentraler Lage
Moderne Büroflächen in Raunheim

V&V Immobilien GmbH
Herr Dean Vukovic
Lange Strasse 59
60311 Frankfurt am Main
Telefon: +49 69 173 269 390
Mobil: +49 172 66 99 799
Fax: +49 69 173 269 399

















