Darmstadt:
Lagerfläche mit ebenerdiger Andienung
Objekt-Nr.: 2684

Lagerfläche

Lager

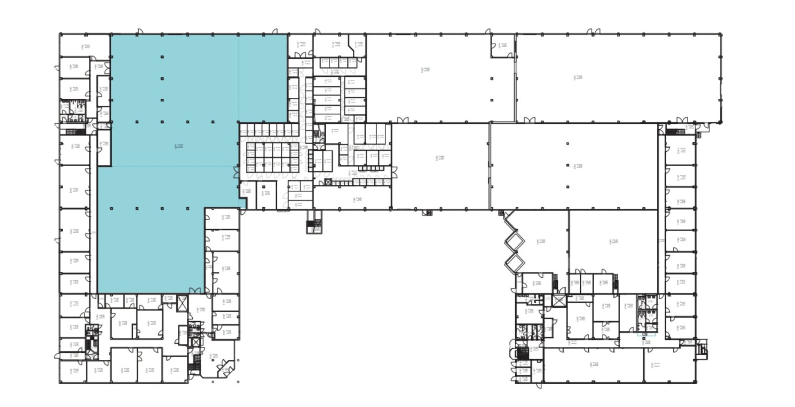
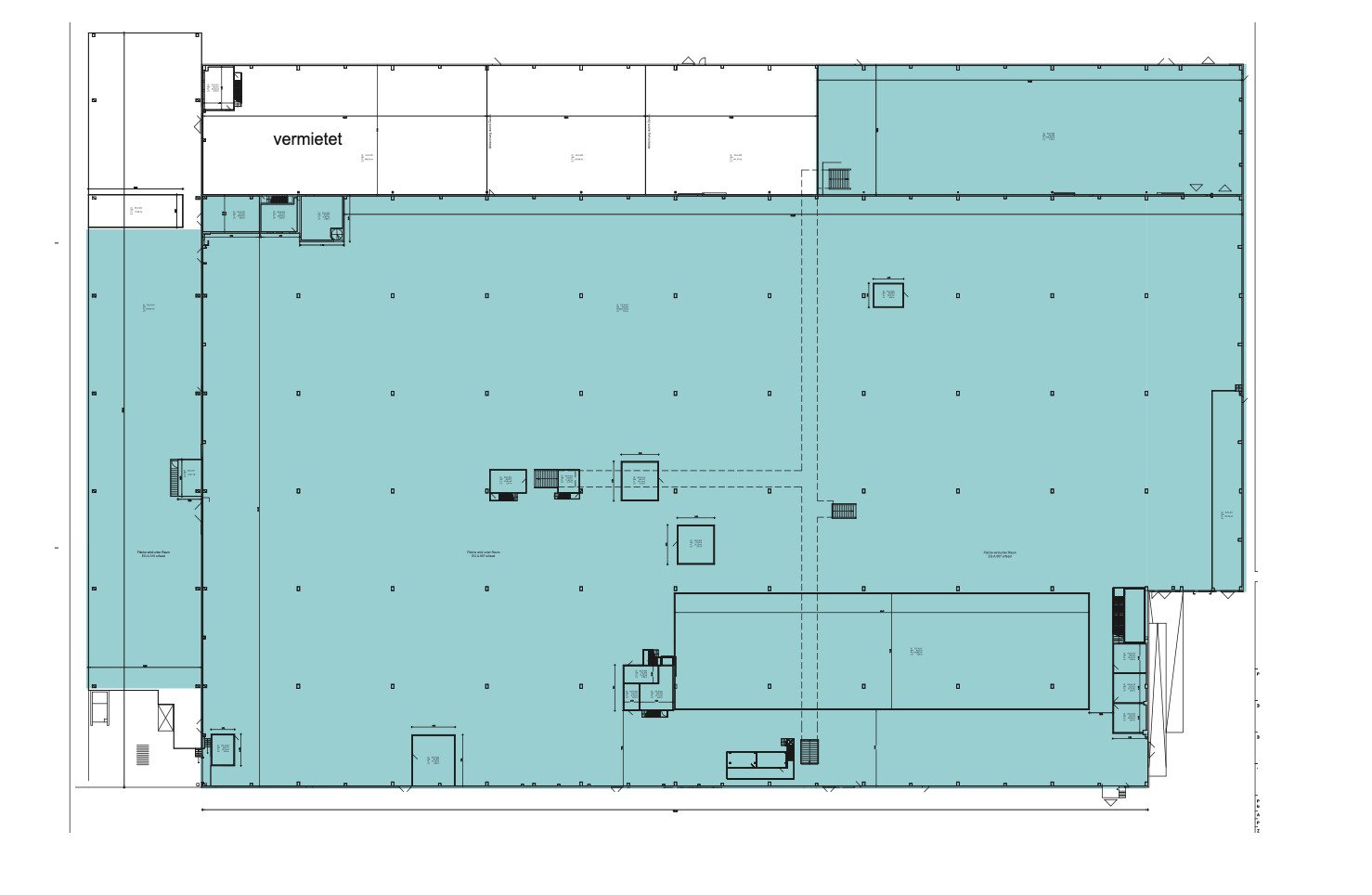
Grundriss



Mietpreis zzgl. NK:
6 € pro m²
Gesamtfläche ca.:
2.084 m²
Lager-/ Produktionsfläche ca.:
2.084 m²
Die ebenerdig gelegene Lagerfläche im Erdgeschoss umfasst rund 2.084 m². Sie verfügt über eine lichte Höhe von ca. 6,50 m (UKB) sowie eine Bodentraglast von 1,5 t/m². Die Andienung erfolgt bequem über ein ebenerdiges Tor. Zusätzlich stehen Tiefgaragenstellplätze zur Anmietung bereit.
Dank der unmittelbaren Anbindung an die Autobahnen A67 und A5 ist das Objekt hervorragend in das überregionale Straßennetz eingebunden. Die Mainmetropole Frankfurt, der internationale Flughafen, ebenso wie die Städte Mainz, Wiesbaden, Mannheim und Heidelberg sind in kurzer Zeit erreichbar.
Das Gebäude liegt an zwei zentralen Erschließungsachsen im Industriegebiet Nord/West und bietet zudem eine sehr gute Anbindung an den Darmstädter Hauptbahnhof und die Innenstadt. Auch die nahegelegenen Einkaufszentren in Weiterstadt sind schnell zu erreichen.
Qualität der Ausstattung: normal
Hallen-/Geschosshöhe: 6,50 Meter
Bodenbelastung: 1.500 Kg/m²
Bodenbelag: Beton
Zustand: gepflegt
Fußweg zu Öffentl. Verkehrsmitteln: 3 Minute(n)
Fahrzeit zum nächsten Hauptbahnhof: 7 Minute(n)
Fahrzeit zur nächsten BAB: 5 Minute(n)
Fahrzeit zum nächsten Flughafen: 18 Minute(n)
Die Mietpreise sowie auch die Angaben der Nebenkostenvorauszahlungen verstehen sich monatlich pro Quadratmeter zuzüglich der gesetzlichen Mehrwertsteuer.
Irrtum und Zwischenvermietung bzw. -verkauf sind vorbehalten. Für die Richtigkeit und Vollständigkeit der Angaben übernehmen wir keine Haftung.
Bei weiteren Fragen oder zur Vereinbarung eines individuellen Besichtigungstermins können Sie uns gerne telefonisch unter 069 - 173 269 390 oder per E-Mail unter info@vvimmobilien.com kontaktieren.
Wir weisen auf unsere Allgemeinen Geschäftsbedingungen hin. Durch weitere Inanspruchnahme unserer Leistungen erklären Sie die Kenntnis und Ihr Einverständnis.
Das könnte Ihnen auch gefallen
Logistikhallen mit ebenerdiger Andienung
Hallenflächen mit Rampenandienung

V&V Immobilien GmbH
Herr Dean Vukovic
Lange Strasse 59
60311 Frankfurt am Main
Telefon: +49 69 173 269 390
Mobil: +49 172 66 99 799
Fax: +49 69 173 269 399











