Frankfurt am Main:
Hochwertig ausgebaute Flächen im Westend - Kurzfristig verfügbar
Objekt-Nr.: 2689

Ausbaubeispiel Büro

Ausbaubeispiel Teambüro

Foyer

Dachterrasse

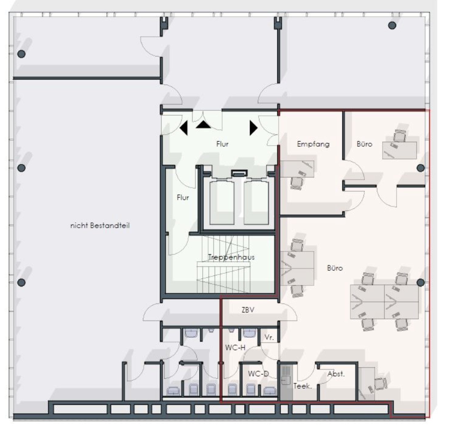
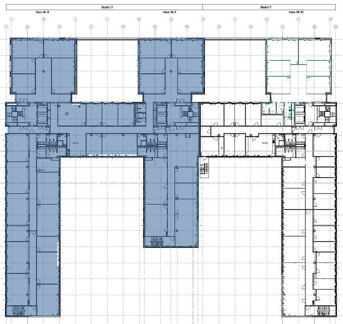
2.Obergeschoss

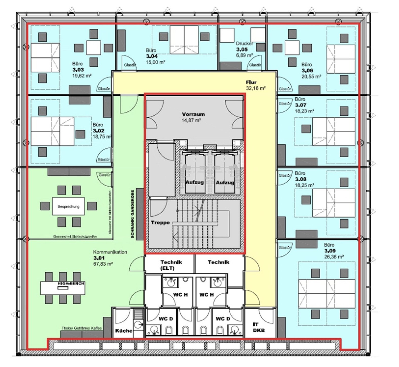
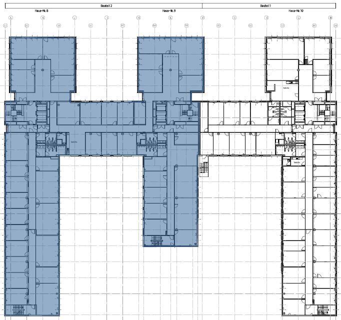
3.Obergeschoss

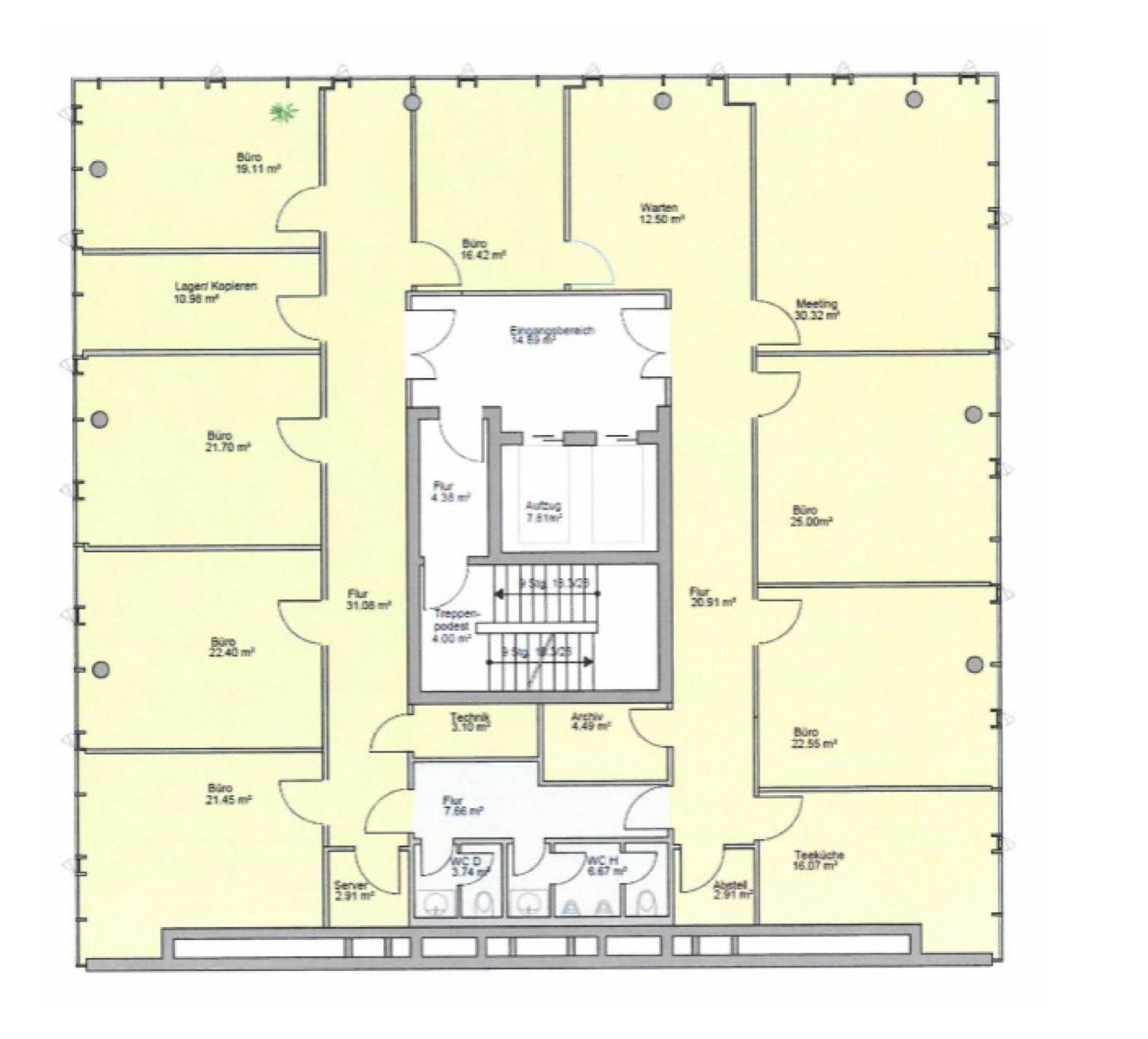
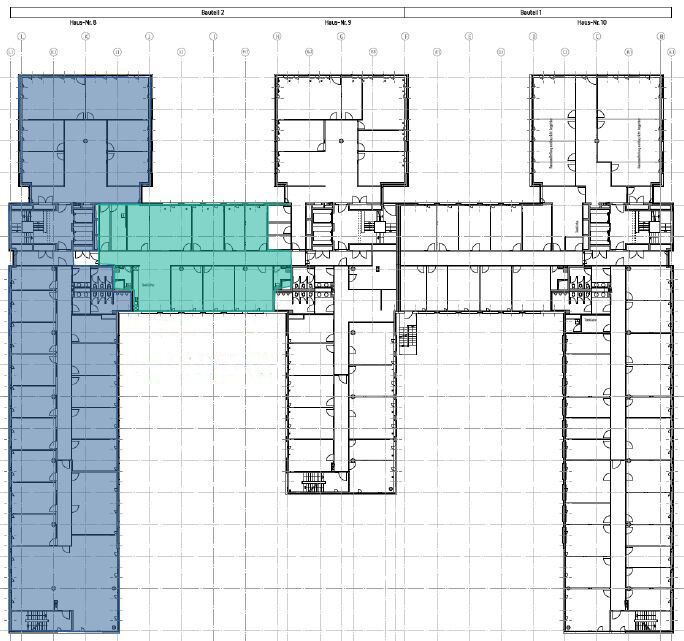
4.Obergeschoss







Mietpreis zzgl. NK:
28,50 € pro m²
Büro-/Praxisfläche ca.:
3.874 m²
Nebenkosten: 4,50 € pro m²
Provisionspflichtig: nein
Qualität der Ausstattung: gehoben
Anzahl der Parkflächen: 26 x Tiefgarage, pro Stück 180 €
Küche: Einbauküche
Klimaanlage: ja
Barrierefrei: ja
DV-Verkabelung vorhanden: ja
Bodenbelag: Teppichboden
Fußweg zu Öffentl. Verkehrsmitteln: 2 Minute(n)
Fahrzeit zum nächsten Hauptbahnhof: 7 Minute(n)
Fahrzeit zur nächsten BAB: 5 Minute(n)
Fahrzeit zum nächsten Flughafen: 15 Minute(n)
Die Mietpreise sowie auch die Angaben der Nebenkostenvorauszahlungen verstehen sich monatlich pro Quadratmeter zuzüglich der gesetzlichen Mehrwertsteuer. Irrtum und Zwischenvermietung bzw. -verkauf sind vorbehalten. Für die Richtigkeit und Vollständigkeit der Angaben übernehmen wir keine Haftung. Bei weiteren Fragen oder zur Vereinbarung eines individuellen Besichtigungstermins können Sie uns gerne telefonisch unter 069 - 173 269 390 oder per E-Mail unter info@vvimmobilien.com kontaktieren.
Wir weisen auf unsere Allgemeinen Geschäftsbedingungen hin. Durch weitere Inanspruchnahme unserer Leistungen erklären Sie die Kenntnis und Ihr Einverständnis.
Das könnte Ihnen auch gefallen
Exklusive Bürofläche im Bankenviertel
Flexible Büroflächen mit Erweiterungspotential
Modernes Bürogebäude im Helfmann Park Eschborn

V&V Immobilien GmbH
Herr Dean Vukovic
Lange Strasse 59
60311 Frankfurt am Main
Telefon: +49 69 173 269 390
Mobil: +49 172 66 99 799
Fax: +49 69 173 269 399




























