Mainz:
Top-Gewerbefläche am Mainzer Hbf – 435 m² für Büro, Retail oder Gastronomie
Objekt-Nr.: 2734

Innenansicht

Aufzugsvorraum

Innenansicht

Außenansicht

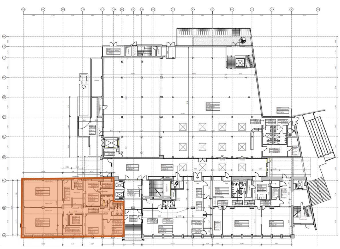
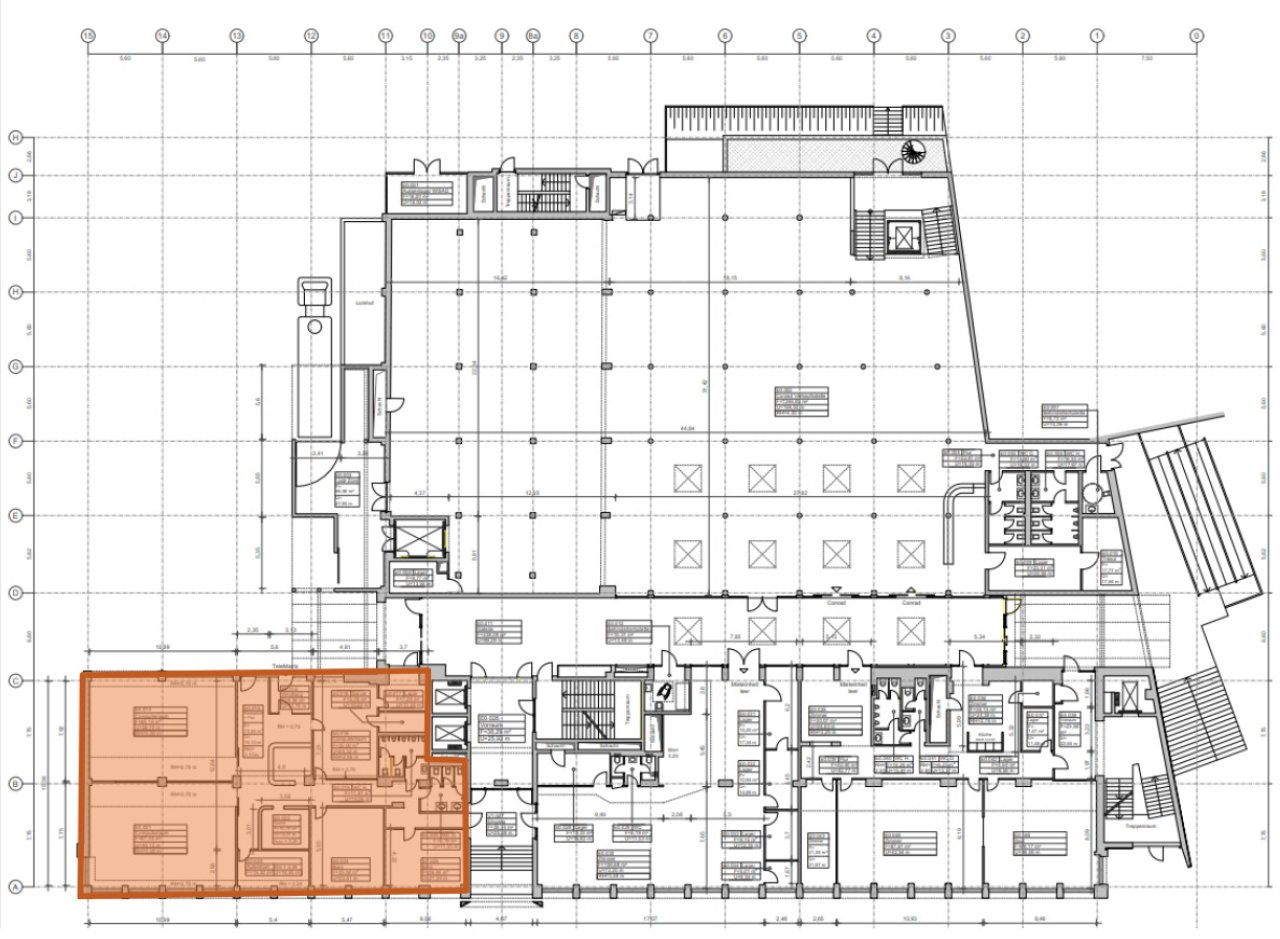
Grundriss Erdgeschoss





Mietpreis zzgl. NK:
13,50 € pro m²
Gesamtfläche ca.:
435 m²
Verkaufsfläche ca.:
435 m²
In prominenter Lage direkt am Mainzer Hauptbahnhof steht im Objekt Station West eine ca. 435 m² große Gewerbefläche im Erdgeschoss zur Vermietung.
Die Fläche befindet sich in einem veredelten Rohbau und bietet damit maximale Flexibilität für individuelle Ausbau- und Nutzungskonzepte.
Die Einheit eignet sich ideal für Büro-, Einzelhandels- oder gastronomische Nutzungen und überzeugt durch ihre gute Sichtbarkeit, großzügige Grundrissstruktur sowie eine repräsentative Adressbildung.
Die Liegenschaft befindet sich in absoluter Innenstadtlage von Mainz, unmittelbar am Hauptbahnhof (fußläufig ca. 2 Minuten). Die Binger Straße ist eine der zentralen Verkehrsachsen der Stadt und garantiert sowohl eine hohe Passantenfrequenz als auch eine exzellente verkehrliche Anbindung.
Der Standort profitiert von:
- direktem Anschluss an den ÖPNV (Bahn, Bus, Straßenbahn),
- schneller Erreichbarkeit der Autobahn A60 (ca. 10 Minuten),
- einem urbanen Umfeld aus Universität, Klinik, Büro- und Wohnnutzungen,
- vielfältiger Gastronomie und Nahversorgung in unmittelbarer Umgebung.
Damit bietet die Lage ideale Voraussetzungen für nutzerorientierte Konzepte mit hoher Sichtbarkeit und nachhaltiger Frequenz.
Nebenkosten: 3 € pro m²
Provisionspflichtig: nein
Zulieferung: von vorn
Bodenbelag: nach Wunsch
Zustand: Erstbezug
Endenergieverbrauch Wärme: 134 kWh/(m²*a)
Endenergieverbrauch Strom: 44 kWh/(m²*a)
Fußweg zu Öffentl. Verkehrsmitteln: 1 Minute(n)
Fahrzeit zum nächsten Hauptbahnhof: 1 Minute(n)
Fahrzeit zur nächsten BAB: 8 Minute(n)
Energieausweistyp: Verbrauchsausweis
Die Mietpreise sowie auch die Angaben der Nebenkostenvorauszahlungen verstehen sich monatlich pro Quadratmeter zuzüglich der gesetzlichen Mehrwertsteuer.
Irrtum und Zwischenvermietung bzw. -verkauf sind vorbehalten. Für die Richtigkeit und Vollständigkeit der Angaben übernehmen wir keine Haftung.
Bei weiteren Fragen oder zur Vereinbarung eines individuellen Besichtigungstermins können Sie uns gerne telefonisch unter 069 - 173 269 390 oder per E-Mail unter info@vvimmobilien.com kontaktieren.
Wir weisen auf unsere Allgemeinen Geschäftsbedingungen hin. Durch weitere Inanspruchnahme unserer Leistungen erklären Sie die Kenntnis und Ihr Einverständnis.
Das könnte Ihnen auch gefallen
Moderne Schulungs- und Gewerbeflächen im KOMM Center
Moderne Ladenflächen direkt am Kaiserlei

V&V Immobilien GmbH
Herr Dean Vukovic
Lange Strasse 59
60311 Frankfurt am Main
Telefon: +49 69 173 269 390
Mobil: +49 172 66 99 799
Fax: +49 69 173 269 399

















