Frankfurt am Main:
Bürofläche im Herzen des Lyoner Quartiers
Objekt-Nr.: 2749

Außenansicht

Büro

Foyer

Open Space

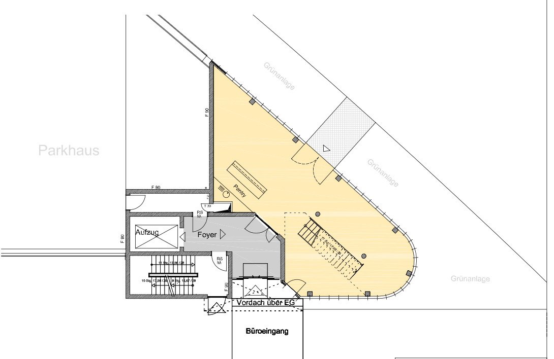
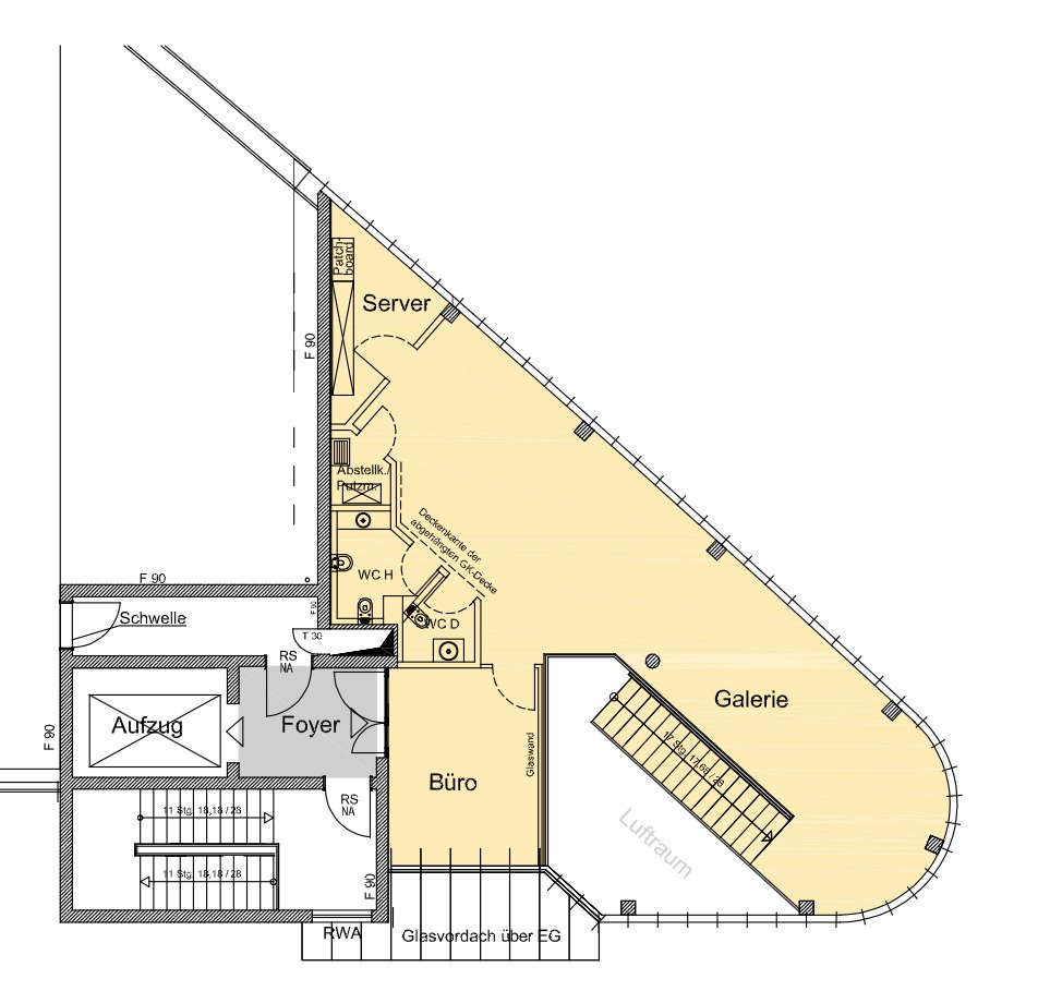
1.Obergeschoss





Mietpreis zzgl. NK:
13 € pro m²
Büro-/Praxisfläche ca.:
482 m²
Im fünfgeschossigen Bürogebäude steht im ersten Obergeschoss eine vollständig modernisierte Einheit von rund 310 m² zur Anmietung bereit. Großzügige Fensterfronten mit doppeltem Sonnenschutz – sowohl innen- als auch außenliegend – garantieren ein gleichmäßig helles, blendfreies Arbeitsklima das gesamte Jahr.
Das durchdachte Raumkonzept vereint einen weitläufigen Open-Space-Bereich mit zwei abgetrennten Einzelbüros sowie zwei separat nutzbaren Besprechungsräumen. Hochwertiger Parkettboden und die sorgfältige Kernsanierung verleihen der Fläche ein professionelles, einladendes Ambiente.
Ergänzend zur Haupteinheit steht eine zusätzliche Bürofläche von 172 m² im Erdgeschoss zur Verfügung. Diese Einheit ist noch nicht renoviert und bietet damit Mietern die Möglichkeit, den Ausbau nach eigenen Vorstellungen zu gestalten. Eine kombinierte Anmietung beider Flächen ist auf Anfrage möglich.
Nebenkosten: 5 € pro m²
Provisionspflichtig: nein
Baujahr-Gebäude: 1975
Etagenanzahl: 5
Anzahl der Parkflächen: 5 x Tiefgarage, pro Stück 100 €
Küche: Einbauküche
Fahrstuhl: ja
Barrierefrei: ja
Bodenbelag: Parkett
Zustand: vollständig renoviert
Endenergieverbrauch Wärme: 72,50 kWh/(m²*a)
Endenergieverbrauch Strom: 24,50 kWh/(m²*a)
Fußweg zu Öffentl. Verkehrsmitteln: 3 Minute(n)
Fahrzeit zum nächsten Hauptbahnhof: 6 Minute(n)
Fahrzeit zur nächsten BAB: 5 Minute(n)
Fahrzeit zum nächsten Flughafen: 11 Minute(n)
Heizung: Fernwärme
Befeuerungsart: Fernwärme
Energieausweistyp: Verbrauchsausweis
Die Mietpreise sowie auch die Angaben der Nebenkostenvorauszahlungen verstehen sich monatlich pro Quadratmeter zuzüglich der gesetzlichen Mehrwertsteuer.
Irrtum und Zwischenvermietung bzw. -verkauf sind vorbehalten. Für die Richtigkeit und Vollständigkeit der Angaben übernehmen wir keine Haftung.
Bei weiteren Fragen oder zur Vereinbarung eines individuellen Besichtigungstermins können Sie uns gerne telefonisch unter 069 - 173 269 390 oder per E-Mail unter info@vvimmobilien.com kontaktieren.
Wir weisen auf unsere Allgemeinen Geschäftsbedingungen hin. Durch weitere Inanspruchnahme unserer Leistungen erklären Sie die Kenntnis und Ihr Einverständnis.
Das könnte Ihnen auch gefallen
Modernes Bürogebäude im Helfmann Park Eschborn
Moderne Büroflächen im Gewerbegebiet Bad Homburg
Loftfläche in ehemaligem Industriekomplex

V&V Immobilien GmbH
Herr Dean Vukovic
Lange Strasse 59
60311 Frankfurt am Main
Telefon: +49 69 173 269 390
Mobil: +49 172 66 99 799
Fax: +49 69 173 269 399





























