Frankfurt am Main:
Extravagante Loftflächen im U.F.O.
Objekt-Nr.: 386

Außenansicht

Eingang

Terrassen

Dachterrasse

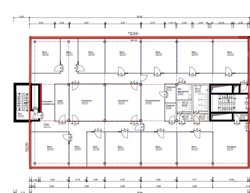
Beispielausbau

Innenansicht

Innenansicht

2.Obergeschoss

3.Obergeschoss

1.Obergeschoss










Mietpreis zzgl. NK:
14 € pro m²
Büro-/Praxisfläche ca.:
1.335 m²
Das U.F.O. bietet multiple Nutzungsmöglichkeiten und eignet sich besonders für offene Raumstrukturen.
Die Etagen bestehen im Grunde aus kleinen Hallen.
Durch das Konstruktionsraster ist eine hohe Flexibilität in der Aufteilung und im Ausbau der Mieteinheiten gewährleistet. Ein umfassendes System von Schächten ermöglicht die Installation individueller, technischer Infrastruktur.
Die Besonderheit des U.F.O. besteht in der Einzigartigkeit des Konzepts – in der Verschmelzung von Bereichen der Arbeit und Freizeit.
DIe Sichtbetonfassade des U.F.O. ist in Leichtbetonbauweise ausgeführt; die Verglasung mit einer einheitlichen Fenstergröße von 5,45 Meter x 2,60 Meter wurde in Anlehnung an industrielle Vorbilder entworfen; die Fensterrahmen sind aus Stahl.
Nebenkosten: 2,50 € pro m²
Provisionspflichtig: nein
Letzte Modernisierung/ Sanierung: 2018
Qualität der Ausstattung: gehoben
Baujahr-Gebäude: 2003
Etagenanzahl: 6
Anzahl der Parkflächen: 23 x Tiefgarage, pro Stück 120 €
Küche: Einbauküche
Kantine/Cafeteria: ja
Fahrstuhl: ja
Lastenaufzug: ja
Keller: ja
Barrierefrei: ja
Seniorengerecht: ja
Bodenbelag: Beton
Zustand: neuwertig
Fußweg zu Öffentl. Verkehrsmitteln: 13 Minute(n)
Fahrzeit zum nächsten Hauptbahnhof: 23 Minute(n)
Fahrzeit zur nächsten BAB: 9 Minute(n)
Fahrzeit zum nächsten Flughafen: 18 Minute(n)
Heizung: Zentralheizung
Befeuerungsart: Fernwärme
Energieausweistyp: Bedarfsausweis
Die Mietpreise sowie auch die Angaben der Nebenkostenvorauszahlungen verstehen sich monatlich pro Quadratmeter zuzüglich der gesetzlichen Mehrwertsteuer. Irrtum und Zwischenvermietung bzw. -verkauf sind vorbehalten. Für die Richtigkeit und Vollständigkeit der Angaben übernehmen wir keine Haftung. Bei weiteren Fragen oder zur Vereinbarung eines individuellen Besichtigungstermins können Sie uns gerne telefonisch unter 069 - 173 269 390 oder per E-Mail unter info@vvimmobilien.com kontaktieren.
Wir weisen auf unsere Allgemeinen Geschäftsbedingungen hin. Durch weitere Inanspruchnahme unserer Leistungen erklären Sie die Kenntnis und Ihr Einverständnis.
Das könnte Ihnen auch gefallen
Moderne Büroflächen am Campus Eschborn
Zentrale Büroflächen mit Weitblick

V&V Immobilien GmbH
Herr Dean Vukovic
Lange Strasse 59
60311 Frankfurt am Main
Telefon: +49 69 173 269 390
Mobil: +49 172 66 99 799
Fax: +49 69 173 269 399





























