Schwalbach am Taunus:
Repräsentative Büroflächen in Schwalbach
Property ID: 1745

Außenansicht

Außenansicht

Aufzüge

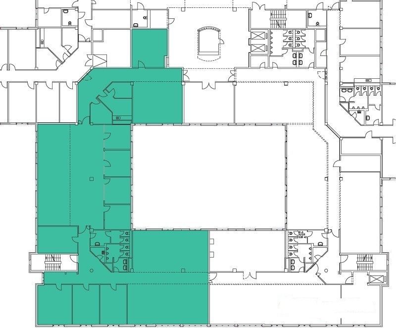
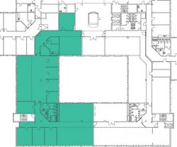
1.Obergeschoss

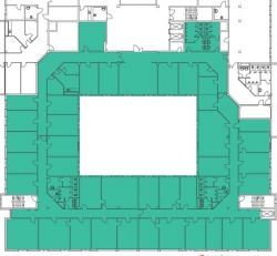
2.Obergeschoss





Rental price plus utilities:
9,75 € per sq.m.
Office/practice area:
18.300 sq. m.
In dem modernen Bürokomplex wurde eine hervorragende Verbindung zwischen Funktionalität und moderner, repräsentativer Architektur geschaffen.
Das zweigeschossige Foyer mit besetztem Empfang und Begrünung ist die erste Anlaufstelle für Ihre Kunden. Hier gelangt man dann über die Aufzüge zu den Büroflächen.
Additional expenses: 3 € per sq.m.
Subject to commission: no
Quality of fittings: Superior
Year of construction: 1997
Number of floors: 4
Number of parking spaces: 400 x Underground parking , per item 52 €
Lift: yes
Air condition: yes
DV cabling available: yes
Floor covering: Antistatic carpet
Condition: Well kept
Final energy consumption for heat: 66 kWh/(m²*a)
Final energy consumption for electricity: 24 kWh/(m²*a)
Walking distance to public transport: 10 Minute(s)
Drive to nearest rail station: 5 Minute(s)
Drive to nearest motorway: 6 Minute(s)
Drive to nearest airport: 30 Minute(s)
Type of heating system: District heating
Type of energy certificate: consumption certificate
Die Mietpreise sowie auch die Angaben der Nebenkostenvorauszahlungen verstehen sich monatlich pro Quadratmeter zuzüglich der gesetzlichen Mehrwertsteuer.
Die Vermietung erfolgt für den Mieter provisionsfrei.
Irrtum und Zwischenvermietung bzw. -verkauf sind vorbehalten. Für die Richtigkeit und Vollständigkeit der Angaben übernehmen wir keine Haftung.
Bei weiteren Fragen oder zur Vereinbarung eines individuellen Besichtigungstermins können Sie uns gerne telefonisch unter 069 - 173 269 390 oder per E-Mail unter info@vvimmobilien.com kontaktieren.
Wir weisen auf unsere Allgemeinen Geschäftsbedingungen hin. Durch weitere Inanspruchnahme unserer Leistungen erklären Sie die Kenntnis und Ihr Einverständnis.
You might also like
Ihr neues Büro im Herzen Wiesbadens
Modernisiertes Bürogebäude mit hoher Visibilität
Funktionale Bürofläche in Frankfurt-Hausen

V&V Immobilien GmbH
Mr. Dean Vukovic
Lange Strasse 59
60311 Frankfurt am Main
Phone: +49 69 173 269 390
Mobile phone: +49 172 66 99 799
Fax: +49 69 173 269 399


























