Schwalbach am Taunus:
Repräsentative Büroflächen in Schwalbach
Objekt-Nr.: 1745

Außenansicht

Außenansicht

Aufzüge

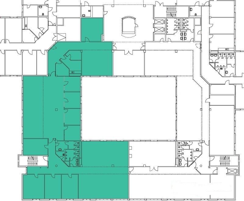
1.Obergeschoss

2.Obergeschoss





Mietpreis zzgl. NK:
9,75 € pro m²
Büro-/Praxisfläche ca.:
18.300 m²
In dem modernen Bürokomplex wurde eine hervorragende Verbindung zwischen Funktionalität und moderner, repräsentativer Architektur geschaffen.
Das zweigeschossige Foyer mit besetztem Empfang und Begrünung ist die erste Anlaufstelle für Ihre Kunden. Hier gelangt man dann über die Aufzüge zu den Büroflächen.
Nebenkosten: 3 € pro m²
Provisionspflichtig: nein
Qualität der Ausstattung: gehoben
Baujahr-Gebäude: 1997
Etagenanzahl: 4
Anzahl der Parkflächen: 400 x Tiefgarage, pro Stück 52 €
Fahrstuhl: ja
Klimaanlage: ja
DV-Verkabelung vorhanden: ja
Bodenbelag: antistatischer Teppichboden
Zustand: gepflegt
Endenergieverbrauch Wärme: 66 kWh/(m²*a)
Endenergieverbrauch Strom: 24 kWh/(m²*a)
Fußweg zu Öffentl. Verkehrsmitteln: 10 Minute(n)
Fahrzeit zum nächsten Hauptbahnhof: 5 Minute(n)
Fahrzeit zur nächsten BAB: 6 Minute(n)
Fahrzeit zum nächsten Flughafen: 30 Minute(n)
Befeuerungsart: Fernwärme
Energieausweistyp: Verbrauchsausweis
Die Mietpreise sowie auch die Angaben der Nebenkostenvorauszahlungen verstehen sich monatlich pro Quadratmeter zuzüglich der gesetzlichen Mehrwertsteuer.
Die Vermietung erfolgt für den Mieter provisionsfrei.
Irrtum und Zwischenvermietung bzw. -verkauf sind vorbehalten. Für die Richtigkeit und Vollständigkeit der Angaben übernehmen wir keine Haftung.
Bei weiteren Fragen oder zur Vereinbarung eines individuellen Besichtigungstermins können Sie uns gerne telefonisch unter 069 - 173 269 390 oder per E-Mail unter info@vvimmobilien.com kontaktieren.
Wir weisen auf unsere Allgemeinen Geschäftsbedingungen hin. Durch weitere Inanspruchnahme unserer Leistungen erklären Sie die Kenntnis und Ihr Einverständnis.
Das könnte Ihnen auch gefallen
Moderne Bürofläche in verkehrsgünstiger Lage
Moderne Büroflächen am Campus Eschborn
Repräsentative Büroflächen im Westend-Süd – flexibel ab 409 m²

V&V Immobilien GmbH
Herr Dean Vukovic
Lange Strasse 59
60311 Frankfurt am Main
Telefon: +49 69 173 269 390
Mobil: +49 172 66 99 799
Fax: +49 69 173 269 399




















