Frankfurt am Main:
Individuell gestaltbare Büroflächen im Bahnhofsviertel
Property ID: 1977

Innenhof

Vorderansicht

Außenstellplätze

Außenansicht

Zufahrt Tiefgarage

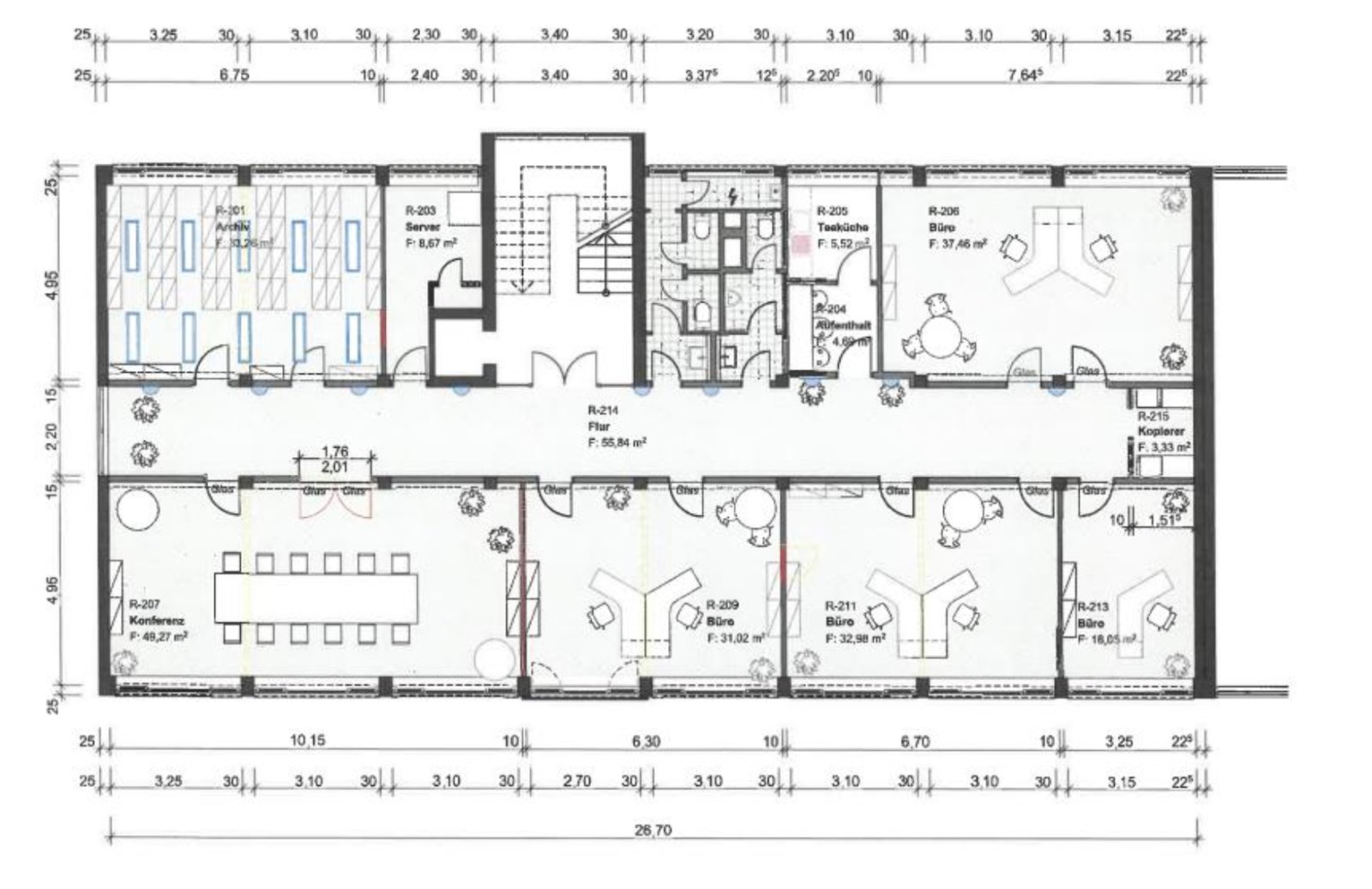
1.Obergeschoss






Rental price plus utilities:
18 € per sq.m.
Office/practice area:
475 sq. m.
Das historische Gebäudeensemble bietet in zentraler Innenstadtlage Frankfurts moderne und individuell gestaltbare Büroflächen. Geprägt von der roten, klassischen Klinkerfassade verfügt der Komplex über vier Vollgeschosse und insgesamt 10.200 m² Mietfläche. Eine Tiefgarage mit zusätzlichen Archivflächen verbindet das frei stehende ehemalige Postgebäude mit den dazugehörigen, U-förmig angeordneten weiteren drei Gebäudeteilen.
Der barrierefreie Zutritt zum Objekt erfolgt über das helle, repräsentative Foyer, welches über einen hochwertigen Natursteinbelag verfügt. Weiterführend können die Büroflächen in den oberen Etagen über insgesamt drei Personenaufzüge bequem und schnell erschlossen werden. Für den einfachen Transport schwerer Materialien steht zusätzlich ein Lastenaufzug bereit.
Die Büroräume können anhand der Mieterwünsche flexibel aufgeteilt und gestaltet werden. Sowohl Einzel-, Gruppen- als auch Großraumbüros sind umsetzbar. Unabhängig von der Raumaufteilung stehen den Mietern u. a. voll ausgestattete Teeküchen, Personenaufzüge sowie ein außen liegender Sonnenschutz zur Verfügung.
Die zentrale, innerstädtische Lage des Posthofs Frankfurt bringt zahlreiche Vorteile mit sich. Einer der Wichtigsten ist die schnelle Erreichbarkeit des Gebäudes durch Mieter, deren Kunden und Gäste – sowohl über den Individualverkehr als auch mittels ÖPNV.…
In weniger als 10 Minuten gelangt man über verschiedene Wege auf die Autobahn A648. Eine schnelle Erreichbarkeit des Frankfurter Umlandes ist somit gegeben. Nur rund 20 Minuten Fahrzeit werden bis zum Flughafen Frankfurt benötigt. Zusätzlich bieten die zahlreichen Stellplätze im Innenhof und der hauseigenen Tiefgarage eine bequeme Parkmöglichkeit direkt am Objekt.
Nur 200 Meter vom Posthof entfernt befindet sich der Hauptbahnhof mit seinen vielfältigen Anbindungen durch die Deutsche Bahn und den innerstädtischen ÖPNV.
Vom Posthof im aufstrebenden Bahnhofsviertel können die Wege in die City problemlos gemeistert werden. In den Mittagspausen ergeben sich nach wenigen Minuten Fußweg vielfältige Alternativen der Verpflegung. Auch für die Gestaltung der freien Zeit nach dem Feierabend stehen in unmittelbarer Nähe zahllose Möglichkeiten zur Verfügung – vom Fitnessstudio, über Shoppinggelegenheiten bis hin zum angesagten Szenerestaurant.
Additional expenses: 3,60 € per sq.m.
Subject to commission: no
Quality of fittings: Superior
Year of construction: 1888
Storey: 1
Number of floors: 4
Number of parking spaces: 6 x Underground parking , per item 130 €
Kitchen: Fitted kitchen
Lift: yes
Goods lift: yes
Basement: yes
Suitable for disabled people: yes
Floor covering: As desired
Condition: Renovated
Final energy consumption for heat: 131 kWh/(m²*a)
Final energy consumption for electricity: 64 kWh/(m²*a)
Walking distance to public transport: 2 Minute(s)
Drive to nearest rail station: 1 Minute(s)
Drive to nearest motorway: 6 Minute(s)
Drive to nearest airport: 16 Minute(s)
Type of heating system: Gas
Type of energy certificate: consumption certificate
Die Mietpreise sowie auch die Angaben der Nebenkostenvorauszahlungen verstehen sich monatlich pro Quadratmeter zuzüglich der gesetzlichen Mehrwertsteuer.
Irrtum und Zwischenvermietung bzw. -verkauf sind vorbehalten. Für die Richtigkeit und Vollständigkeit der Angaben übernehmen wir keine Haftung.
Bei weiteren Fragen oder zur Vereinbarung eines individuellen Besichtigungstermins können Sie uns gerne telefonisch unter 069 - 173 269 390 oder per E-Mail unter info@vvimmobilien.com kontaktieren.
Wir weisen auf unsere Allgemeinen Geschäftsbedingungen hin. Durch weitere Inanspruchnahme unserer Leistungen erklären Sie die Kenntnis und Ihr Einverständnis.
You might also like
Bürofläche direkt am Main
Exklusive Bürofläche am Fuße des Taunus
Ärzte- und Gesundheitshaus im Fresenius Park Bad Homburg

V&V Immobilien GmbH
Mr. Dean Vukovic
Lange Strasse 59
60311 Frankfurt am Main
Phone: +49 69 173 269 390
Mobile phone: +49 172 66 99 799
Fax: +49 69 173 269 399
















