Dreieich:
Modernes Bürofläche in idyllischer Lage - Große Dachterrasse
Property ID: 2619

Terrasse DG

Außenansicht

Terrasse DG

Küche DG

Glaselemente DG

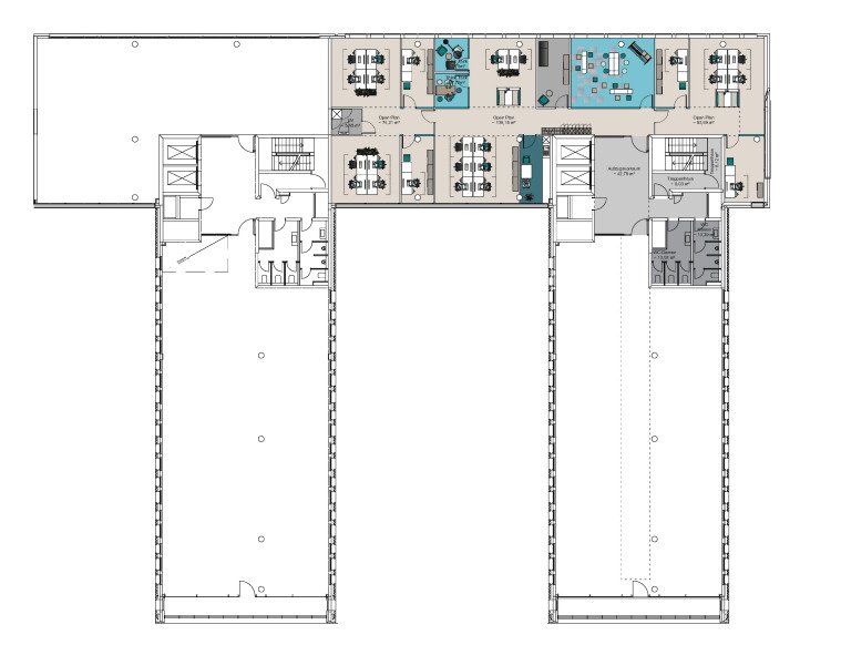
Gebäudeteil B 2.OG

Gebäudeteil A 2.OG







Rental price plus utilities:
11,90 € per sq.m.
Office/practice area:
1.125 sq. m.
Die Liegenschaft gliedert sich in zwei Bauabschnitte, welche 2003 gebaut wurden und verfügt über insgesamt ca. 10.160 m² Nutzfläche. An den zwei Gebäuden befinden sich Außenstellplätze; weitere Stellplätze sind auf dem Grundstück vorhanden.
Die Flächenstruktur der Büros ist flexibel, Mieterwünsche bei der Raumaufteilung können berücksichtigt werden. Das Objekt hat eine Eingangskontrolle im ersten Bauabschnitt, der Eingangsbereich ist großzügig und repräsentativ gestaltet.
Additional expenses: 3,25 € per sq.m.
Subject to commission: no
Quality of fittings: Superior
Year of construction: 2003
Storey: 2
Number of floors: 3
Number of parking spaces: 26 x Outside parking space
Kitchen: Fitted kitchen
Lift: yes
DV cabling available: yes
Floor covering: Carpet
Condition: Well kept
Final energy demand for heat: 70 kWh/(m²*a)
Final energy demand for electricity: 328 kWh/(m²*a)
Walking distance to public transport: 5 Minute(s)
Drive to nearest motorway: 10 Minute(s)
Type of heating system: Gas
Type of energy certificate: demand certificate
Die Mietpreise sowie auch die Angaben der Nebenkostenvorauszahlungen verstehen sich monatlich pro Quadratmeter zuzüglich der gesetzlichen Mehrwertsteuer.
Irrtum und Zwischenvermietung bzw. -verkauf sind vorbehalten. Für die Richtigkeit und Vollständigkeit der Angaben übernehmen wir keine Haftung.
Bei weiteren Fragen oder zur Vereinbarung eines individuellen Besichtigungstermins können Sie uns gerne telefonisch unter 069 - 173 269 390 oder per E-Mail unter info@vvimmobilien.com kontaktieren.
Wir weisen auf unsere Allgemeinen Geschäftsbedingungen hin. Durch weitere Inanspruchnahme unserer Leistungen erklären Sie die Kenntnis und Ihr Einverständnis.
You might also like
Büro- und Lagergebäude im Gewerbegebiet Schwalbach
Hochwertig ausgebaute Büroflächen in bester Westendlage
Ihr neues Büro direkt am Main

V&V Immobilien GmbH
Mr. Dean Vukovic
Lange Strasse 59
60311 Frankfurt am Main
Phone: +49 69 173 269 390
Mobile phone: +49 172 66 99 799
Fax: +49 69 173 269 399















