Frankfurt am Main:
Souterrain-Einheit mit exklusivem Zugang – ideal für Yoga, Therapie, Studio oder vergleichbare Nutzung
Property ID: 2740

Außenansicht

Ausbaubeispiel4

Außenansicht 2

Treppenhaus

Ausbaubeispiel

Ausbaubeispiel3

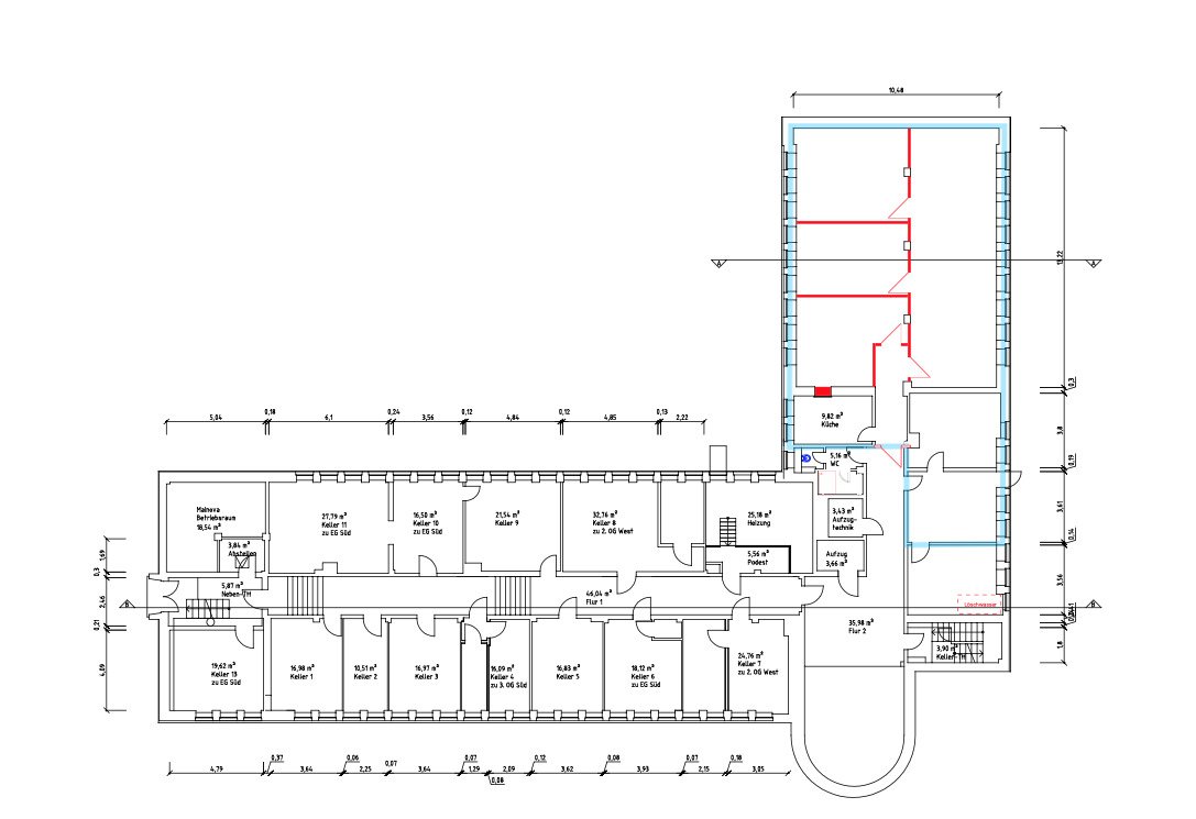
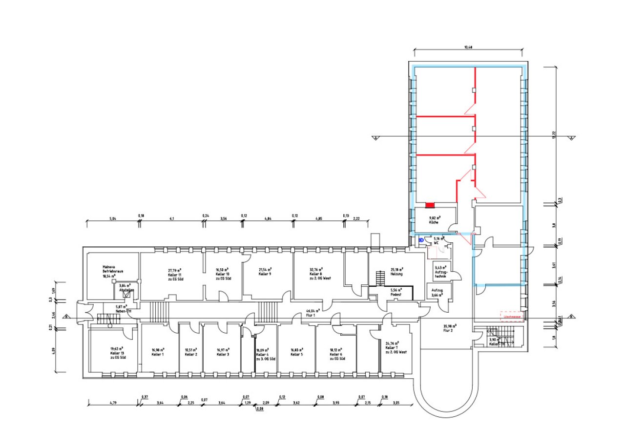
Grundriss UG







Rental price plus utilities:
19 € per sq.m.
Office/practice area:
203 sq. m.
In diesem architektonisch markanten Gebäude steht eine ca. 203 m² große Souterrain-Einheit mit eigenem, exklusivem Zugang über die Westendstraße zur Verfügung.
Diese Konstellation ist strategisch stark:
Ihre Kunden betreten die Fläche direkt von außen – ohne Durchgang durch klassische Bürobereiche. Das schafft Privatsphäre, Ruhe und eine eigenständige Markenpräsenz.
Die Fläche eignet sich ideal für:
- Yoga- & Pilates-Studios
- Physiotherapie- oder Osteopathiepraxen
- Personal-Training-Studios
- Coaching-, Atem- oder Therapiezentren
- Boutique-Wellness- oder Health-Konzepte
Der Ausbau erfolgt nach Mieteranforderung. Offenes Loft-Studio, Behandlungsräume, Umkleiden, Empfangsbereich – das Layout wird auf Ihr Geschäftsmodell zugeschnitten.
Die Senckenberganlage befindet sich im Frankfurter Westend – einer der etabliertesten und einkommensstärksten Stadtteile von Frankfurt am Main.
Ihr Vorteil:
- Direktes Umfeld aus Unternehmen, Kanzleien, Beratungen und gehobenem Wohnen
- Hohe Dichte an berufstätigen Entscheidern mit Gesundheits- und Lifestyle-Affinität
- Exzellente Erreichbarkeit für Ihre Kunden (Messe, Hauptbahnhof, Innenstadt in wenigen Minuten)
Für Betreiber bedeutet das:
✔ Laufkundschaft + Stammkundschaft aus dem direkten Quartier
✔ Zielgruppe mit Zahlungsbereitschaft für Premium-Konzepte
✔ Sehr gute Erreichbarkeit mit ÖPNV und PKW
✔ Standortimage, das Ihr Branding unterstützt
Year of construction: 1952
Number of parking spaces: 28 x Outside parking space
Floor covering: As desired
Condition: Well kept
Walking distance to public transport: 2 Minute(s)
Drive to nearest rail station: 8 Minute(s)
Drive to nearest motorway: 4 Minute(s)
Drive to nearest airport: 16 Minute(s)
Type of energy certificate: Energy pass is available for inspection
Die Mietpreise sowie auch die Angaben der Nebenkostenvorauszahlungen verstehen sich monatlich pro Quadratmeter zuzüglich der gesetzlichen Mehrwertsteuer.
Irrtum und Zwischenvermietung bzw. -verkauf sind vorbehalten. Für die Richtigkeit und Vollständigkeit der Angaben übernehmen wir keine Haftung.
Bei weiteren Fragen oder zur Vereinbarung eines individuellen Besichtigungstermins können Sie uns gerne telefonisch unter 069 - 173 269 390 oder per E-Mail unter info@vvimmobilien.com kontaktieren.
Wir weisen auf unsere Allgemeinen Geschäftsbedingungen hin. Durch weitere Inanspruchnahme unserer Leistungen erklären Sie die Kenntnis und Ihr Einverständnis.
You might also like
Modernisiertes Bürogebäude - Nachhaltig und effizient
Loftartige Flächen mit Terrasse
Moderne Bürofläche in verkehrsgünstiger Lage

V&V Immobilien GmbH
Mr. Dean Vukovic
Lange Strasse 59
60311 Frankfurt am Main
Phone: +49 69 173 269 390
Mobile phone: +49 172 66 99 799
Fax: +49 69 173 269 399























