Frankfurt am Main:
Souterrain-Einheit mit exklusivem Zugang – ideal für Yoga, Therapie, Studio oder vergleichbare Nutzung
Objekt-Nr.: 2740

Außenansicht

Ausbaubeispiel4

Außenansicht 2

Treppenhaus

Ausbaubeispiel

Ausbaubeispiel3

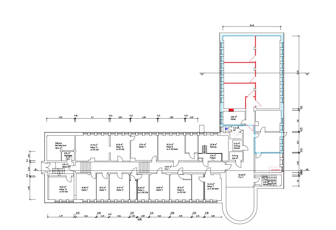
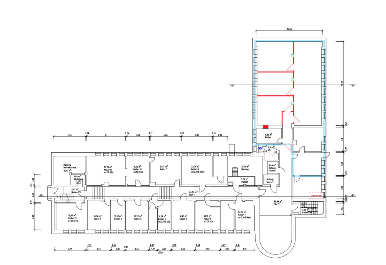
Grundriss UG







Mietpreis zzgl. NK:
19 € pro m²
Büro-/Praxisfläche ca.:
203 m²
In diesem architektonisch markanten Gebäude steht eine ca. 203 m² große Souterrain-Einheit mit eigenem, exklusivem Zugang über die Westendstraße zur Verfügung.
Diese Konstellation ist strategisch stark:
Ihre Kunden betreten die Fläche direkt von außen – ohne Durchgang durch klassische Bürobereiche. Das schafft Privatsphäre, Ruhe und eine eigenständige Markenpräsenz.
Die Fläche eignet sich ideal für:
- Yoga- & Pilates-Studios
- Physiotherapie- oder Osteopathiepraxen
- Personal-Training-Studios
- Coaching-, Atem- oder Therapiezentren
- Boutique-Wellness- oder Health-Konzepte
Der Ausbau erfolgt nach Mieteranforderung. Offenes Loft-Studio, Behandlungsräume, Umkleiden, Empfangsbereich – das Layout wird auf Ihr Geschäftsmodell zugeschnitten.
Die Senckenberganlage befindet sich im Frankfurter Westend – einer der etabliertesten und einkommensstärksten Stadtteile von Frankfurt am Main.
Ihr Vorteil:
- Direktes Umfeld aus Unternehmen, Kanzleien, Beratungen und gehobenem Wohnen
- Hohe Dichte an berufstätigen Entscheidern mit Gesundheits- und Lifestyle-Affinität
- Exzellente Erreichbarkeit für Ihre Kunden (Messe, Hauptbahnhof, Innenstadt in wenigen Minuten)
Für Betreiber bedeutet das:
✔ Laufkundschaft + Stammkundschaft aus dem direkten Quartier
✔ Zielgruppe mit Zahlungsbereitschaft für Premium-Konzepte
✔ Sehr gute Erreichbarkeit mit ÖPNV und PKW
✔ Standortimage, das Ihr Branding unterstützt
Baujahr-Gebäude: 1952
Anzahl der Parkflächen: 28 x Außenstellplatz
Bodenbelag: nach Wunsch
Zustand: gepflegt
Fußweg zu Öffentl. Verkehrsmitteln: 2 Minute(n)
Fahrzeit zum nächsten Hauptbahnhof: 8 Minute(n)
Fahrzeit zur nächsten BAB: 4 Minute(n)
Fahrzeit zum nächsten Flughafen: 16 Minute(n)
Energieausweistyp: Energieausweis liegt zur Besichtigung vor
Die Mietpreise sowie auch die Angaben der Nebenkostenvorauszahlungen verstehen sich monatlich pro Quadratmeter zuzüglich der gesetzlichen Mehrwertsteuer.
Irrtum und Zwischenvermietung bzw. -verkauf sind vorbehalten. Für die Richtigkeit und Vollständigkeit der Angaben übernehmen wir keine Haftung.
Bei weiteren Fragen oder zur Vereinbarung eines individuellen Besichtigungstermins können Sie uns gerne telefonisch unter 069 - 173 269 390 oder per E-Mail unter info@vvimmobilien.com kontaktieren.
Wir weisen auf unsere Allgemeinen Geschäftsbedingungen hin. Durch weitere Inanspruchnahme unserer Leistungen erklären Sie die Kenntnis und Ihr Einverständnis.
Das könnte Ihnen auch gefallen
Ideal für Großnutzer - Landmarkbuilding in Eschborn
Moderne Büroflächen im Monza Park

V&V Immobilien GmbH
Herr Dean Vukovic
Lange Strasse 59
60311 Frankfurt am Main
Telefon: +49 69 173 269 390
Mobil: +49 172 66 99 799
Fax: +49 69 173 269 399















