Eschborn:
Moderne Büroflächen am Campus Eschborn
Objekt-Nr.: 2273

Open Space

Open Space

Empfangsbereich

Meetingraum

Teeküche

Sanitärbereich

Aufzüge

Außenansicht

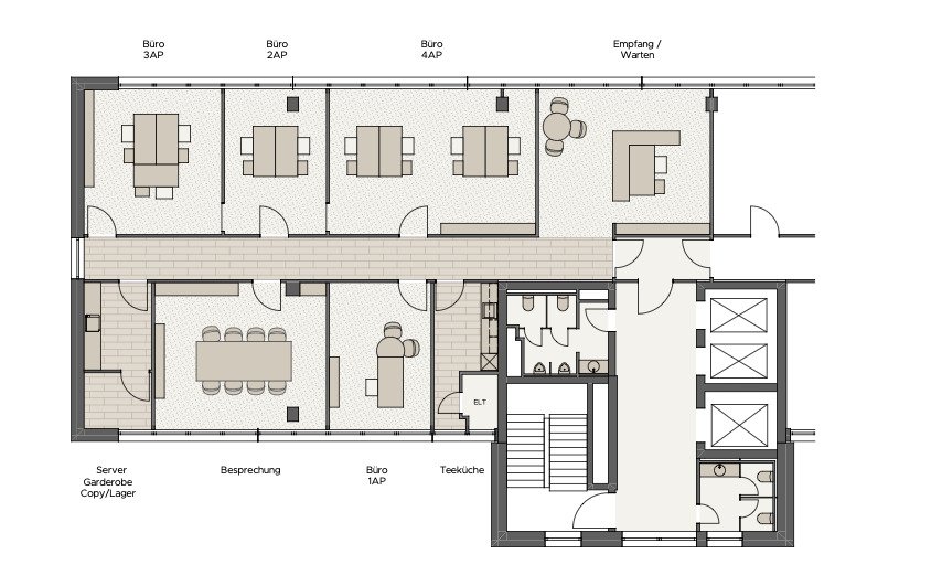
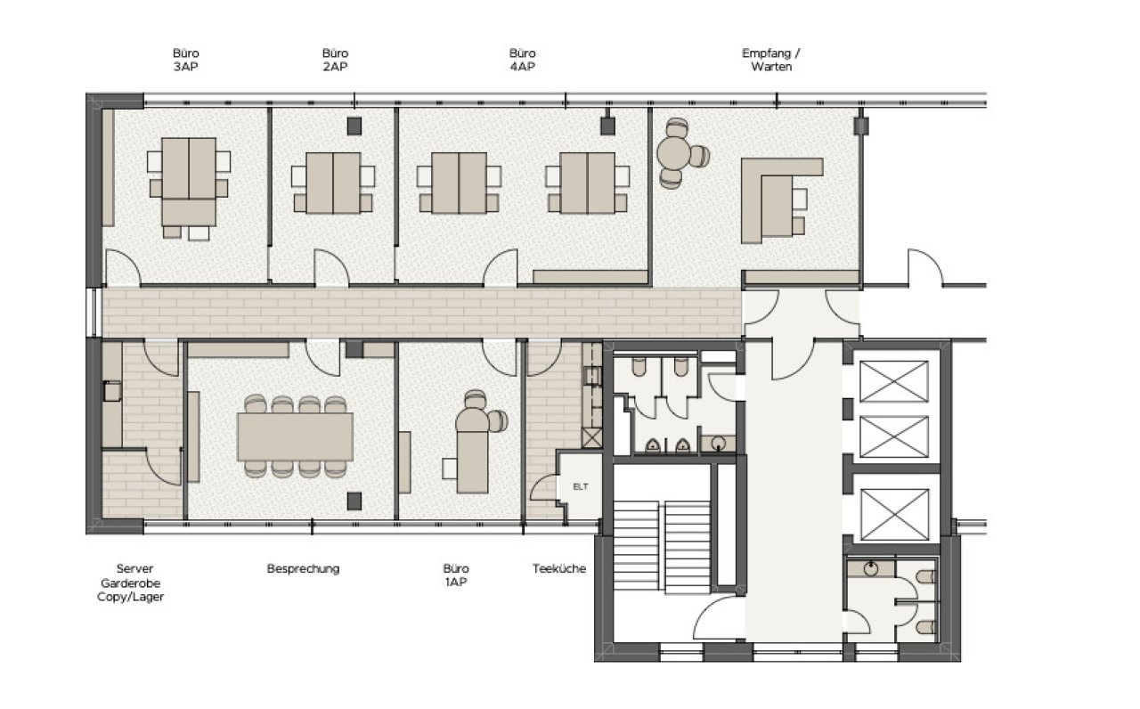
3.Obergeschoss









Mietpreis zzgl. NK:
13 € pro m²
Büro-/Praxisfläche ca.:
1.544 m²
Das Bürogebäude verfügt über einen effizienten Grundriss sowie eine hohe Aufenthalts- und Nutzerqualität. Je nach Bedarf und individuellen Wünschen können die Flächen flexibel aufgeteilt und an das gewünschte Bürokonzept angepasst werden. Egal ob Open-Space, Großraum-, Einzel-,oder Kombi-Büro. Die Bedürfnisse und Ansprüche der Mieter werden beim Ausbau der Mietflächen stets berücksichtigt.
In den Allgemeinbereichen am Campus Eschborn wurden zahlreiche Modernisierungen durchgeführt, um einen gesamtheitlichen, über die eigenen Büroflächen hinaus, gepflegten und modernen Standard zu gewährleisten.
Nebenkosten: 3,80 € pro m²
Provisionspflichtig: nein
Qualität der Ausstattung: gehoben
Baujahr-Gebäude: 1979
Etage: 10
Küche: Einbauküche
Fahrstuhl: ja
Keller: ja
Klimaanlage: ja
Barrierefrei: ja
DV-Verkabelung vorhanden: ja
Bodenbelag: nach Wunsch
Zustand: modernisiert
Fußweg zu Öffentl. Verkehrsmitteln: 4 Minute(n)
Fahrzeit zum nächsten Hauptbahnhof: 15 Minute(n)
Fahrzeit zur nächsten BAB: 3 Minute(n)
Fahrzeit zum nächsten Flughafen: 17 Minute(n)
Heizung: Zentralheizung
Befeuerungsart: Gas
Energieausweistyp: Bedarfsausweis
Die Mietpreise sowie auch die Angaben der Nebenkostenvorauszahlungen verstehen sich monatlich pro Quadratmeter zuzüglich der gesetzlichen Mehrwertsteuer.
Irrtum und Zwischenvermietung bzw. -verkauf sind vorbehalten. Für die Richtigkeit und Vollständigkeit der Angaben übernehmen wir keine Haftung.
Bei weiteren Fragen oder zur Vereinbarung eines individuellen Besichtigungstermins können Sie uns gerne telefonisch unter 069 - 173 269 390 oder per E-Mail unter info@vvimmobilien.com kontaktieren.
Wir weisen auf unsere Allgemeinen Geschäftsbedingungen hin. Durch weitere Inanspruchnahme unserer Leistungen erklären Sie die Kenntnis und Ihr Einverständnis.
Das könnte Ihnen auch gefallen
Flexible Büroflächen in Merton´s Mitte
Flexible Büroflächen direkt am Hauptbahnhof

V&V Immobilien GmbH
Herr Dean Vukovic
Lange Strasse 59
60311 Frankfurt am Main
Telefon: +49 69 173 269 390
Mobil: +49 172 66 99 799
Fax: +49 69 173 269 399













