Schwalbach am Taunus:
Zwischen Taunus und Skyline
Objekt-Nr.: 2524

Außenbereich

Zugang

Treppenhaus

Bürobereich

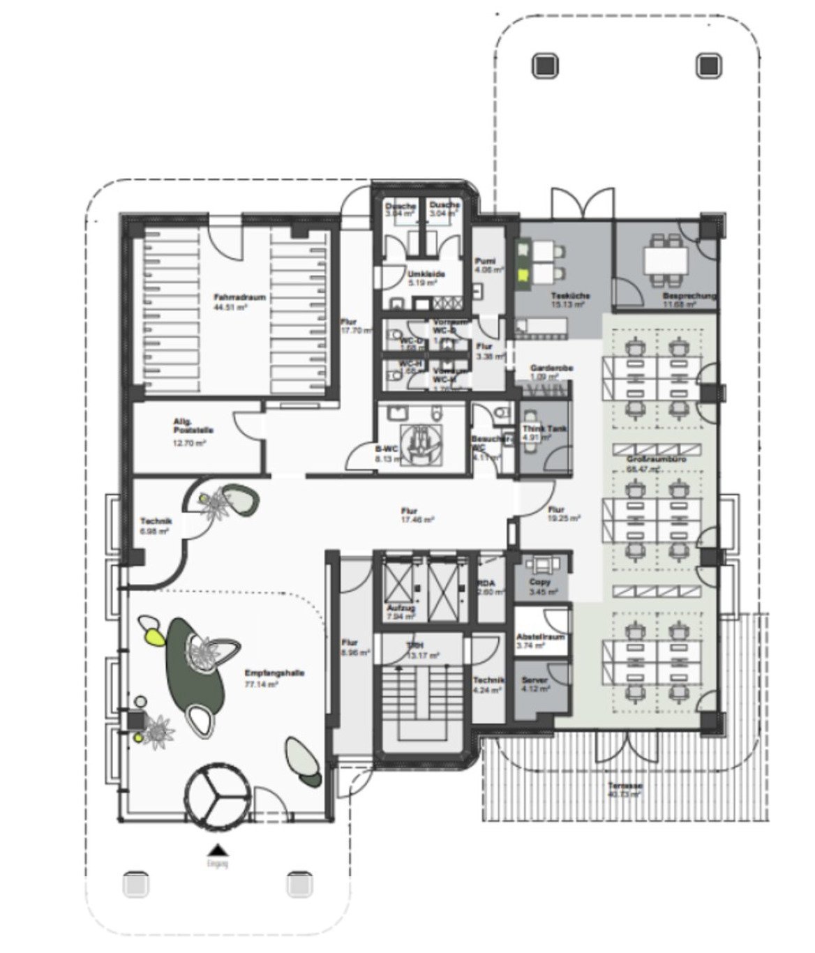
Ausbaubeispiel

Ausbaubeispiel

Cafeteria

Lounge

Fitnessstudio









Mietpreis zzgl. NK:
14,50 € pro m²
Büro-/Praxisfläche ca.:
3.500 m²
Der moderne Bürokomplex besteht aus vier Bauteilen, die jeweils über eigene Foyers verfügen und innovative Haus-in-Haus-Lösungen ermöglichen. Ein breiter und offener Gang, die Lichtmagistrale, bildet die zentrale Erschließungsachse der Anlage.
Im Sockel des Gebäudes befindet sich eine zweigeschossige Tiefgarage und Lagerflächen mit direkter Aufzugsanbindung an die Foyers und Obergeschosse der einzelnen Bauteile.
Nebenkosten: 4,50 € pro m²
Provisionspflichtig: nein
Letzte Modernisierung/ Sanierung: 2015
Qualität der Ausstattung: gehoben
Baujahr-Gebäude: 1980
Etagenanzahl: 4
Anzahl der Parkflächen: 520 x Tiefgarage, pro Stück 80 €
Kantine/Cafeteria: ja
Fahrstuhl: ja
Keller: ja
Klimaanlage: ja
Barrierefrei: ja
DV-Verkabelung vorhanden: ja
Bodenbelag: nach Wunsch
Zustand: modernisiert
Fußweg zu Öffentl. Verkehrsmitteln: 2 Minute(n)
Fahrzeit zum nächsten Hauptbahnhof: 10 Minute(n)
Fahrzeit zur nächsten BAB: 6 Minute(n)
Fahrzeit zum nächsten Flughafen: 18 Minute(n)
Heizung: Zentralheizung
Befeuerungsart: Fernwärme
Energieausweistyp: Bedarfsausweis
Die Mietpreise sowie auch die Angaben der Nebenkostenvorauszahlungen verstehen sich monatlich pro Quadratmeter zuzüglich der gesetzlichen Mehrwertsteuer. Irrtum und Zwischenvermietung bzw. -verkauf sind vorbehalten. Für die Richtigkeit und Vollständigkeit der Angaben übernehmen wir keine Haftung. Bei weiteren Fragen oder zur Vereinbarung eines individuellen Besichtigungstermins können Sie uns gerne telefonisch unter 069 - 173 269 390 oder per E-Mail unter info@vvimmobilien.com kontaktieren.
Wir weisen auf unsere Allgemeinen Geschäftsbedingungen hin. Durch weitere Inanspruchnahme unserer Leistungen erklären Sie die Kenntnis und Ihr Einverständnis.
Das könnte Ihnen auch gefallen
Praxis-/Büroflächen in der Nähe des Hauptbahnhofs
Kompakte Bürofläche im Waldpark Dietzenbach
REMERGE - Moderne und nachhaltige Arbeitswelten in Eschborn

V&V Immobilien GmbH
Herr Dean Vukovic
Lange Strasse 59
60311 Frankfurt am Main
Telefon: +49 69 173 269 390
Mobil: +49 172 66 99 799
Fax: +49 69 173 269 399

















