Offenbach am Main:
Repräsentatives Bürogebäude am Kaiserlei
Objekt-Nr.: 2587

Ausbaubeispiel

Außenansicht

Meetingraum

Teeküche

Teambüro

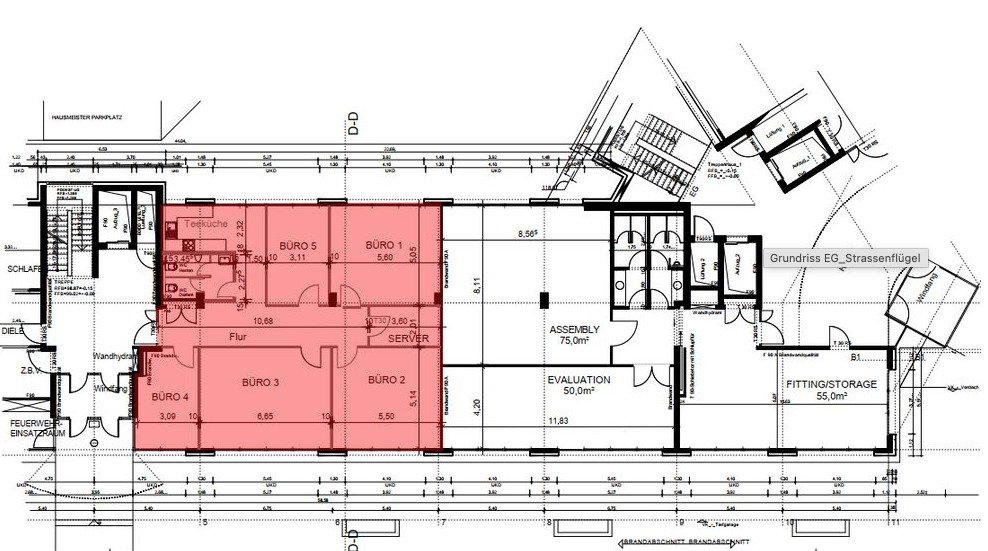
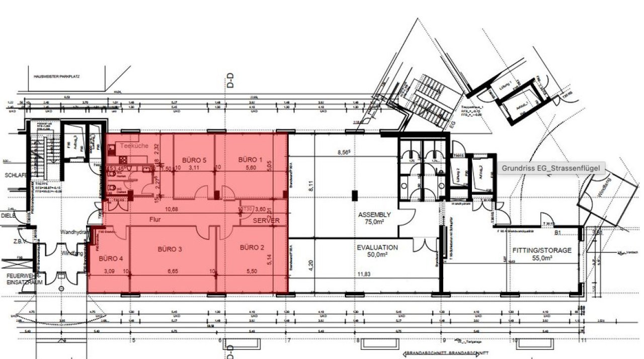
Erdgeschoss

1.Obergeschoss







Mietpreis zzgl. NK:
9,50 € pro m²
Büro-/Praxisfläche ca.:
602 m²
Nebenkosten: 4,90 € pro m²
Provisionspflichtig: nein
Letzte Modernisierung/ Sanierung: 2018
Qualität der Ausstattung: normal
Baujahr-Gebäude: 2000
Etagenanzahl: 7
Anzahl der Parkflächen: 80 x Tiefgarage, pro Stück 80 €
Küche: Einbauküche
Fahrstuhl: ja
Keller: ja
Barrierefrei: ja
DV-Verkabelung vorhanden: ja
Bodenbelag: nach Wunsch
Zustand: gepflegt
Endenergieverbrauch Wärme: 114 kWh/(m²*a)
Endenergieverbrauch Strom: 42 kWh/(m²*a)
Fußweg zu Öffentl. Verkehrsmitteln: 2 Minute(n)
Fahrzeit zum nächsten Hauptbahnhof: 5 Minute(n)
Fahrzeit zur nächsten BAB: 1 Minute(n)
Fahrzeit zum nächsten Flughafen: 10 Minute(n)
Heizung: Zentralheizung
Befeuerungsart: Fernwärme
Energieausweistyp: Verbrauchsausweis
Die Mietpreise sowie auch die Angaben der Nebenkostenvorauszahlungen verstehen sich monatlich pro Quadratmeter zuzüglich der gesetzlichen Mehrwertsteuer.
Irrtum und Zwischenvermietung bzw. -verkauf sind vorbehalten. Für die Richtigkeit und Vollständigkeit der Angaben übernehmen wir keine Haftung.
Bei weiteren Fragen oder zur Vereinbarung eines individuellen Besichtigungstermins können Sie uns gerne telefonisch unter 069 - 173 269 390 oder per E-Mail unter info@vvimmobilien.com kontaktieren.
Wir weisen auf unsere Allgemeinen Geschäftsbedingungen hin. Durch weitere Inanspruchnahme unserer Leistungen erklären Sie die Kenntnis und Ihr Einverständnis.
Das könnte Ihnen auch gefallen
Flexible Büroflächen in begehrter Lage
Büroflächen mit großzügigen Terrassen
Repräsentatives Bürogebäude in Neu-Isenburg

V&V Immobilien GmbH
Herr Dean Vukovic
Lange Strasse 59
60311 Frankfurt am Main
Telefon: +49 69 173 269 390
Mobil: +49 172 66 99 799
Fax: +49 69 173 269 399
























