Frankfurt am Main:
Modernes Bürogebäude mit Skylineblick
Objekt-Nr.: 1247

Außenansicht

Ausbauvariante Meetingraum

Ausbauvariante Büro

Sanitäranlagen

Foyer

Ausbauvariante Büro

Teeküche

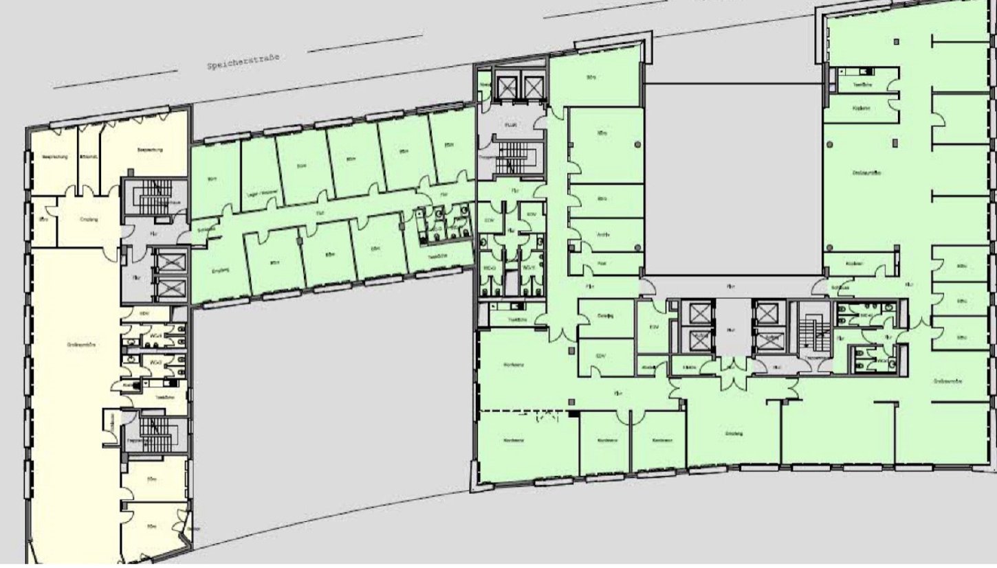
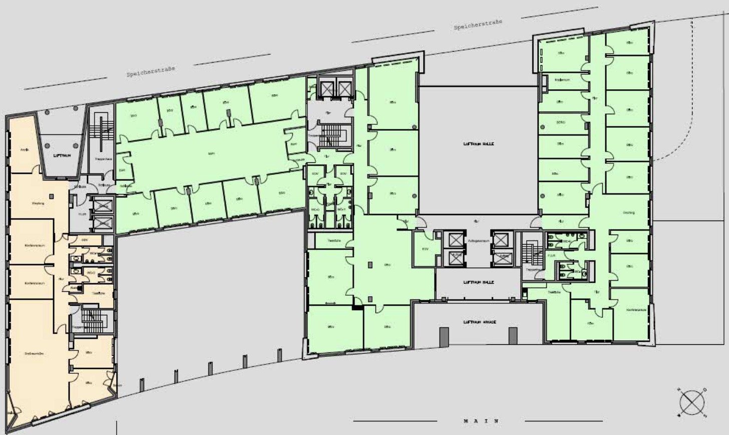
Beispielplanung Regeletage








Mietpreis zzgl. NK:
16 € pro m²
Büro-/Praxisfläche ca.:
2.643 m²
Das moderne Bürogebäude wurde 1996 erbaut. Rote Sandsteinplatten prägen die klassische Fassadenarchitektur dieses sechsgeschossigen Bürogebäudes. Die Flexibilität in der Raumaufteilung ermöglicht die individuelle Umsetzung Ihrer Vorstellungen.
Nebenkosten: 5 € pro m²
Provisionspflichtig: nein
Baujahr-Gebäude: 1996
Etagenanzahl: 6
Anzahl der Parkflächen: 18 x Tiefgarage, pro Stück 120 €
Küche: Einbauküche
Fahrstuhl: ja
Keller: ja
Klimaanlage: ja
DV-Verkabelung vorhanden: ja
Bodenbelag: antistatischer Teppichboden
Zustand: gepflegt
Endenergieverbrauch Wärme: 95 kWh/(m²*a)
Endenergieverbrauch Strom: 55 kWh/(m²*a)
Fußweg zu Öffentl. Verkehrsmitteln: 2 Minute(n)
Fahrzeit zum nächsten Hauptbahnhof: 6 Minute(n)
Fahrzeit zur nächsten BAB: 2 Minute(n)
Fahrzeit zum nächsten Flughafen: 15 Minute(n)
Befeuerungsart: Gas
Energieausweistyp: Verbrauchsausweis
Baujahr laut Energieausweis: 1996
Die Mietpreise sowie auch die Angaben der Nebenkostenvorauszahlungen verstehen sich monatlich pro Quadratmeter zuzüglich der gesetzlichen Mehrwertsteuer. Irrtum und Zwischenvermietung bzw. -verkauf sind vorbehalten. Für die Richtigkeit und Vollständigkeit der Angaben übernehmen wir keine Haftung. Bei weiteren Fragen oder zur Vereinbarung eines individuellen Besichtigungstermins können Sie uns gerne telefonisch unter 069 - 173 269 390 oder per E-Mail unter info@vvimmobilien.com kontaktieren.
Wir weisen auf unsere Allgemeinen Geschäftsbedingungen hin. Durch weitere Inanspruchnahme unserer Leistungen erklären Sie die Kenntnis und Ihr Einverständnis.
Das könnte Ihnen auch gefallen
Gewerbepark mit guter Verkehrsanbindung
Helle Büroflächen mit flexiblem Grundriss
Moderne Büroflächen in direkter Mainlage

V&V Immobilien GmbH
Herr Dean Vukovic
Lange Strasse 59
60311 Frankfurt am Main
Telefon: +49 69 173 269 390
Mobil: +49 172 66 99 799
Fax: +49 69 173 269 399
















